Eladó ház - Budapest, I. kerület

KAPCSOLAT
Hosszú Levente


+36 70 456

hosszu.levente@

Az időpont kérés naptár ikonja
IDŐPONTOT KÉREK
A visszahívás kérés telefon ikonja egy azt körbe ölelő nyíllal
VISSZAHÍVÁST KÉREK
Ajánlom egy ismerősömnek ikon
AJÁNLOM EGY ISMERŐSÖMNEK
Facebook megosztás ikon
MEGOSZTÁS

KAPCSOLATFELVÉTEL

Küldés

Az üzenetet sikeresen elküldtük!
Hiba történt!
INGATLAN ADATAI

Ingatlan jellege

családi ház

Belső terület

205 m²

Telek terület

350 m²

Tájolás

dél

Építési állapot

használt

Építési mód

tégla

Szobák száma

4 szoba

Erkély

10 m²

Terasz

26 m²

Épület szintje

2.

Épült

2005

Ingatlan állapot

kívül: jó
belül: jó

Klíma

van

Fűtés

cirko

Komfort

duplakomfort

Parkolás

van teremgarázs

Közműállapot

csatorna: bekötve
gáz: bekötve
villany: bekötve
víz: bekötve

Energetika

nincs megadva

Az időpont kérés naptár ikonja
HTML
Az időpont kérés naptár ikonja
PDF
Eladó ház
Ingatlan azonosító:
3783_red

Budapest, I. kerület, Gellérthegy

Irányár

359 M Ft
(1.75 M Ft/㎡)

Szobák

4 szoba

Terület

205 m²

Telek terület

350 m²
INGATLAN LEÍRÁSA
Gellérthegy belső zöldövezetének kiemelt presztízsű környékén, a Gombócz Zoltán utcában eladó egy különleges hangulatú, déli fekvésű családi ház. Az ingatlan 2005-ben épült, ennek megfelelő kiváló műszaki állapotban van, kiemelkedik a környék ingatlan kínálatából.

A ház egy világos, napfényes, madárcsicsergéses ősfás környezetben fekszik.

A környék infrastruktúrája kiváló, minden pár percen belül elérhető: a MOM Park, Villányi út, ALLEE, Újbuda központ, és a PESTI BELVÁROS is könnyen megközelíthető gyalog, tömegközlekedéssel illetve autóval.

Iskola, óvoda és kisbolt karnyújtásnyira található.

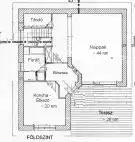
A netto 187 négyzetméteres ház földszintjén egy tágas, terasz és kertkapcsolatos déli fekvésű nappali, egy teljesen felszerelt nagy konyha étkezővel, tároló helyiségek, fürdőszoba zuhanyzóval és káddal, illetve önálló WC található. Az emeleten 3 hálószoba, gardróbszoba, családi fürdőszoba, háztartási helyiség és egy panorámás déli terasz várja a tulajdonosokat.

Igény esetén ötödik szoba, illetve amerikai konyhás nappali-étkező, a nappaliban kandalló könnyen kialakítható!

Az ingatlan egy rendezett, dús zöld vegetációval körül ölelt, virágos, ősfás, nagy kertrészben fekszik.

Közvetlen kertkapcsolat, háborítatlan saját kerthasználat, csendes, nyugodt környezet jellemzi, sem a nem létező szomszédok, sem az utca zaja nem hallatszik.
(nincs átmenő forgalom!)

A Gellérthegy különleges gyöngyszeme ez a villa jellegű épület. Kiemelt elhelyezkedése, déli fekvése, ősfákkal körülvett intim kertje és a város közelsége ideális választás lehet azoknak, akik egy magas presztizsű, nyugodt de központi, zöldövezeti lakókörnyéken szeretnének letelepedni.

Az ingatlanhoz a szomszéd társasház mélygarázsában egy autóbeálló tartozik, amely igény szerint megvásárolható.

A ház szerkezetileg önálló épület, jogilag a szomszédos társasházhoz tartozó albetét (társasházi lakás).
A terasz előtti nagy kertrész elhelyezkedéséből adódóan praktikusan igen, jogilag nem kizárólagos használatú.”

Kiválóak tömegközlekedési opciók, buszmegállók 110, 112, 8E, 27, ill. villamos: 61, 17 a közelben, pár perces sétával megközelíthetők!

Az ingatlan tehermentes, akár azonnal birtokba vehető!

Kínálati ár: 359 M Ft

INGATLAN ADATAI

Ingatlan jellege
családi ház
Belső terület
205 m²
Telek terület
350 m²
Tájolás
dél
Építési állapot
használt
Építési mód
tégla
Szobák száma
4 szoba
Erkély
10 m²
Terasz
26 m²
Épület szintje
2.
Épült
2005
Ingatlan állapot
kívül: jó
belül: jó
Klíma
van
Fűtés
cirko
Komfort
duplakomfort
Parkolás
van teremgarázs
Közműállapot
csatorna: bekötve
gáz: bekötve
villany: bekötve
víz: bekötve
Energetika
nincs megadva
TÉRKÉP

Budapest, I. kerület, Gellérthegy

Hitelkalkulátor


KAPCSOLAT
Hosszú Levente
Hosszú Levente


+36 70 456 1112

hosszu.levente@ibred.hu

KAPCSOLAT
Hosszú Levente

+36 70 456

hosszu.levente@

Az időpont kérés naptár ikonja
IDŐPONTOT KÉREK
A visszahívás kérés telefon ikonja egy azt körbe ölelő nyíllal
VISSZAHÍVÁST KÉREK
Ajánlom egy ismerősömnek ikon
AJÁNLOM EGY ISMERŐSÖMNEK
Facebook megosztás ikon
MEGOSZTÁS

KAPCSOLATFELVÉTEL

Küldés

Az üzenetet sikeresen elküldtük!
Hiba történt!
INGATLAN ADATAI

Ingatlan jellege

ingatlan

Belső terület

205 m²

Telek terület

350 m²

Tájolás

dél

Építési állapot

használt

Építési mód

tégla

Szobák száma

4 szoba

Erkély

10 m²

Terasz

26 m²

Épület szintje

2.

Épült

2005

Ingatlan állapot

kívül: jó
belül: jó

Klíma

van

Fűtés

cirko

Komfort

duplakomfort

Parkolás

van teremgarázs

Közműállapot

csatorna: bekötve
gáz: bekötve
villany: bekötve
víz: bekötve

Energetika

nincs megadva

Az időpont kérés naptár ikonja
HTML
Az időpont kérés naptár ikonja
PDF

Hasonló ingatlan hírdetések

Eladó családi ház, vagy kertes ház hirdetést keres Budapesten a I. kerületben?
Tekintse meg további ajánlatainkat!

eladó ingatlan, Budapest, I. kerület

eladó ingatlan

Budapest, I. kerület, Gellérthegy
Páratlan lehetőség a Gellért-hegy lábánál – Önálló villa ősfás kerttel a Mihály utcában Budapest egyik legpatinásabb városrészében, az I. kerületi Gellért-hegy oldalában kínálunk megvételre egy ki...
Belső terület
315 m²
Telek terület
1133 m²
Szobák
5

650 M Ft

Felújításra szorul!
Felújításra szorul
eladó ingatlan, Budapest, I. kerület

eladó ingatlan

Budapest, I. kerület, Naphegy
I. NAPHEGY déli lejtőjén - csendes zsákutcában elhelyezkedő - gyönyörűen gondozott, parkosított kerttel körbeölelt, tágas terekkel bíró, patinás VILLAÉPÜLET eladó. Az átmenő forgalomtól mentes utcába...
Belső terület
400 m²
Telek terület
601 m²
Szobák
6

699 M Ft

garázzsal
Garázzsal
eladó ingatlan, Budapest, I. kerület

eladó ingatlan

Budapest, I. kerület, Naphegy
I. NAPHEGY déli lejtőjén - csendes zsákutcában elhelyezkedő - gyönyörűen gondozott, parkosított kerttel körbeölelt, tágas terekkel bíró, patinás VILLAÉPÜLET eladó. Az átmenő forgalomtól mentes utcába...
Belső terület
400 m²
Telek terület
601 m²
Szobák
6

699 M Ft

alkalmi vétel
Alkalmi vétel
Budapest, I. kerület - Gellérthegy
Budapest, I. kerület - Gellérthegy
Budapest, I. kerület - Gellérthegy
Budapest, I. kerület - Gellérthegy
Budapest, I. kerület - Gellérthegy
Budapest, I. kerület - Gellérthegy
Budapest, I. kerület - Gellérthegy
Budapest, I. kerület - Gellérthegy
Budapest, I. kerület - Gellérthegy
Budapest, I. kerület - Gellérthegy
Budapest, I. kerület - Gellérthegy
Budapest, I. kerület - Gellérthegy
Budapest, I. kerület - Gellérthegy
Budapest, I. kerület - Gellérthegy
Budapest, I. kerület - Gellérthegy
Budapest, I. kerület - Gellérthegy
Budapest, I. kerület - Gellérthegy
Budapest, I. kerület - Gellérthegy
Budapest, I. kerület - Gellérthegy
Budapest, I. kerület - Gellérthegy
Budapest, I. kerület - Gellérthegy