KAPCSOLATFELVÉTEL
Ingatlan jellege
családi ház
Belső terület
156 m²
Telek terület
945 m²
Tájolás
északnyugat
Építési állapot
használt
Építési mód
vegyes
Szobák száma
4 szoba
Épület szintje
földszintes.
Épült
kb. 1970
Ingatlan állapot
kívül: épülő
belül: épülő
Klíma
előkészítve
Szigetelés
15 cm
Napelem
van
Fűtés
padlófűtés
Komfort
összkomfort
Parkolás
van önálló garázs
Közműállapot
csatorna: bekötve
gáz: bekötve
villany: bekötve
víz: bekötve
Energetika
nincs
Pest megye, Pécel, Városközpont
Irányár
(951.92 E Ft/㎡)
Szobák
Terület
Telek terület
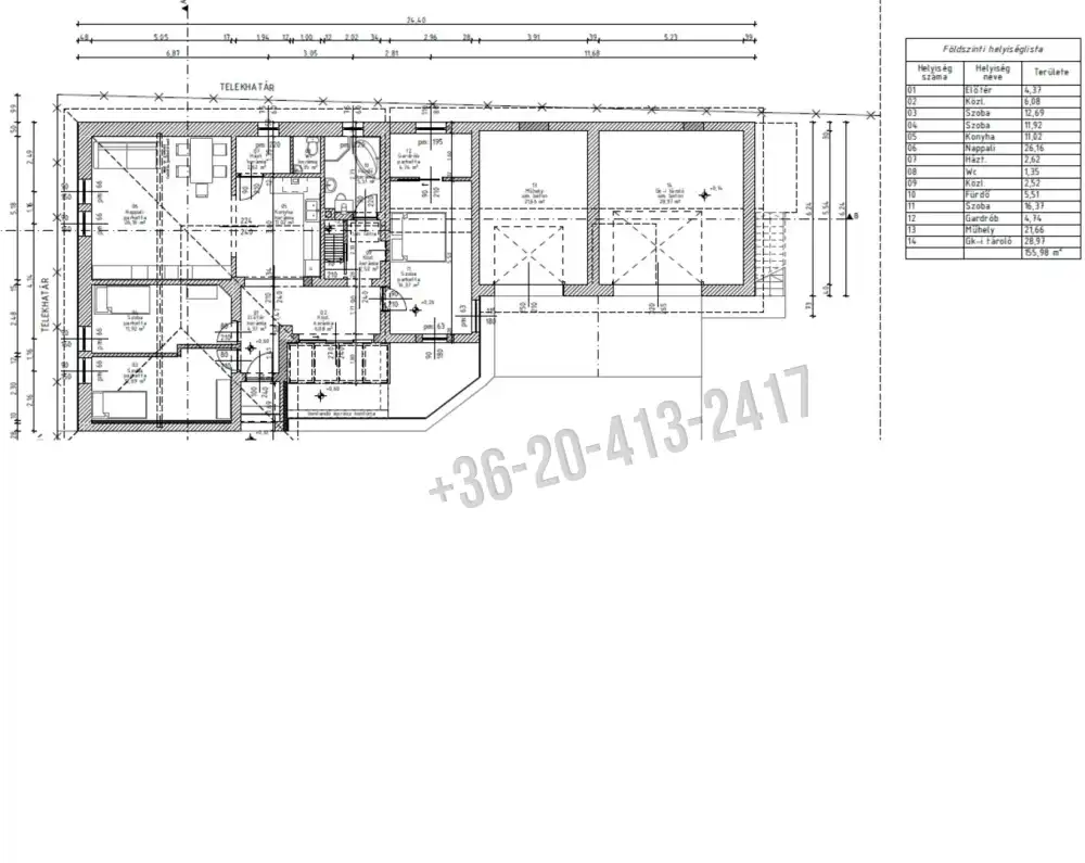
Az ingatlan egy 945m2-es területen helyezkedik el, melyen egy 3 beállásos garázs, műhely, illetve egy télikertnek kialakítható épület található.
Maga az ingatlan egy beton alapon tégla falazatból épült ház, melyet építési engedéllyel, statika véleménnyel, tulajdonosa el kezdte átépíteni. Teljesen új belső kialakítás lett tervezve, illetve egy új tetőt is kapott, cseréppel, és csatornával. Tágas világos terek, és egy kényelmes otthon válik belőle a befejezést követően. A ház hasznos alapterülete, 155,98m2 melyből a garázs és műhely közel 50m2-es. Igény esetén egy emeleti rész is kialakítható ami közel 55-m2.
Az ingatlan minden közművel rendelkezik, fűtéséről padlófűtés, illetve hűtő fűtő klíma fog gondoskodni, H- tarifa kiépítéssel és napakelemmel. Nyílászárók 8 légkamrás műanyag, Antracit szürke, alu redőnnyel és szúnyoghálóval.
Az ingatlan egy részén pince is található, illetve három külön szoba és nappali helyiségek lettek kialakítva, a tágas amerikai konyhával, háztartási helyiséggel vagy (mosókonyha), és fürdőszobával.
A tervek alapján, egy kis rezsivel fenntartható igényes családi háza lehet, remek helyen.
Az ingatlant olyannak fejezi be tulajdonosa, amilyen a saját ízlése, vagy ajánlom vállalkozónak is befektetési céllal. A házat addig is tulajdonosa, folyamatosan építi, de a végső befejezés az új tulajdonosra vár. Rengeteg fantázia. lehetőség van a házban. Remek tervek alapján, egy igazán újszerű szép otthonos családi ház tulajdonosa lehet. Érdemes megtekinteni. Hívjon bizalommal amennyiben, Pécel egyik legjobb helyén szeretne élni.
belül: épülő
gáz: bekötve
villany: bekötve
víz: bekötve
Hitelkalkulátor

+36 20 413 2417
bhajnalkaotthonodingatlaniroda@gmail.com
KAPCSOLATFELVÉTEL
Ingatlan jellege
ingatlan
Belső terület
156 m²
Telek terület
945 m²
Tájolás
északnyugat
Építési állapot
használt
Építési mód
vegyes
Szobák száma
4 szoba
Épület szintje
földszintes.
Épült
kb. 1970
Ingatlan állapot
kívül: épülő
belül: épülő
Klíma
előkészítve
Szigetelés
15 cm
Napelem
van
Fűtés
padlófűtés
Komfort
összkomfort
Parkolás
van önálló garázs
Közműállapot
csatorna: bekötve
gáz: bekötve
villany: bekötve
víz: bekötve
Energetika
nincs