Eladó ház - Szandaváralja

KAPCSOLAT
Gulyás-Terebesi Tímea


+36 30 757

gulyasttimea.prolux@

Az időpont kérés naptár ikonja
IDŐPONTOT KÉREK
A visszahívás kérés telefon ikonja egy azt körbe ölelő nyíllal
VISSZAHÍVÁST KÉREK
Ajánlom egy ismerősömnek ikon
AJÁNLOM EGY ISMERŐSÖMNEK
Facebook megosztás ikon
MEGOSZTÁS

KAPCSOLATFELVÉTEL

Küldés

Az üzenetet sikeresen elküldtük!
Hiba történt!
INGATLAN ADATAI

Ingatlan jellege

családi ház

Belső terület

70 m²

Telek terület

989 m²

Tájolás

délkelet

Építési állapot

használt

Építési mód

vegyes

Szobák száma

3 szoba

Szobák elhelyezkedése

külön nyílik min. 2 szoba

Épület szintje

1.

Ingatlan állapot

kívül: jó
belül: jó

Ablak szerkezete

hagyományos

Fűtés

elektromos panel

Komfort

összkomfort

Közműállapot

csatorna: nincs
gáz: telken
villany: bekötve
víz: bekötve

Energetika

H:

Az időpont kérés naptár ikonja
HTML
Az időpont kérés naptár ikonja
PDF
Eladó ház
Belső azonosító:
TPRO119
Ingatlan azonosító:
1900_pl

Nógrád megye, Szandaváralja

Irányár

19.5 M Ft
(278.57 E Ft/㎡)

Szobák

3 szoba

Terület

70 m²

Telek terület

989 m²
INGATLAN LEÍRÁSA
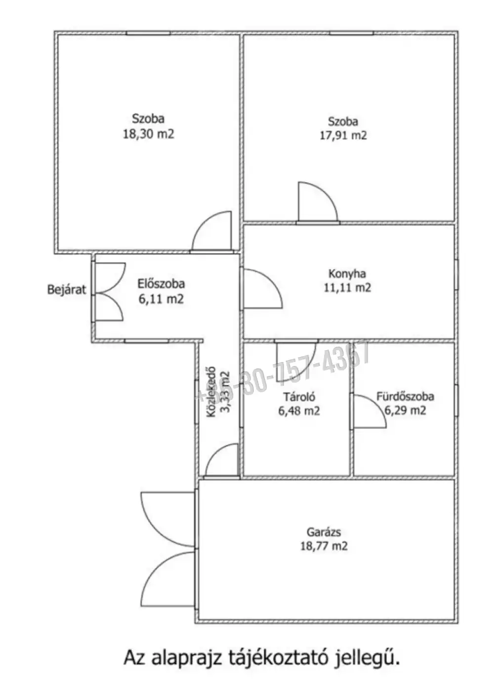
Eladó Szandaváralján 70nm vegyes falazatú önálló családi ház 989nm telken.
Helyiségei: előszoba, folyosó, konyha, 3 szoba, fürdő+wc.
A közművek közül víz és villany bekötve. A gázcsonk az udvarban és csatorna nincs kiépítve a településen.
A melegvizet villanybojler a fűtést a konyhában fatüzelés kályha a többi helyiségben villanypanel biztosítja.
A villany (1fázis 32A) és vízhálózat 2023-ban került felújításra, cserére. A nyílászárók keretei hagyományosak fából készültek és mindegyiken redőnnyel és szúnyoghálóval is felszerelt.
A belmagasság 2,3m az akkori építési módnak megfelelően.
A kertben a locsolásra gyűrűskút áll rendelkezésre. A parkolásra a házzal egybe épített garázs és az udvarban egy tároló, amit a tulajdonos garázsnak is használt.

További információért vagy megtekintésért hívjon bizalommal!
Néhány adat a megbízó által közölt információ alapján került feltüntetésre, így a tévedés jogát fenntartjuk!

Egyéb információért hívjon bizalommal.
Amiben segítjük Önöket:
- hitel ügyintézés
- CSOK ügyintézés
- energetikai tanúsítvány
- földhivatali háttér
- földmérés
- értékbecslés
- ingyenes ajánlatküldés országos rendszerből, e-mail cím megadásával.



INGATLAN ADATAI

Ingatlan jellege
családi ház
Belső terület
70 m²
Telek terület
989 m²
Tájolás
délkelet
Építési állapot
használt
Építési mód
vegyes
Szobák száma
3 szoba
Szobák elhelyezkedése
külön nyílik min. 2 szoba
Épület szintje
1.
Ingatlan állapot
kívül: jó
belül: jó
Ablak szerkezete
hagyományos
Fűtés
elektromos panel
Komfort
összkomfort
Közműállapot
csatorna: nincs
gáz: telken
villany: bekötve
víz: bekötve
Energetika
H:
TÉRKÉP

Nógrád megye, Szandaváralja

Hitelkalkulátor


KAPCSOLAT
Gulyás-Terebesi Tímea
Gulyás-Terebesi Tímea


+36 30 757 4367

gulyasttimea.prolux@gmail.com

KAPCSOLAT
Gulyás-Terebesi Tímea

+36 30 757

gulyasttimea.prolux@

Az időpont kérés naptár ikonja
IDŐPONTOT KÉREK
A visszahívás kérés telefon ikonja egy azt körbe ölelő nyíllal
VISSZAHÍVÁST KÉREK
Ajánlom egy ismerősömnek ikon
AJÁNLOM EGY ISMERŐSÖMNEK
Facebook megosztás ikon
MEGOSZTÁS

KAPCSOLATFELVÉTEL

Küldés

Az üzenetet sikeresen elküldtük!
Hiba történt!
INGATLAN ADATAI

Ingatlan jellege

ingatlan

Belső terület

70 m²

Telek terület

989 m²

Tájolás

délkelet

Építési állapot

használt

Építési mód

vegyes

Szobák száma

3 szoba

Szobák elhelyezkedése

külön nyílik min. 2 szoba

Épület szintje

1.

Ingatlan állapot

kívül: jó
belül: jó

Ablak szerkezete

hagyományos

Fűtés

elektromos panel

Komfort

összkomfort

Közműállapot

csatorna: nincs
gáz: telken
villany: bekötve
víz: bekötve

Energetika

H:

Az időpont kérés naptár ikonja
HTML
Az időpont kérés naptár ikonja
PDF

Hasonló ingatlan hírdetések

Eladó családi ház, vagy kertes ház hirdetést keres Szandaváralja területén?
Tekintse meg további ajánlatainkat!

eladó ingatlan, Szandaváralja

eladó ingatlan

Nógrád megye, Szandaváralja
Nógrád vármegyében, Szandaváralján felújított 70 m2-es belterületi családi ház, 1203 m2-es telekkel eladó, Az ingatlan az Országos Kéktúra útvonalán található! A Cserhát szívében, a pazar panorámáva...
Belső terület
70 m²
Telek terület
1203 m²
Szobák
2

33.9 M Ft

Nógrád megye - Szandaváralja
Nógrád megye - Szandaváralja
Nógrád megye - Szandaváralja
Nógrád megye - Szandaváralja
Nógrád megye - Szandaváralja
Nógrád megye - Szandaváralja
Nógrád megye - Szandaváralja
Nógrád megye - Szandaváralja
Nógrád megye - Szandaváralja
Nógrád megye - Szandaváralja
Nógrád megye - Szandaváralja