Eladó ház - Tereske

KAPCSOLAT
Kovács Barbara


+36 30 915

proluxingatlaniroda@

Az időpont kérés naptár ikonja
IDŐPONTOT KÉREK
A visszahívás kérés telefon ikonja egy azt körbe ölelő nyíllal
VISSZAHÍVÁST KÉREK
Ajánlom egy ismerősömnek ikon
AJÁNLOM EGY ISMERŐSÖMNEK
Facebook megosztás ikon
MEGOSZTÁS

KAPCSOLATFELVÉTEL

Küldés

Az üzenetet sikeresen elküldtük!
Hiba történt!
INGATLAN ADATAI

Ingatlan jellege

családi ház

Belső terület

83 m²

Telek terület

761 m²

Tájolás

délnyugat

Építési állapot

használt

Építési mód

vályog

Szobák száma

3 szoba

Szobák elhelyezkedése

külön nyílik min. 2 szoba

Épület szintje

1.

Épült

kb. 1965

Ingatlan állapot

kívül: felújítandó
belül: felújítandó

Fűtés

cserépkályha

Komfort

komfort

Parkolás

van fedett felszíni beálló

Közműállapot

csatorna: bekötve
gáz: utcában
villany: bekötve
víz: bekötve

Energetika

I:

Az időpont kérés naptár ikonja
HTML
Az időpont kérés naptár ikonja
PDF
Eladó ház
Ingatlan azonosító:
1878_pl

Nógrád megye, Tereske

Irányár

23.5 M Ft
(283.13 E Ft/㎡)

Szobák

3 szoba

Terület

83 m²

Telek terület

761 m²
INGATLAN LEÍRÁSA
Eladó felújítandó parasztház Tereskén, a Petőfi utcában kizárólag irodánk kínálatában!

Tereske csendes, nyugodt részén, a Petőfi utcában eladó egy felújítandó, önálló családi ház, parasztház, rendezett jogi háttérrel, tehermentesen.

Az ingatlan a térképmásolaton teljes egészében lakóházként szerepel.

Főbb jellemzők:
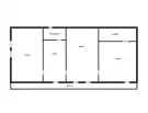
Lakótér: 83 m²
Az alapterületből egy helyiség jelenleg külön bejárattal, kívülről közelíthető meg
Korábban belső ajtóval kapcsolódott a házhoz, ez később befalazásra került, igény szerint visszaállítható
Telek mérete: 761 m²
Építés éve: kb. 1950
Falazat: vályog – nem vizes
Födém: fa födém
Tető: cserépfedés, közepes állapotú, néhány léc cseréje szükséges
Szigetelés: nincs
Villany: 1×16 A
Víz- és villanyhálózat: nem felújított
Közművek és fűtés:
Víz, villany, csatorna: bevezetve
Gáz: nincs
Fűtés: cserépkályha
Meleg víz: bojler
Egyéb építmények:
50 m²-es fedett felszíni beálló
A beálló alatt egy 10 m²-es pince, kiváló tárolásra
Az ingatlan előnyei:
Önálló családi ház
Jó szerkezetű, száraz vályogház
Jól alakítható belső elrendezés
Nagy telek
Pince és fedett beálló
Tehermentes, azonnal birtokba vehető

Közös kút van a szomszéddal.

Miért jó választás Tereske?
Tereske Nógrád megye egyik békés, barátságos települése, amely ideális azok számára, akik nyugodt vidéki életrevágynak, mégis elérhető közelségben szeretnének maradni a nagyobb városokhoz.
Tereske előnyei:
Csendes, rendezett falukép
Jó közösség, falusias életérzés
Természetközeli környezet, kirándulási lehetőségek
Megfizethető ingatlanárak
Ideális állandó lakhatásra, hétvégi háznak vagy falusi turizmushoz is

További információért vagy megtekintésért hívjon bizalommal!

Néhány adat a megbízó által közölt információ alapján került feltüntetésre, így a tévedés jogát fenntartjuk!

Egyéb információért hívjon bizalommal.
Amiben segítjük Önöket:
- hitel ügyintézés
- CSOK ügyintézés
- energetikai tanúsítvány
- földhivatali háttér
- földmérés
- értékbecslés
- ingyenes ajánlatküldés országos rendszerből, e-mail cím megadásával.



INGATLAN ADATAI

Ingatlan jellege
családi ház
Belső terület
83 m²
Telek terület
761 m²
Tájolás
délnyugat
Építési állapot
használt
Építési mód
vályog
Szobák száma
3 szoba
Szobák elhelyezkedése
külön nyílik min. 2 szoba
Épület szintje
1.
Épült
kb. 1965
Ingatlan állapot
kívül: felújítandó
belül: felújítandó
Fűtés
cserépkályha
Komfort
komfort
Parkolás
van fedett felszíni beálló
Közműállapot
csatorna: bekötve
gáz: utcában
villany: bekötve
víz: bekötve
Energetika
I:
TÉRKÉP

Nógrád megye, Tereske

Hitelkalkulátor


KAPCSOLAT
Kovács Barbara
Kovács Barbara


+36 30 915 2942

proluxingatlaniroda@gmail.com

KAPCSOLAT
Kovács Barbara

+36 30 915

proluxingatlaniroda@

Az időpont kérés naptár ikonja
IDŐPONTOT KÉREK
A visszahívás kérés telefon ikonja egy azt körbe ölelő nyíllal
VISSZAHÍVÁST KÉREK
Ajánlom egy ismerősömnek ikon
AJÁNLOM EGY ISMERŐSÖMNEK
Facebook megosztás ikon
MEGOSZTÁS

KAPCSOLATFELVÉTEL

Küldés

Az üzenetet sikeresen elküldtük!
Hiba történt!
INGATLAN ADATAI

Ingatlan jellege

ingatlan

Belső terület

83 m²

Telek terület

761 m²

Tájolás

délnyugat

Építési állapot

használt

Építési mód

vályog

Szobák száma

3 szoba

Szobák elhelyezkedése

külön nyílik min. 2 szoba

Épület szintje

1.

Épült

kb. 1965

Ingatlan állapot

kívül: felújítandó
belül: felújítandó

Fűtés

cserépkályha

Komfort

komfort

Parkolás

van fedett felszíni beálló

Közműállapot

csatorna: bekötve
gáz: utcában
villany: bekötve
víz: bekötve

Energetika

I:

Az időpont kérés naptár ikonja
HTML
Az időpont kérés naptár ikonja
PDF

Hasonló ingatlan hírdetések

Eladó családi ház, vagy kertes ház hirdetést keres Tereske területén?
Tekintse meg további ajánlatainkat!

eladó ingatlan, Tereske

eladó ingatlan

Nógrád megye, Tereske, Kossuth utca
Nógrád vármegye bájos településén Tereskén kellemes vidéki környezetben építkezés közben eladó egy önálló, kifejezetten tágas, 2250 négyzetméteres telken elhelyezkedő saját ízlésünkre szabható 46.3 né...
Belső terület
46 m²
Telek terület
2250 m²
Szobák
2

11.9 M Ft

eladó ingatlan, Tereske

eladó ingatlan

Nógrád megye, Tereske, Kossuth utca
Tereske központjában kedvező áron eladó egy kifejezetten tágas telken fekvő 107 négyzetméter alapterületű családi ház garázzsal és melléképülettel. A több helyrajzi számon található belterületi, te...
Belső terület
107 m²
Telek terület
2981 m²
Szobák
3

14 M Ft

eladó ingatlan, Tereske

eladó ingatlan

Tereske - négy szobás családi ház

Nógrád megye, Tereske
Tereskén vált eladóvá egy 1994m2-es, akár gazdálkodásra is alkalmas telken elhelyezkedő, 106m2 hasznos alapterületű, négy szobás családi ház, a hozzátartozó melléképületekkel! A házat (hátsó szobát...
Belső terület
106 m²
Telek terület
1994 m²
Szobák
4

29.9 M Ft

eladó ingatlan, Tereske

eladó ingatlan

Nógrád megye, Tereske
A Nógrád vármegyei Tereskén magánszemélytől eladó egy bio/önfenntartó gazdálkodásra is alkalmas, 2065 négyzetméteres, dupla belterületi telken álló 180 nm-es családi ház. A ház első része egy 60 ce...
Belső terület
180 m²
Telek terület
2065 m²
Szobák
4

39.99 M Ft

eladó ingatlan, Tereske

eladó ingatlan

Nógrád megye, Tereske, Kossuth utca
Eladásra kínálok a Nógrád vármegyei Tereskén egy 3410 m2-es telken álló, 135 m2 alapterületű, részben felújított családi házat. 1960-ban épült vályogból és téglából, 2022-ben pedig további bővítésr...
Belső terület
135 m²
Telek terület
3410 m²
Szobák
3

29.9 M Ft

Nógrád megye - Tereske
Nógrád megye - Tereske
Nógrád megye - Tereske
Nógrád megye - Tereske
Nógrád megye - Tereske
Nógrád megye - Tereske
Nógrád megye - Tereske
Nógrád megye - Tereske
Nógrád megye - Tereske
Nógrád megye - Tereske
Nógrád megye - Tereske