Eladó ház - Újpetre

azonnal költözhető
Azonnal költözhető
KAPCSOLAT
Várai Sándor


+36 70 278

varai.sandor@

Az időpont kérés naptár ikonja
IDŐPONTOT KÉREK
A visszahívás kérés telefon ikonja egy azt körbe ölelő nyíllal
VISSZAHÍVÁST KÉREK
Ajánlom egy ismerősömnek ikon
AJÁNLOM EGY ISMERŐSÖMNEK
Facebook megosztás ikon
MEGOSZTÁS

KAPCSOLATFELVÉTEL

Küldés

Az üzenetet sikeresen elküldtük!
Hiba történt!
INGATLAN ADATAI

Ingatlan jellege

családi ház

Belső terület

130 m²

Telek terület

2027 m²

Tájolás

dél, kelet

Panoráma

kertre és utcára néz.

Építési állapot

használt

Építési mód

tégla

Szobák száma

3+1 félszoba

Terasz

10 m²

Épület szintje

1.

Épült

kb. 1940

Akadálymentes

részlegesen

Ingatlan állapot

kívül: részben felújított
belül: felújított

Ablak szerkezete

2 rétegű thermoplan

Fűtés

központi fűtés

Komfort

összkomfort

Parkolás

van fedetlen felszíni beálló

Közműállapot

csatorna: bekötve
gáz: telken
villany: bekötve
víz: bekötve

Energetika

G:

Az időpont kérés naptár ikonja
HTML
Az időpont kérés naptár ikonja
PDF
Eladó ház
Ingatlan azonosító:
48_vs

Baranya megye, Újpetre, Kossuth Lajos utca

Irányár

39 M Ft
(300 E Ft/㎡)

Szobák

3+1 félszoba

Terület

130 m²

Telek terület

2027 m²
INGATLAN LEÍRÁSA
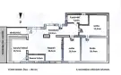
Otthonra vágyóknak különleges lehetőség! Újpetrén, a Kossuth Lajos utcában, felújított, azonnal költözhető családi ház eladó. A tágas, 130 m²-es lakótér három külön nyíló szobával, amerikai konyhás nappalival és praktikus kamrával, 10 m²-es terasszal rendelkezik. A modern fürdőben kád és zuhany is helyet kapott. Az ingatlan kívül részben, belül teljesen felújított: radiátoros központi fűtés, új elektromos rendszer, korszerű nyílászárók növelik a kényelmet. Az ingatlan egy szinten, akadálymentesen használható, kétgenerációs elrendezésre is alkalmas. A 2027 m²-es bekerített telek kertészkedésre, gazdálkodásra tökéletes, felújításra váró gazdasági épületekkel rendelkezik . A telek összközműves, fűtése fa tüzelésű automata kazánnal kialakított. Kiváló közlekedés, nyugodt környezet. Alkalmas CSOK és a 3% -os otthonteremtési támogatás igénybevételére. Azonnal költözhető! További információért hívjon.


INGATLAN ADATAI

Ingatlan jellege
családi ház
Belső terület
130 m²
Telek terület
2027 m²
Tájolás
dél, kelet
Panoráma
kertre és utcára néz.
Építési állapot
használt
Építési mód
tégla
Szobák száma
3+1 félszoba
Terasz
10 m²
Épület szintje
1.
Épült
kb. 1940
Akadálymentes
részlegesen
Ingatlan állapot
kívül: részben felújított
belül: felújított
Ablak szerkezete
2 rétegű thermoplan
Fűtés
központi fűtés
Komfort
összkomfort
Parkolás
van fedetlen felszíni beálló
Közműállapot
csatorna: bekötve
gáz: telken
villany: bekötve
víz: bekötve
Energetika
G:
TÉRKÉP

Baranya megye, Újpetre, Kossuth Lajos utca

Hitelkalkulátor


KAPCSOLAT
Várai Sándor
Várai Sándor


+36 70 278 5657

varai.sandor@gmail.com

KAPCSOLAT
Várai Sándor

+36 70 278

varai.sandor@

Az időpont kérés naptár ikonja
IDŐPONTOT KÉREK
A visszahívás kérés telefon ikonja egy azt körbe ölelő nyíllal
VISSZAHÍVÁST KÉREK
Ajánlom egy ismerősömnek ikon
AJÁNLOM EGY ISMERŐSÖMNEK
Facebook megosztás ikon
MEGOSZTÁS

KAPCSOLATFELVÉTEL

Küldés

Az üzenetet sikeresen elküldtük!
Hiba történt!
INGATLAN ADATAI

Ingatlan jellege

ingatlan

Belső terület

130 m²

Telek terület

2027 m²

Tájolás

dél, kelet

Panoráma

kertre és utcára néz.

Építési állapot

használt

Építési mód

tégla

Szobák száma

3+1 félszoba

Terasz

10 m²

Épület szintje

1.

Épült

kb. 1940

Ingatlan állapot

kívül: részben felújított
belül: felújított

Ablak szerkezete

2 rétegű thermoplan

Fűtés

központi fűtés

Komfort

összkomfort

Parkolás

van fedetlen felszíni beálló

Közműállapot

csatorna: bekötve
gáz: telken
villany: bekötve
víz: bekötve

Energetika

G:

Az időpont kérés naptár ikonja
HTML
Az időpont kérés naptár ikonja
PDF

Hasonló ingatlan hírdetések

Eladó családi ház, vagy kertes ház hirdetést keres Újpetre területén?
Jelenleg nincsenek hasonló aktuális ajánlatok Újpetre településen.
Tekintse meg további Baranya megyei ajánlatainkat !

eladó ingatlan, Udvar

eladó ingatlan

Baranya megye, Udvar
Felújítandó családi ház eladó Udvaron – lehetőség, amit érdemes megnézni! Baranya megyében, Mohácstól mindössze 12 km-re, Udvar településen kínálunk megvételre egy nagy lehetőségeket rejtő családi há...
Belső terület
102 m²
Telek terület
1305 m²
Szobák
4

6.9 M Ft

eladó ingatlan, Mohács

eladó ingatlan

Baranya megye, Mohács
Felújított családi ház eladó Mohács belvárosához közel – azonnal költözhető állapotban! Mohácson, a belváros közelében kínálunk megvételre egy folyamatosan karbantartott, felújított családi házat, am...
Belső terület
134 m²
Telek terület
521 m²
Szobák
4

58 M Ft

eladó ingatlan, Lánycsók

eladó ingatlan

Baranya megye, Lánycsók
Lánycsókon, a falu központjában eladó egy jó adottságokkal rendelkező családi ház! A település ideális választás azok számára, akik nyugodt, falusias környezetben szeretnének élni, ugyanakkor fontos ...
Belső terület
87 m²
Telek terület
1238 m²
Szobák
3

35 M Ft

eladó ingatlan, Mohács

eladó ingatlan

Baranya megye, Mohács
Mohácson, a belvároshoz közel, felújítandó, jó adottságokkal rendelkező családi ház eladó. Az ingatlan tégla falazatú, stabil szerkezetű, repedés és vizesedés nem tapasztalható, így kiváló alapot n...
Belső terület
102 m²
Telek terület
445 m²
Szobák
2

29.9 M Ft

eladó új építésű ingatlan, Pécs

eladó új építésű ingatlan

Baranya megye, Pécs, (Donátus), Varjú dűlő
Eladásra kínálok Pécs-Donátuson, a Varjú dülőben egy újépítésű családi házat. Az ingatlan építés alatt áll, tervezett átadás: 2026.12.31 Paraméterek: Telek mérete 700 m2, Ingatlan mérete 1...
Belső terület
108 m²
Telek terület
700 m²
Szobák
4

149.9 M Ft

eladó ingatlan, Lánycsók

eladó ingatlan

Baranya megye, Lánycsók
Lánycsókon, nyugodt környezetben családi ház eladó, sok lehetőséggel! Lánycsók csendes, falusias hangulatú település, ahol a mindennapi élethez szükséges minden fontos intézmény – iskola, óvoda, bolt...
Belső terület
140 m²
Telek terület
4022 m²
Szobák
4

29 M Ft

eladó ingatlan, Mohács

eladó ingatlan

Baranya megye, Mohács
Árcsökkenés!!! Mohácson, a belváros közelében – csendes, nyugodt környezetben – felújított sorházi ingatlan eladó! Ha egy olyan otthont keres, ahová szinte azonnal költözhet, miközben élvezheti a vá...
Belső terület
107 m²
Telek terület
493 m²
Szobák
4

55.9 M Ft

árcsökkenés!
Árcsökkenés
eladó ingatlan, Mohács

eladó ingatlan

Baranya megye, Mohács
Mohácson nagy potenciálú családi ház eladó – alakítsa saját otthonává! Mohács egyik kedvelt, nyugodt részén kínálunk megvételre egy kiváló adottságokkal rendelkező családi házat, amely remek lehető...
Belső terület
100 m²
Telek terület
999 m²
Szobák
4

32 M Ft

Baranya megye - Újpetre
Baranya megye - Újpetre
Baranya megye - Újpetre
Baranya megye - Újpetre
Baranya megye - Újpetre
Baranya megye - Újpetre
Baranya megye - Újpetre
Baranya megye - Újpetre
Baranya megye - Újpetre
Baranya megye - Újpetre
Baranya megye - Újpetre
Baranya megye - Újpetre
Baranya megye - Újpetre
Baranya megye - Újpetre
Baranya megye - Újpetre
Baranya megye - Újpetre
Baranya megye - Újpetre
Baranya megye - Újpetre
Baranya megye - Újpetre
Baranya megye - Újpetre
Baranya megye - Újpetre
Baranya megye - Újpetre
Baranya megye - Újpetre
Baranya megye - Újpetre
Baranya megye - Újpetre
Baranya megye - Újpetre
Baranya megye - Újpetre
Baranya megye - Újpetre