Eladó panellakás - Eger

KAPCSOLAT
Dr. Borosné Király Andrea


+36 30 472

borosne_andrea@

Az időpont kérés naptár ikonja
IDŐPONTOT KÉREK
A visszahívás kérés telefon ikonja egy azt körbe ölelő nyíllal
VISSZAHÍVÁST KÉREK
Ajánlom egy ismerősömnek ikon
AJÁNLOM EGY ISMERŐSÖMNEK
Facebook megosztás ikon
MEGOSZTÁS

KAPCSOLATFELVÉTEL

Küldés

Az üzenetet sikeresen elküldtük!
Hiba történt!
INGATLAN ADATAI

Ingatlan jellege

panellakás

Belső terület

54 m²

Tájolás

kelet

Építési állapot

használt

Építési mód

csúsztatott zsalu

Szobák száma

2 szoba

Erkély

6 m²

Emelet

1.

Épület szintje

10.

Lift

van

Ingatlan állapot

kívül: jó
belül: részben felújítandó

Klíma

van

Szigetelés

10 cm

Ablak szerkezete

2 rétegű thermoplan

Fűtés

távfűtés egyedi méréssel

Komfort

összkomfort

Kilátás

parkra

Energetika

nincs megadva

Az időpont kérés naptár ikonja
HTML
Az időpont kérés naptár ikonja
PDF
Eladó panellakás
Ingatlan azonosító:
94_bka

Heves megye, Eger, (Felsőváros), II. Rákóczi Ferenc utca

Irányár

36.9 M Ft
(683.33 E Ft/㎡)

Szobák

2 szoba

Emelet

1

Terület

54 m²
INGATLAN LEÍRÁSA
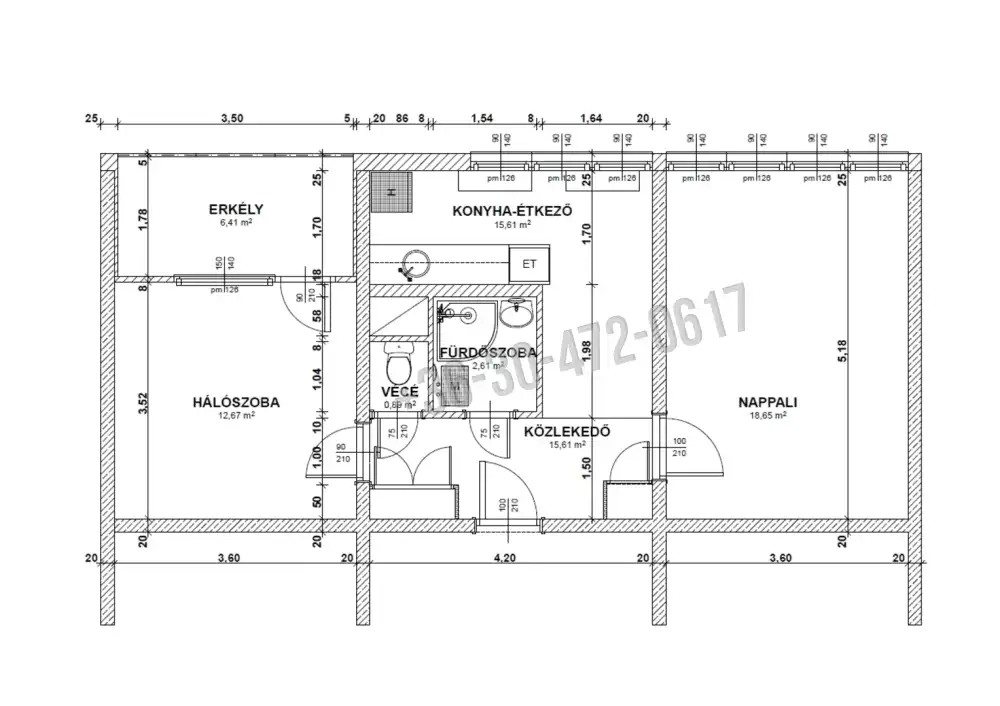
1. emeleti, 2 szobás, nagy erkélyes, parkra néző lakás eladó Egerben, a Rákóczi úton!

Az ingatlan csúsztatott zsalus, szigetelt társasház 1. emeletén található. Keleti fekvésű, parkos részre, az Eger-patak felé néz.
ELRENDEZÉSE: 2 külön nyíló szoba, 6 m2-es erkély, konyha, fürdőszoba, előszoba és WC.
ABLAKAI műanyagok (2 rétegű üvegezéssel), redőnyösek. A BEJÁRATI AJTÓ szintén műanyagból készült.
BURKOLATOK: a szobákban levő szőnyegpadló cserére/felújításra szorul. A többi helyiségben járólap van.
FŰTÉS: szabályozható, mérhető távhő.
A FÜRDŐSZOBA és WC felújítása már megtörtént (szaniterek, burkolatok, zuhanykabin).
A konyhában elektromos sütőt és főzőlapot építettek be.
A nyári forróságot a nappaliban található KLÍMA használata elviselhetőbbé teszi.
Közös TÁROLÓ segíti a tárolást ( 3 lakásnak van 1 tárolóhelyisége).
A közös költség 18-19 ezer Ft/hó. a fűtés nyáron 5 ezer, télen 15 ezer Ft/hó.

Buszmegállók mindkét irányban pár perc sétányira, üzletek, orvosi rendelő, gyógyszertárak, iskolák, óvoda, játszótér szintén elérhető közelségben vannak.

Az ingatlan kizárólag irodánk kínálatában található meg.

INGATLAN ADATAI

Ingatlan jellege
panellakás
Belső terület
54 m²
Tájolás
kelet
Építési állapot
használt
Építési mód
csúsztatott zsalu
Szobák száma
2 szoba
Erkély
6 m²
Emelet
1.
Épület szintje
10.
Lift
van
Ingatlan állapot
kívül: jó
belül: részben felújítandó
Klíma
van
Szigetelés
10 cm
Ablak szerkezete
2 rétegű thermoplan
Fűtés
távfűtés egyedi méréssel
Komfort
összkomfort
Kilátás
parkra
Energetika
nincs megadva
TÉRKÉP

Heves megye, Eger, II. Rákóczi Ferenc utca

Hitelkalkulátor


KAPCSOLAT
Dr. Borosné Király Andrea
Dr. Borosné Király Andrea


+36 30 472 0617

borosne_andrea@miosz.hu

KAPCSOLAT
Dr. Borosné Király Andrea

+36 30 472

borosne_andrea@

Az időpont kérés naptár ikonja
IDŐPONTOT KÉREK
A visszahívás kérés telefon ikonja egy azt körbe ölelő nyíllal
VISSZAHÍVÁST KÉREK
Ajánlom egy ismerősömnek ikon
AJÁNLOM EGY ISMERŐSÖMNEK
Facebook megosztás ikon
MEGOSZTÁS

KAPCSOLATFELVÉTEL

Küldés

Az üzenetet sikeresen elküldtük!
Hiba történt!
INGATLAN ADATAI

Ingatlan jellege

panel lakás

Belső terület

54 m²

Tájolás

kelet

Építési állapot

használt

Építési mód

csúsztatott zsalu

Szobák száma

2 szoba

Erkély

6 m²

Emelet

1.

Épület szintje

10.

Lift

van

Ingatlan állapot

kívül: jó
belül: részben felújítandó

Klíma

van

Szigetelés

10 cm

Ablak szerkezete

2 rétegű thermoplan

Fűtés

távfűtés egyedi méréssel

Komfort

összkomfort

Kilátás

parkra

Energetika

nincs megadva

Az időpont kérés naptár ikonja
HTML
Az időpont kérés naptár ikonja
PDF

Hasonló ingatlan hírdetések

Eladó tégla-, vagy panellakás hirdetést keres Eger területén?
Tekintse meg további ajánlatainkat!

eladó panel lakás, Eger

eladó panel lakás

Heves megye, Eger, Felsőváros
Eger Felsővárosában eladó egy 61 nm-es, felújított, 2,5 szobás, erkélyes, panorámás lakás, amely egy liftes társasház 8. emeletén helyezkedik el, csodás kilátással a környező hegyekre. A lakás felú...
Belső terület
61 m²
Szobák
2+1
Emelet
8

49.9 M Ft

eladó panel lakás, Eger

eladó panel lakás

Heves megye, Eger, (Felsőváros), Malomárok utca
Egerben belváros közeli, kiváló adottságokkal rendelkező, 2 szobás 57 nm-es, loggiás, panorámás lakás eladó! Rendezett, nyugodt, tiszta lépcsőház 9. emeletén (nem zárószint!!!). A társasház szigete...
Belső terület
57 m²
Szobák
2
Emelet
9

42.9 M Ft

eladó lakás, Eger

eladó lakás

Heves megye, Eger, Ráchóstya
EGREBEN, A RÁCHEGYEN ,CSALÁDI JELLEGŰ LAKÁSOK ELADÓK!!!! A 2007-ben,téglából épült,3 lakóegységből álló ingatlan egy csendes zsák utcában található. A három lakás külön-külön és egyben is eladó,aká...
Belső terület
70 m²
Szobák
2
Emelet
1

56.9 M Ft

eladó lakás, Eger

eladó lakás

Heves megye, Eger, Ráchóstya
EGREBEN, A RÁCHEGYEN ,CSALÁDI JELLEGŰ LAKÁSOK ELADÓK!!!! A 2007-ben,téglából épült,3 lakóegységből álló ingatlan egy csendes zsák utcában található. A három lakás külön-külön és egyben is eladó,aká...
Belső terület
63 m²
Szobák
1+2
Emelet
1

56.9 M Ft

eladó lakás, Eger

eladó lakás

Heves megye, Eger, Ráchóstya
EGREBEN, A RÁCHEGYEN ,CSALÁDI JELLEGŰ LAKÁSOK ELADÓK!!!! A 2007-ben,téglából épült,3 lakóegységből álló ingatlan egy csendes zsák utcában található. A három lakás külön-külön és egyben is eladó,aká...
Belső terület
63 m²
Szobák
1+2
Emelet
földszint

59.9 M Ft

eladó panel lakás, Eger

eladó panel lakás

Heves megye, Eger, (Felsőváros), II. Rákóczi Ferenc utca
???? AZONNAL BIRTOKBA VEHETŐ • TEHERMENTES • FELÚJÍTOTT LAKÁS ERKÉLLYEL EGER FELSŐVÁROSBAN Eladó egy igényesen, teljes körűen felújított, nagy erkélyes lakás Eger közkedvelt részén, Felsővárosban, ...
Belső terület
52 m²
Szobák
2
Emelet
2

46.9 M Ft

eladó panel lakás, Eger

eladó panel lakás

Heves megye, Eger, (Felsőváros), Töviskés tér
1. emeleti, 2 szobás, erkélyes lakás eladó Egerben, a Töviskes téren! Az ingatlan szigetelt, csúsztatott zsalus társasház 1. emeletén található. Az épületben 2 lift áll a lakók rendelkezésére. A lé...
Belső terület
57 m²
Szobák
2
Emelet
1

36.9 M Ft

eladó lakás, Eger

eladó lakás

Heves megye, Eger, (Károlyváros), Rózsa Károly utca
EGERBEN,A RÓZSA KÁROLY UTCÁBAN,EXTRA IGÉNYES 1. EMELETI „ OKOS” LAKÁS ELADÓ!!! Az 58 m2-es 1. emeleti,napfényes,déli fekvésű lakás teljes körűen frissen lett felújítva!!!! A felújítás során cserélté...
Belső terület
58 m²
Szobák
2
Emelet
1

69.5 M Ft

Heves megye - Eger
Heves megye - Eger
Heves megye - Eger
Heves megye - Eger
Heves megye - Eger
Heves megye - Eger
Heves megye - Eger
Heves megye - Eger
Heves megye - Eger
Heves megye - Eger
Heves megye - Eger
Heves megye - Eger
Heves megye - Eger
Heves megye - Eger
Heves megye - Eger
Heves megye - Eger
Heves megye - Eger