Eladó téglalakás - Budapest, VI. kerület

Felújított!
Felújított
KAPCSOLAT
BH Admin


+36 70 588

bhpingatlan@

Az időpont kérés naptár ikonja
IDŐPONTOT KÉREK
A visszahívás kérés telefon ikonja egy azt körbe ölelő nyíllal
VISSZAHÍVÁST KÉREK
Ajánlom egy ismerősömnek ikon
AJÁNLOM EGY ISMERŐSÖMNEK
Facebook megosztás ikon
MEGOSZTÁS

KAPCSOLATFELVÉTEL

Küldés

Az üzenetet sikeresen elküldtük!
Hiba történt!
INGATLAN ADATAI

Ingatlan jellege

téglalakás

Belső terület

51 m²

Tájolás

kelet

Építési állapot

használt

Építési mód

tégla

Szobák száma

1+1 félszoba

Emelet

nincs emelet.

Épület szintje

4.

Lift

van

Ingatlan állapot

kívül: részben felújított
belül: felújított

Klíma

van

Ablak szerkezete

3 rétegű thermoplan

Fűtés

gázkazán

Komfort

összkomfort

Kilátás

udvarra

Energetika

nincs megadva

Az időpont kérés naptár ikonja
HTML
Az időpont kérés naptár ikonja
PDF
Eladó téglalakás
Belső azonosító:
16262_1
Ingatlan azonosító:
16232_bh

Budapest, VI. kerület, Külső-Terézváros–Diplomatanegyed

Irányár

99 M Ft
(1.94 M Ft/㎡)

Szobák

1+1 félszoba

Terület

51 m²
INGATLAN LEÍRÁSA
INGATLAN HELYSZÍNE:
VI. kerület, Külső-Terézváros részén, Budapest leghíresebb sugárútján, a magyar Champs-Élysées-nek is nevezett Andrássy úton, a Cseh Nagykövetség szomszédságában található, pár lépésre a Kodály Köröndtől.

ÉPÜLET JELLEMZŐI:
A falakon 19. századi képek találhatók az Andrássy út akkori látványával, a lépcsők korlátjai és az étkező lámpatartója szintén eredeti darabok, a régi Andrássy úti épületek stílusában lettek felújítva.

LAKÁS JELLEMZŐI:
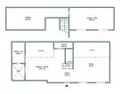
Tulajdoni lapon 51 nm-es, valójában további 18 nm galériával és 4 nm saját lichhoffal rendelkező, mindösszesen 73 nm hasznos területű magasföldszinti lakás.

A lakás műszakilag és esztétikailag is felújított, kifogástalan állapotban van, 2017-ben újították fel és alakították át mai formájára.

Praktikusan kialakított terek jellemzik a lakást. A bejárati ajtón belépve az előtérbe érkezünk, mely egy légteret alkot a bal kéz felé eső a konyhával, étkezővel és a jobb kéz felé eső nappali szobával. Az alsó szinten padlófűtés lett kialakítva. A nappaliban egy térdfallal részben elválasztott dolgozósarok is kialakításra került. Szemközt található a galériára vezető lépcső és egy 2 nm-es háztartási tároló helyiség. A lépcső alatti területek is praktikusan, tárolóként vannak hasznosítva.

A fürdőszoba a bejárattól bal kéz felé esik, a konyha területéről közelíthető meg és ugyancsak ezen a részen található a kizárólagosan ehhez a lakáshoz tartozó, szeparált és intim, 4 nm-es lichthof területe, melyen egy hangulatos, megvilágított kiülős teret hoztak létre.

A nagy belmagasságnak köszönhetően egy 18 nm-es galéria került beépítésre. A nappali szoba felett egy közel 9 nm-es radiátor fűtéssel szerelt hálótér található, mely ajtóval zárható, szeparált. A hálószobából francia erkélyen át nézhet le a nappaliba. A galéria további 9 nm-es területe a konyha felett helyezkedik el, nyitott, üvegkorláttal szegélyezett. Kinyitható vendégágy és gardróbszekrény található rajta.

A felújítás során zuhanyzós fürdőszoba egy légtérben a WC-vel, egy önálló háztartási helyiség mosó- és szárítógéppel, valamint teljesen felszerelt konyha is kialakításra került (beépített sütő, indukciós főzőlap, mosogatógép, hűtőszekrény fagyasztóval).

***A kiváló lokációjának köszönhetően a lakás befektetésnek is kiváló, havi 420 ezer Ft-os bérleti díjért jelenleg is bérlő van a lakásban.

MŰSZAKI FELSZERELTSÉG:
A felújítás lakberendező közreműködésével luxus színvonalon történt, új gépészetet, vezeték hálózatokat, padlófűtést, szanitereket és beépített bútorokat szereltek, a lakás elrendezését teljesen újra gondolták. A külső nyílászárók hőszigetelő üvegezéssel ellátottak. A fűtés és használati melegvíz ellátás kondenzációs gázkazánról megoldott. A nagy belmagasságnak köszönhetően 18 nm-es galéria került beépítésre.

Riasztó rendszer és hűtő-fűtő klíma is telepítésre került.

KÖLTSÉGEK:
Havi költségei kiváló műszaki és esztétikai kialakításának köszönhetően jelképesek.

PARKOLÁS:
Utcán, közterületen lehetséges. Az épület közvetlen környezetében mindig adódik szabad hely. Kerületi lakosok részére jelképes díjért éves parkolás váltható.

IRÁNYÁR:
99 millió Ft
250 ezer €


INGATLAN ADATAI

Ingatlan jellege
téglalakás
Belső terület
51 m²
Tájolás
kelet
Építési állapot
használt
Építési mód
tégla
Szobák száma
1+1 félszoba
Emelet
nincs emelet.
Épület szintje
4.
Lift
van
Ingatlan állapot
kívül: részben felújított
belül: felújított
Klíma
van
Ablak szerkezete
3 rétegű thermoplan
Fűtés
gázkazán
Komfort
összkomfort
Kilátás
udvarra
Energetika
nincs megadva
TÉRKÉP

Budapest, VI. kerület, Külső-Terézváros–Diplomatanegyed

Hitelkalkulátor


KAPCSOLAT
BH Admin
BH Admin


+36 70 588 4776

bhpingatlan@gmail.com

KAPCSOLAT
BH Admin

+36 70 588

bhpingatlan@

Az időpont kérés naptár ikonja
IDŐPONTOT KÉREK
A visszahívás kérés telefon ikonja egy azt körbe ölelő nyíllal
VISSZAHÍVÁST KÉREK
Ajánlom egy ismerősömnek ikon
AJÁNLOM EGY ISMERŐSÖMNEK
Facebook megosztás ikon
MEGOSZTÁS

KAPCSOLATFELVÉTEL

Küldés

Az üzenetet sikeresen elküldtük!
Hiba történt!
INGATLAN ADATAI

Ingatlan jellege

lakás

Belső terület

51 m²

Tájolás

kelet

Építési állapot

használt

Építési mód

tégla

Szobák száma

1+1 félszoba

Emelet

nincs emelet.

Épület szintje

4.

Lift

van

Ingatlan állapot

kívül: részben felújított
belül: felújított

Klíma

van

Ablak szerkezete

3 rétegű thermoplan

Fűtés

gázkazán

Komfort

összkomfort

Kilátás

udvarra

Energetika

nincs megadva

Az időpont kérés naptár ikonja
HTML
Az időpont kérés naptár ikonja
PDF

Hasonló ingatlan hírdetések

Eladó tégla-, vagy panellakás hirdetést keres Budapesten a VI. kerületben?
Tekintse meg további ajánlatainkat!

eladó lakás, Budapest, VI. kerület

eladó lakás

Budapest, VI. kerület, Külső-Terézváros–Diplomatanegyed
INGATLAN HELYSZÍNE: Eladásra kínálok egy 2017-ben teljes körűen, lakberendező közreműködésével felújított fiatalosan berendezett lakást Budapest VI. kerületében, a Vörösmarty utcában. A lakás elhelye...
Belső terület
71 m²
Szobák
2+2
Emelet
földszint

99 M Ft

Felújított!
Felújított
eladó lakás, Budapest, VI. kerület

eladó lakás

Budapest, VI. kerület, Terézváros (Nagykörúton belül)
INGATLAN HELYSZÍNE: Történelem, presztízs, luxus - Budapest leghíresebb sugárútján, az Andrássy úton, a Hétházak ikonikus épületegyüttesének központi részén, az Oktogontól és a Deák tértől is sétatáv...
Belső terület
41 m²
Szobák
1+1

122 M Ft

Felújított!
Felújított
eladó lakás, Budapest, VI. kerület

eladó lakás

Budapest, VI. kerület, Terézváros (Nagykörúton belül), Nagymező utca
Eladó lakás a belső Terézvárosban – Kiváló befektetési lehetőség! Eladó a VI. kerület szívében, a Nagymező utcában, az Andrássy út közvetlen közelében egy kiváló állapotú, 89 m²-es, kétszintes laká...
Belső terület
89 m²
Szobák
3
Emelet
1

169 M Ft

eladó lakás, Budapest, VI. kerület

eladó lakás

Eladó 73 nm-es, felújított polgári lakás az Opera közvetlen közelében, Terézváros szívében!

Budapest, VI. kerület, Terézváros (Nagykörúton belül), Paulay Ede utca
Eladó 73 nm-es, felújított polgári lakás az Opera közvetlen közelében, Terézváros szívében! Budapest VI. kerületében, a Paulay Ede utcában, az Andrássy út vonzáskörzetében kínáljuk megvételre ezt a...
Belső terület
73 m²
Szobák
2
Emelet
3

115 M Ft

eladó lakás, Budapest, VI. kerület

eladó lakás

Budapest, VI. kerület, Terézváros (Nagykörúton belül), Paulay Ede u.
Eladó Terézváros szívében, csendes egyirányú utcában egy kétszobás részben felújítandó polgári lakás. A társasházban – a kerületi rendelet okán – már csak januárig megengedett az airbnb, azonban ...
Belső terület
71 m²
Szobák
2
Emelet
3

99.9 M Ft

eladó lakás, Budapest, VI. kerület

eladó lakás

Budapest, VI. kerület, Terézváros (Nagykörúton kívül)
A NYUGATIHOZ KÖZEL bérlővel együtt eladó! AZONNALI BEVÉTEL, befektetésnek is! 80 nm nagypolgári lakás, 3 különbejáratú hálószoba 22nm 19nm 10nm, konyha, fürdő, WC, kamra és folyosó. 2. emeleti n...
Belső terület
80 m²
Szobák
3
Emelet
2

93.9 M Ft

eladó lakás, Budapest, VI. kerület

eladó lakás

Budapest, VI. kerület, Terézváros (Nagykörúton belül)
EGYEDÜLÁLLÓ LEHETŐSÉG AZOKNAK, AKIK BEFEKTETÉSI CÉLBÓL, MAGAS MINŐSÉGBEN FELÚJÍTOTT INGATLANT KERESNEK, AZOKNAK IS AKIK EGY TÁGAS, NYUGALMAS BÁZIST KERESNEK A NYÜZSGŐ BELVÁROSBAN! Az Operaház szoms...
Belső terület
80 m²
Szobák
3
Emelet
1

195 M Ft

eladó lakás, Budapest, VI. kerület

eladó lakás

Budapest, VI. kerület, Terézváros (Nagykörúton belül)
Budapest egyik legelőkelőbb helyszínén, az Andrássy úton kínálunk eladásra egy 83 m²-es, azonnal birtokba vehető luxuslakást! A 2. emeleti otthon ablakai közvetlenül a sugárútra néznek, így nemcsak a ...
Belső terület
83 m²
Szobák
2
Emelet
2

249.9 M Ft

kiemelt
Kiemelt
Budapest, VI. kerület - Külső-Terézváros–Diplomatanegyed
Budapest, VI. kerület - Külső-Terézváros–Diplomatanegyed
Budapest, VI. kerület - Külső-Terézváros–Diplomatanegyed
Budapest, VI. kerület - Külső-Terézváros–Diplomatanegyed
Budapest, VI. kerület - Külső-Terézváros–Diplomatanegyed
Budapest, VI. kerület - Külső-Terézváros–Diplomatanegyed
Budapest, VI. kerület - Külső-Terézváros–Diplomatanegyed
Budapest, VI. kerület - Külső-Terézváros–Diplomatanegyed
Budapest, VI. kerület - Külső-Terézváros–Diplomatanegyed
Budapest, VI. kerület - Külső-Terézváros–Diplomatanegyed
Budapest, VI. kerület - Külső-Terézváros–Diplomatanegyed
Budapest, VI. kerület - Külső-Terézváros–Diplomatanegyed
Budapest, VI. kerület - Külső-Terézváros–Diplomatanegyed
Budapest, VI. kerület - Külső-Terézváros–Diplomatanegyed
Budapest, VI. kerület - Külső-Terézváros–Diplomatanegyed