Eladó téglalakás - Budapest, XII. kerület

kiemelt
Kiemelt
KAPCSOLAT
Kovács Ibolya


+36 70 456

kovacs.ibolya@

Az időpont kérés naptár ikonja
IDŐPONTOT KÉREK
A visszahívás kérés telefon ikonja egy azt körbe ölelő nyíllal
VISSZAHÍVÁST KÉREK
Ajánlom egy ismerősömnek ikon
AJÁNLOM EGY ISMERŐSÖMNEK
Facebook megosztás ikon
MEGOSZTÁS

KAPCSOLATFELVÉTEL

Küldés

Az üzenetet sikeresen elküldtük!
Hiba történt!
INGATLAN ADATAI

Ingatlan jellege

téglalakás

Belső terület

160 m²

Tájolás

délnyugat

Építési állapot

használt

Építési mód

tégla

Szobák száma

4 szoba

Kert

275 m² (saját kert)

Erkély

5 m²

Terasz

31 m²

Emelet

földszint.

Épület szintje

4.

Épült

2024

Akadálymentes

igen

Lift

van

Ingatlan állapot

kívül: kitűnő
belül: luxus

Klíma

van

Szigetelés

18 cm

Ablak szerkezete

3 rétegű thermoplan

Fűtés

hőszivattyús

Komfort

luxus

Parkolás

van teremgarázs

Kilátás

kertre

Energetika

nincs megadva

Az időpont kérés naptár ikonja
HTML
Az időpont kérés naptár ikonja
PDF
Eladó téglalakás
Belső azonosító:
E49600
Ingatlan azonosító:
3954_red

Budapest, XII. kerület, Svábhegy

Irányár

550 M Ft
(3.44 M Ft/㎡)

Szobák

4 szoba

Emelet

földszint

Terület

160 m²
INGATLAN LEÍRÁSA
XII. kerület – Orbánhegy Újépítésű, luxus kivitelű földszinti lakás saját kerttel eladó!

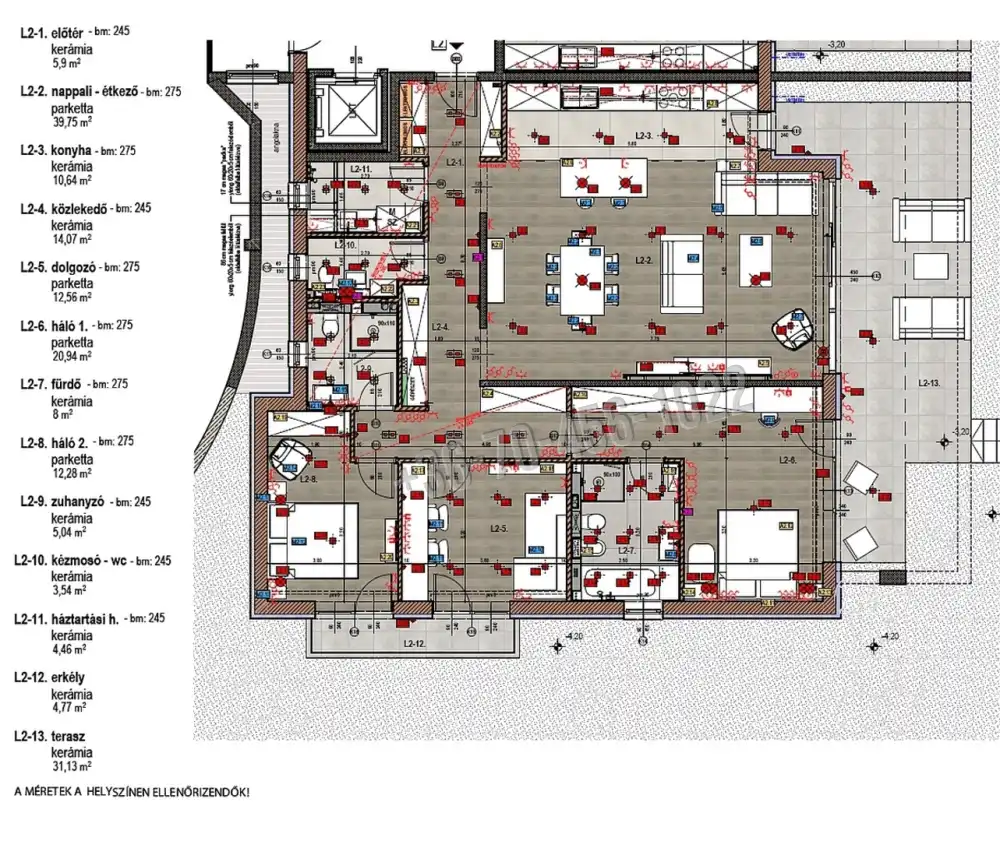
Budapest XII. kerületének egyik legszebb, legnyugodtabb részén, Orbánhegy zöldövezeti utcájában eladó egy különleges, minden részletében átgondolt, 160 m²hasznos alapterületű, újépítésű luxuslakás.

A mindössze öt lakásos, liftes társasház földszintjén található ingatlanhoz egy közel 300 m²-es, gondozott, automata öntözőrendszerrel felszerelt saját kert és egy 46 m²-es, közvetlenül kapcsolódó terasz tartozik – igazi oázis a város szívében.

A lakás belső tereiben a tágas, 50 m²-es amerikai konyhás nappali uralja a teret, amely a kertre néző, hatalmas üvegfelületeknek köszönhetően egész nap fényárban úszik.
Két hálószoba, egy dolgozószoba, két elegáns fürdőszoba, háztartási helyiség és külön vendégmosdó teszi teljessé a funkcionalitást.

A lakás műszaki tartalma a legmagasabb kategóriát képviseli: Panasonic hőszivattyús fűtés mennyezeti és padlófűtéssel, mennyezeti hűtés, hővisszanyerős szellőztető rendszer, háromrétegű fa nyílászárók, motoros alumínium redőnyök és teljes körű KNX épületautomatika gondoskodik a kényelemről és az energiahatékonyságról.
A fürdőszobákban Villeroy&Boch szaniterek és Hansgrohe szerelvények, míg a konyhában teljes Miele gépsor található – sütő, gőzpároló, kávégép, főzőlap, mikrohullámú sütő, mosogatógép, hűtő és fagyasztó. A lakás teljesen berendezve eladó: Natuzzi ülőgarnitúra, Leolux bútorok, Bonaldo étkezőasztal, Rolf Benz dohányzóasztal, Jacaranda szőnyegek, MESH csillár és SLV lámpatestek teszik teljessé az enteriőrt.

A lakáshoz kényelmes teremgarázs-beálló (15M Ft), felszíni parkoló (10M Ft), valamint két külön tároló (20M Ft)
A társasház biztonságos, zárt rendszerű, automata garázs- és kertkapuval, riasztóval és videó kaputelefonnal felszerelt.
A környék infrastruktúrája kifogástalan: a közeli buszmegállók (102, 112, 990) révén a belváros könnyen elérhető, ugyanakkor a lakás környezetét csend, zöld és kiváló levegő jellemzi. A közelben több elismert iskola, óvoda és bevásárlási lehetőség is található.

Ez az ingatlan valóban ritka kombinációja a modern technológiának, a természet közelségének és a kimagasló esztétikai minőségnek – egy igazi luxus otthon, amely azonnal költözhető, és minden részletében készen áll arra, hogy egy új tulajdonos méltó otthonává váljon.

INGATLAN ADATAI

Ingatlan jellege
téglalakás
Belső terület
160 m²
Tájolás
délnyugat
Építési állapot
használt
Építési mód
tégla
Szobák száma
4 szoba
Kert
275 m² (saját kert)
Erkély
5 m²
Terasz
31 m²
Emelet
földszint.
Épület szintje
4.
Épült
2024
Akadálymentes
igen
Lift
van
Ingatlan állapot
kívül: kitűnő
belül: luxus
Klíma
van
Szigetelés
18 cm
Ablak szerkezete
3 rétegű thermoplan
Fűtés
hőszivattyús
Komfort
luxus
Parkolás
van teremgarázs
Kilátás
kertre
Energetika
nincs megadva
TÉRKÉP

Budapest, XII. kerület, Svábhegy

Hitelkalkulátor


KAPCSOLAT
Kovács Ibolya
Kovács Ibolya


+36 70 456 1022

kovacs.ibolya@ibred.hu

KAPCSOLAT
Kovács Ibolya

+36 70 456

kovacs.ibolya@

Az időpont kérés naptár ikonja
IDŐPONTOT KÉREK
A visszahívás kérés telefon ikonja egy azt körbe ölelő nyíllal
VISSZAHÍVÁST KÉREK
Ajánlom egy ismerősömnek ikon
AJÁNLOM EGY ISMERŐSÖMNEK
Facebook megosztás ikon
MEGOSZTÁS

KAPCSOLATFELVÉTEL

Küldés

Az üzenetet sikeresen elküldtük!
Hiba történt!
INGATLAN ADATAI

Ingatlan jellege

lakás

Belső terület

160 m²

Tájolás

délnyugat

Építési állapot

használt

Építési mód

tégla

Szobák száma

4 szoba

Kert

275 m² (saját kert)

Erkély

5 m²

Terasz

31 m²

Emelet

földszint.

Épület szintje

4.

Épült

2024

Lift

van

Ingatlan állapot

kívül: kitűnő
belül: luxus

Klíma

van

Szigetelés

18 cm

Ablak szerkezete

3 rétegű thermoplan

Fűtés

hőszivattyús

Komfort

luxus

Parkolás

van teremgarázs

Kilátás

kertre

Energetika

nincs megadva

Az időpont kérés naptár ikonja
HTML
Az időpont kérés naptár ikonja
PDF

Hasonló ingatlan hírdetések

Eladó tégla-, vagy panellakás hirdetést keres Budapesten a XII. kerületben?
Tekintse meg további ajánlatainkat!

eladó új építésű lakás, Budapest, XII. kerület

eladó új építésű lakás

Budapest, XII. kerület, Mártonhegy
ÚJÉPÍTÉSŰ LUXUS LAKÁSOK – XII. kerületben MÁRTONHEGYEN, zöldövezeti környezetben. A XII. kerület csendes, családi házas, zöldövezeti részén, modern építészeti környezetben kínálunk luxus lakásokat...
Belső terület
74 m²
Szobák
2

344.6 M Ft

Új építésű!
Új építésű
eladó új építésű lakás, Budapest, XII. kerület

eladó új építésű lakás

Budapest, XII. kerület, Mártonhegy
ÚJÉPÍTÉSŰ LUXUS LAKÁSOK – XII. kerületben MÁRTONHEGYEN, zöldövezeti környezetben. A XII. kerület csendes, családi házas, zöldövezeti részén, modern építészeti környezetben kínálunk luxus lakásokat...
Belső terület
111 m²
Szobák
3

579 M Ft

Új építésű!
Új építésű
eladó új építésű lakás, Budapest, XII. kerület

eladó új építésű lakás

Budapest, XII. kerület, Mártonhegy
ÚJÉPÍTÉSŰ LUXUS LAKÁSOK – XII. kerület zöldövezeti részén, MÁRTONHEGYEN. A XII. kerület csendes, családi házas, zöldövezeti részén, kiváló megközelíthetőséggel és modern építészeti környezetben kín...
Belső terület
123 m²
Szobák
3

645 M Ft

Új építésű!
Új építésű
eladó lakás, Budapest, XII. kerület

eladó lakás

Budapest, XII. kerület, Budakeszierdő
Kiválóan megközelíthető, mégis csendes, biztonságos és színvonalas környezetben álomotthon eladó! INGATLAN HELYSZÍNE: XII. kerület Mártonhegy részén található, a Tállya utcában. Kifejezetten csend...
Belső terület
81 m²
Szobák
3
Emelet
1

169.9 M Ft

garázzsal
Garázzsal
eladó új építésű lakás, Budapest, XII. kerület

eladó új építésű lakás

Budapest, XII. kerület, Virányos
A projekt egy meglévő épület teljes átépítésével valósul meg, ahol 6 darab, egyedileg tervezett, magas műszaki tartalommal és prémium anyaghasználattal rendelkező lakás kerül kialakításra. A projekt k...
Belső terület
114 m²
Szobák
3+1
Emelet
1

299.9 M Ft

Új építésű!
Új építésű
eladó új építésű lakás, Budapest, XII. kerület

eladó új építésű lakás

Budapest, XII. kerület, Virányos
A projekt egy meglévő épület teljes átépítésével valósul meg, ahol 6 darab, egyedileg tervezett, magas műszaki tartalommal és prémium anyaghasználattal rendelkező lakás kerül kialakításra. A projekt k...
Belső terület
116 m²
Szobák
3+1
Emelet
1

314.9 M Ft

Új építésű!
Új építésű
eladó új építésű lakás, Budapest, XII. kerület

eladó új építésű lakás

Budapest, XII. kerület, Virányos
A projekt egy meglévő épület teljes átépítésével valósul meg, ahol 6 darab, egyedileg tervezett, magas műszaki tartalommal és prémium anyaghasználattal rendelkező lakás kerül kialakításra. A projekt k...
Belső terület
144 m²
Szobák
3+1
Emelet
földszint

329.9 M Ft

Új építésű!
Új építésű
eladó új építésű lakás, Budapest, XII. kerület

eladó új építésű lakás

Budapest, XII. kerület, Orbánhegy
Budapest XII.kerületének zöldövezetében - Orbánhegy egyik legkedveltebb részén - Fodor u. 28.sz alatti 2246 m2 -es, D-Nyi tájolású telken kínáljuk megvásárlásra az 5 lakásos épület ( földszint ,emele...
Belső terület
137 m²
Szobák
4
Emelet
földszint

550 M Ft + Áfa

Budapest, XII. kerület - Svábhegy
Budapest, XII. kerület - Svábhegy
Budapest, XII. kerület - Svábhegy
Budapest, XII. kerület - Svábhegy
Budapest, XII. kerület - Svábhegy
Budapest, XII. kerület - Svábhegy
Budapest, XII. kerület - Svábhegy
Budapest, XII. kerület - Svábhegy
Budapest, XII. kerület - Svábhegy
Budapest, XII. kerület - Svábhegy
Budapest, XII. kerület - Svábhegy
Budapest, XII. kerület - Svábhegy
Budapest, XII. kerület - Svábhegy