Eladó téglalakás - Pécs

KAPCSOLAT
Várai Sándor


+36 70 278

varai.sandor@

Az időpont kérés naptár ikonja
IDŐPONTOT KÉREK
A visszahívás kérés telefon ikonja egy azt körbe ölelő nyíllal
VISSZAHÍVÁST KÉREK
Ajánlom egy ismerősömnek ikon
AJÁNLOM EGY ISMERŐSÖMNEK
Facebook megosztás ikon
MEGOSZTÁS

KAPCSOLATFELVÉTEL

Küldés

Az üzenetet sikeresen elküldtük!
Hiba történt!
INGATLAN ADATAI

Ingatlan jellege

téglalakás

Belső terület

65 m²

Tájolás

dél, nyugat

Építési állapot

használt

Építési mód

tégla

Szobák száma

2+1 félszoba

Szobák elhelyezkedése

külön nyílik min. 2 szoba, de a fürdőből

Emelet

földszint.

Épület szintje

1.

Akadálymentes

igen

Lift

nincs

Ingatlan állapot

kívül: felújítandó
belül: felújítandó

Ablak szerkezete

hagyományos

Komfort

komfort

Kilátás

utcára, udvarra

Energetika

nincs megadva

Az időpont kérés naptár ikonja
HTML
Az időpont kérés naptár ikonja
PDF
Eladó téglalakás
Ingatlan azonosító:
37_vs

Baranya megye, Pécs, (Belváros), Könyök utca

Irányár

32 M Ft
(492.31 E Ft/㎡)

Szobák

2+1 félszoba

Emelet

földszint

Terület

65 m²
INGATLAN LEÍRÁSA
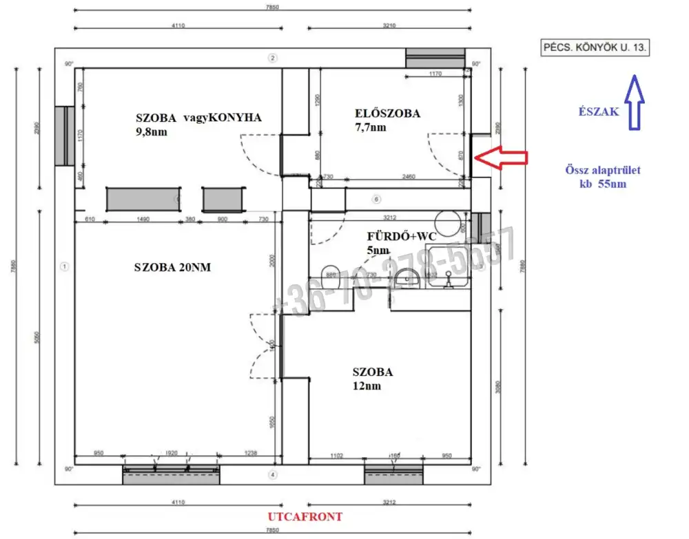
Tégla lakás Pécs történelmi belvárosában, udvarkapcsolattal eladó.
A földszinti, 65 m²-es, két hálószobás lakás a Könyök utcában, csendes környezetben ,akadálymentesített ingatlan, amely az udvarról nyílik. ablakai délre és nyugatra néznek, így világos életteret biztosítanak. Az alaprajz jó elosztású:
előszoba, külön nyíló szobák, konyha, fürdő, WC és nappali található benne. A lakás teljeskörű felújítást igényel, így ideális lehetőséget kínál a saját elképzelések szerinti kialakításra. Az infrastruktúra adott – víz, villany, szennyvíz bekötve, a gáz az udvaron elérhető. Kő lábazat, tégla falazat, hagyományos fafödém és felújítandó magas tető (cserépfedéssel) jellemzi. Az udvaron két újszerű lakás épült, rendezett a környezetben. Az ingatlan osztatlan közös tulajdonban van , korrekt használati megállapodással rendelkezik,így a kedvezményes OTTHON-START kölcsönre is alkalmas. A környék infrastruktúrája és közlekedése kiváló. Gépkocsi beállási lehetőség kialakítható. Minden ajánlatot meghallgatunk. Hívjon! Irányára 32 mil Ft .


INGATLAN ADATAI

Ingatlan jellege
téglalakás
Belső terület
65 m²
Tájolás
dél, nyugat
Építési állapot
használt
Építési mód
tégla
Szobák száma
2+1 félszoba
Szobák elhelyezkedése
külön nyílik min. 2 szoba, de a fürdőből
Emelet
földszint.
Épület szintje
1.
Akadálymentes
igen
Lift
nincs
Ingatlan állapot
kívül: felújítandó
belül: felújítandó
Ablak szerkezete
hagyományos
Komfort
komfort
Kilátás
utcára, udvarra
Energetika
nincs megadva
TÉRKÉP

Baranya megye, Pécs, Könyök utca

Hitelkalkulátor


KAPCSOLAT
Várai Sándor
Várai Sándor


+36 70 278 5657

varai.sandor@gmail.com

KAPCSOLAT
Várai Sándor

+36 70 278

varai.sandor@

Az időpont kérés naptár ikonja
IDŐPONTOT KÉREK
A visszahívás kérés telefon ikonja egy azt körbe ölelő nyíllal
VISSZAHÍVÁST KÉREK
Ajánlom egy ismerősömnek ikon
AJÁNLOM EGY ISMERŐSÖMNEK
Facebook megosztás ikon
MEGOSZTÁS

KAPCSOLATFELVÉTEL

Küldés

Az üzenetet sikeresen elküldtük!
Hiba történt!
INGATLAN ADATAI

Ingatlan jellege

lakás

Belső terület

65 m²

Tájolás

dél, nyugat

Építési állapot

használt

Építési mód

tégla

Szobák száma

2+1 félszoba

Szobák elhelyezkedése

külön nyílik min. 2 szoba, de a fürdőből

Emelet

földszint.

Épület szintje

1.

Lift

nincs

Ingatlan állapot

kívül: felújítandó
belül: felújítandó

Ablak szerkezete

hagyományos

Komfort

komfort

Kilátás

utcára, udvarra

Energetika

nincs megadva

Az időpont kérés naptár ikonja
HTML
Az időpont kérés naptár ikonja
PDF

Hasonló ingatlan hírdetések

Eladó tégla-, vagy panellakás hirdetést keres Pécs területén?
Tekintse meg további ajánlatainkat!

eladó lakás, Pécs

eladó lakás

Baranya megye, Pécs, Belváros
Befektetési lehetőség Pécs belvárosában! Pécsett, az Árkád és a Pécsi Tudományegyetem több karának közvetlen szomszédságában eladó egy felújított, földszinti lakás. Két külön helyrajzi számon ny...
Belső terület
110 m²
Szobák
3
Emelet
földszint

65 M Ft

eladó lakás, Pécs

eladó lakás

Baranya megye, Pécs, (Ispitaalja), Nagyvárad utca
Pécs Nagyvárad utcában 1940-es években épült 6 lakásos társasház 1. emeletén eladó csöndes, világos, 56 nm-es, 2 külön nyíló szobás lakás. Tágas nappali szép nagy, utcára néző ablakokkal, egy külön ny...
Belső terület
56 m²
Szobák
2
Emelet
1

47.8 M Ft

eladó lakás, Pécs

eladó lakás

Baranya megye, Pécs, Belváros
Pécs történelmi belvárosában, a Széchenyi tér közvetlen szomszédságában eladó egy sokoldalúan használható, kifogástalan műszaki és esztétikai állapotú, nagyteraszos, háromszintes ingatlan, négy szobáv...
Belső terület
115 m²
Szobák
4
Emelet
földszint

85.9 M Ft

eladó panel lakás, Pécs

eladó panel lakás

Baranya megye, Pécs, (Kertváros), Tildy Zoltán utca
Eladásra kínálok Pécs-Kertvárosban egy teljeskörűen felújított, 2 szobás, erkélyes panellakást. Az ingatlan egy tízemeletes társasház 9. emeletén helyezkedik el. A lakásban a víz-, és villanyhálóz...
Belső terület
52 m²
Szobák
2
Emelet
10

46.9 M Ft

eladó panel lakás, Pécs

eladó panel lakás

Baranya megye, Pécs, (Kertváros), Visnya Ernő utca
Pécs, Kertvárosban a Visnya Ernő utcában FELÚJÍTOTT magasföldszinti lakás eladó! Az 59m2-es 2,5 szobás, erkélyes ingatlan kelet-nyugati tájolású. A szobák és a konyha a csendes parkra néz , az erké...
Belső terület
59 m²
Szobák
2+1
Emelet
földszint

45.99 M Ft

sürgős!
Sürgős
eladó lakás, Pécs

eladó lakás

Baranya megye, Pécs, Belváros
Eladásra kínálok Pécs történelmi belvárosában egy nagyon hangulatos, kertkapcsolatos lakást. Az ingatlan teljes felújításon esett át. Ez érintette a teljes villany és vízvezetékeket, nyílászárókat,...
Belső terület
239 m²
Szobák
3

129.9 M Ft

Felújított!
Felújított
eladó új építésű lakás, Pécs

eladó új építésű lakás

Baranya megye, Pécs, Balokány
Új építésű, modern lakás eladó Pécs belvárosának közvetlen szomszédságában! Eladásra kínálunk egy kiváló elrendezésű, 2,5 szobás emeleti lakást, négy lakásos újépítésű társasházban, Pécs egyik legk...
Belső terület
54 m²
Szobák
2+1

54 M Ft

eladó panel lakás, Pécs

eladó panel lakás

Baranya megye, Pécs, (Mecsekoldal Belváros), Jurisics Miklós utca
CSALÁD SZÁMÁRA VAGY BEFEKTETÉSRE KERESEL LAKÁST ? Pécs , Mecsekoldal, Jurisics Miklós utcában kínálunk eladásra egy TELJESKÖRŰEN FELÚJÍTOTT, 57 nm-es, 2+1 félszobás panellakást egy SZIGETELT 4 eme...
Belső terület
57 m²
Szobák
2+1
Emelet
3

52.9 M Ft

Felújított!
Felújított
Baranya megye - Pécs
Baranya megye - Pécs
Baranya megye - Pécs
Baranya megye - Pécs
Baranya megye - Pécs
Baranya megye - Pécs
Baranya megye - Pécs
Baranya megye - Pécs
Baranya megye - Pécs
Baranya megye - Pécs
Baranya megye - Pécs
Baranya megye - Pécs
Baranya megye - Pécs
Baranya megye - Pécs