Eladó téglalakás - Tatabánya

kiemelt
Kiemelt
KAPCSOLAT
Papp László


+36 70 528

papp.laszlo@

Az időpont kérés naptár ikonja
IDŐPONTOT KÉREK
A visszahívás kérés telefon ikonja egy azt körbe ölelő nyíllal
VISSZAHÍVÁST KÉREK
Ajánlom egy ismerősömnek ikon
AJÁNLOM EGY ISMERŐSÖMNEK
Facebook megosztás ikon
MEGOSZTÁS

KAPCSOLATFELVÉTEL

Küldés

Az üzenetet sikeresen elküldtük!
Hiba történt!
INGATLAN ADATAI

Ingatlan jellege

téglalakás

Belső terület

77 m²

Tájolás

dél

Panoráma

zöldövezetre

Építési állapot

használt

Építési mód

tégla

Szobák száma

4+2 félszoba

Emelet

4.

Épület szintje

4.

Épült

kb. 1960

Lift

nincs

Ingatlan állapot

kívül: jó
belül: kitűnő

Klíma

van

Ablak szerkezete

2 rétegű thermoplan

Fűtés

távfűtés

Komfort

összkomfort

Kilátás

utcára

Energetika

B:

Extrák

plusz lakótér de önkormányzati, +30m2

Az időpont kérés naptár ikonja
HTML
Az időpont kérés naptár ikonja
PDF
Eladó téglalakás
Ingatlan azonosító:
4244_ko

Komárom-Esztergom megye, Tatabánya, (Újváros), Huba vezér utca

Irányár

72 M Ft
(935.06 E Ft/㎡)

Szobák

4+2 félszoba

Emelet

4

Terület

77 m²
INGATLAN LEÍRÁSA
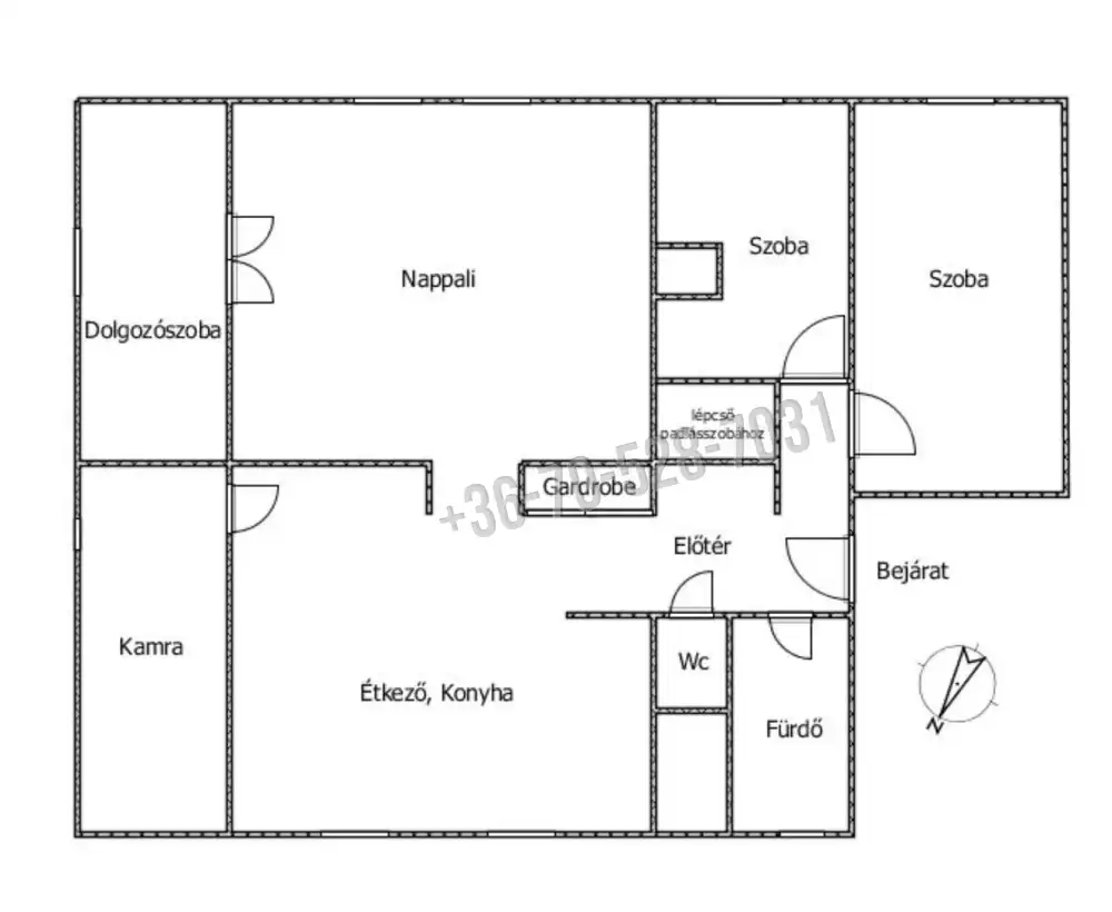
Eladó Tatabánya Újvárosban egy nagyon tágas, világos, tetőtéri, 77 m2-es otthon a 4. emeleten.
A lakás nagyon különleges elrendezésű, tágas nappalival, és élhető szép konyha- étkezővel rendelkezik. Az ingatlan jó minőségű fa, és modern műanyag ablakokkal is felszerelt.
Az otthon összeköttetésben van egy padlásszobával is amihez egyedülálló haszonélvezeti joggal rendelkezik.
Összessen így 4 szoba+2 fél szoba is rendelkezésre áll az új tulajdonos számára. Minden helyiségben kíváló minőségű burkolatok lettek felhelyezve.
Az ingatlan közelében minden megtalálható, ami a kényelmes mindennapi élethez szükséges.
Nézzük meg együtt ezt a különleges lakást, időpont egyeztetés végett keressen akár hétvégén, vagy az esti órákban is! Bankfüggetlen pénzügyi szakembereinkkel intézzük az esetleges hiteligényét!

INGATLAN ADATAI

Ingatlan jellege
téglalakás
Belső terület
77 m²
Tájolás
dél
Panoráma
zöldövezetre
Építési állapot
használt
Építési mód
tégla
Szobák száma
4+2 félszoba
Emelet
4.
Épület szintje
4.
Épült
kb. 1960
Lift
nincs
Ingatlan állapot
kívül: jó
belül: kitűnő
Klíma
van
Ablak szerkezete
2 rétegű thermoplan
Fűtés
távfűtés
Komfort
összkomfort
Kilátás
utcára
Energetika
B:
Extrák
plusz lakótér de önkormányzati, +30m2

Hitelkalkulátor


KAPCSOLAT
Papp László
Papp László


+36 70 528 7031

papp.laszlo@komplexingatlan.com

KAPCSOLAT
Papp László

+36 70 528

papp.laszlo@

Az időpont kérés naptár ikonja
IDŐPONTOT KÉREK
A visszahívás kérés telefon ikonja egy azt körbe ölelő nyíllal
VISSZAHÍVÁST KÉREK
Ajánlom egy ismerősömnek ikon
AJÁNLOM EGY ISMERŐSÖMNEK
Facebook megosztás ikon
MEGOSZTÁS

KAPCSOLATFELVÉTEL

Küldés

Az üzenetet sikeresen elküldtük!
Hiba történt!
INGATLAN ADATAI

Ingatlan jellege

lakás

Belső terület

77 m²

Tájolás

dél

Panoráma

zöldövezetre

Építési állapot

használt

Építési mód

tégla

Szobák száma

4+2 félszoba

Emelet

4.

Épület szintje

4.

Épült

kb. 1960

Lift

nincs

Ingatlan állapot

kívül: jó
belül: kitűnő

Klíma

van

Ablak szerkezete

2 rétegű thermoplan

Fűtés

távfűtés

Komfort

összkomfort

Kilátás

utcára

Energetika

B:

Extrák

plusz lakótér de önkormányzati, +30m2

Az időpont kérés naptár ikonja
HTML
Az időpont kérés naptár ikonja
PDF

Hasonló ingatlan hírdetések

Eladó tégla-, vagy panellakás hirdetést keres Tatabánya területén?
Tekintse meg további ajánlatainkat!

eladó panel lakás, Tatabánya

eladó panel lakás

​Világos, felújított lakás Tatabánya kedvelt részén, csodás panorámával.

Komárom-Esztergom megye, Tatabánya, (Újváros), Mártírok útja
​Világos, felújított lakás Tatabánya kedvelt részén, csodás panorámával Tatabánya Újváros kedvelt részén, a Mártírok útján vált elérhetővé ez az 53 m²-es, felújított, azonnal költözhető, két különn...
Belső terület
53 m²
Szobák
2
Emelet
10

38.9 M Ft

eladó panel lakás, Tatabánya

eladó panel lakás

átalakított 1+2 félszoba

Komárom-Esztergom megye, Tatabánya, Újváros
Komplex Ingatlan eladásra kínál Tatabányán, az Ifjúság úton egy 53 m²-es, hatodik emeleti, egyedien átalakított 1 + 2 félszobás lakást. Az eredeti elrendezés teljes újragondolásával egy rendkívül pra...
Belső terület
53 m²
Szobák
1+2
Emelet
6

44.49 M Ft

eladó panel lakás, Tatabánya

eladó panel lakás

TATABÁNYA KERTVÁROS, 2. EMELETI, 2 SZOBÁS, NAGY ERKÉLYES LAKÁS

Komárom-Esztergom megye, Tatabánya, Kertváros
TATABÁNYA KERTVÁROSI, ZÖLDÖVEZETI RÉSZÉN ERKÉLYES, 2 SZOBÁS LAKÁS ELADÓ! Tatabánya Kertváros nyugodt, zöldövezeti környezetében kínálunk megvételre egy 2 szobás, erkélyes lakást, amely egy szigetelt...
Belső terület
50 m²
Szobák
2
Emelet
2

39.99 M Ft

kiemelt
Kiemelt
eladó panel lakás, Tatabánya

eladó panel lakás

Komárom-Esztergom megye, Tatabánya, (Gál István lakótelep), Gál István lakótelep
Eladó Tatabányán a Gál István lakótelepen rendezett társas házban egy 55nm-es, nagyon jó ár-érték arányú, 1+2 félszobás, erkélyes, tizedik emeleti csendes, világos, panorámás lakás. A 3.5 nm-es erkély...
Belső terület
55 m²
Szobák
1+2
Emelet
9

38.9 M Ft

eladó lakás, Tatabánya

eladó lakás

Eladó földszinti téglalakás Tatabányán! Kiváló elhelyezkedés, remek közlekedés! Fedezd fel ezt az ingatlant Komárom-Esztergom megye szívében, tökéletes választás idősebbeknek, családoknak és befektetésnek egyaránt! Ne maradj le, érdeklődj még ma!

Komárom-Esztergom megye, Tatabánya, (Kertváros), Építők útja
A mai modern élettér igényeinek felel meg ez az eladó földszinti lakás, ami egy kis extrát is kínál... Tatabánya csendes, zöldövezetes részén vár akár téged ez a lakás! Az eladó tehermentes, remek ...
Belső terület
53 m²
Szobák
2+1
Emelet
földszint

43.9 M Ft

azonnal költözhető
Azonnal költözhető
eladó panel lakás, Tatabánya

eladó panel lakás

Jó elrendezésű lakás, központi helyen, alacsony fenttartási költségekkel!

Komárom-Esztergom megye, Tatabánya, (Újváros), Mártírok útja
Eladó Tatabánya Újvárosban a Mártírok úton, egy 10 emeletes épületben lévő 1,5 szobás, 4. emeleti felújítandó lakás. A nyílászárók jó minőségű műanyagok, 2 rétegű üvegezéssel, és a villamos hálózat ...
Belső terület
36 m²
Szobák
1+1
Emelet
4

28.9 M Ft

alkalmi vétel
Alkalmi vétel
eladó lakás, Tatabánya

eladó lakás

Jó elrendezésű, takarékos, földszinti 2 szobás lakás téglaépületben.

Komárom-Esztergom megye, Tatabánya, (Kertvárosi lakótelep), Dr. Vitális István utca
Eladó egy földszinti, 2 szobás, 49m2 -es téglalakás Tatabánya Kertvárosban. Az épület kívűlről egy 10 cm-es szigetelést kapott, és a fűtést a melegvízzel együtt távvezetéken kapja. Mivel a lakás té...
Belső terület
49 m²
Szobák
2
Emelet
földszint

34.9 M Ft

azonnal költözhető
Azonnal költözhető
eladó panel lakás, Tatabánya

eladó panel lakás

Tatabánya Sárberek zsákutcában felújított, klímás 2 szobás lakás!

Komárom-Esztergom megye, Tatabánya, (Sárberek), Sárbereki lakótelep
SÁRBERKI NYUGALOM! FELÚJÍTOTT, 2 SZOBÁS LAKÁS ZSÁKUTCÁBAN! Tatabánya kedvelt Sárberki lakótelepen, csendes zsákutcában, átmenő forgalomtól mentes környezetben eladó egy 49 m²-es, felújított, világos...
Belső terület
49 m²
Szobák
2
Emelet
4

41.9 M Ft

sürgős!
Sürgős
Komárom-Esztergom megye - Tatabánya
Komárom-Esztergom megye - Tatabánya
Komárom-Esztergom megye - Tatabánya
Komárom-Esztergom megye - Tatabánya
Komárom-Esztergom megye - Tatabánya
Komárom-Esztergom megye - Tatabánya
Komárom-Esztergom megye - Tatabánya
Komárom-Esztergom megye - Tatabánya
Komárom-Esztergom megye - Tatabánya
Komárom-Esztergom megye - Tatabánya
Komárom-Esztergom megye - Tatabánya
Komárom-Esztergom megye - Tatabánya
Komárom-Esztergom megye - Tatabánya
Komárom-Esztergom megye - Tatabánya
Komárom-Esztergom megye - Tatabánya
Komárom-Esztergom megye - Tatabánya
Komárom-Esztergom megye - Tatabánya
Komárom-Esztergom megye - Tatabánya
Komárom-Esztergom megye - Tatabánya
Komárom-Esztergom megye - Tatabánya
Komárom-Esztergom megye - Tatabánya
Komárom-Esztergom megye - Tatabánya
Komárom-Esztergom megye - Tatabánya
Komárom-Esztergom megye - Tatabánya
Komárom-Esztergom megye - Tatabánya
Komárom-Esztergom megye - Tatabánya
Komárom-Esztergom megye - Tatabánya
Komárom-Esztergom megye - Tatabánya