Eladó téglalakás - Velence

KAPCSOLAT
Bálint Judit Ildikó


+36 70 885

info@

Az időpont kérés naptár ikonja
IDŐPONTOT KÉREK
A visszahívás kérés telefon ikonja egy azt körbe ölelő nyíllal
VISSZAHÍVÁST KÉREK
Ajánlom egy ismerősömnek ikon
AJÁNLOM EGY ISMERŐSÖMNEK
Facebook megosztás ikon
MEGOSZTÁS

KAPCSOLATFELVÉTEL

Küldés

Az üzenetet sikeresen elküldtük!
Hiba történt!
INGATLAN ADATAI

Ingatlan jellege

téglalakás

Belső terület

1 m²

Tájolás

dél

Építési állapot

használt

Építési mód

prokoncept

Szobák száma

3 szoba

Emelet

nincs emelet.

Épület szintje

2.

Épült

2025

Lift

nincs

Ingatlan állapot

kívül: luxus
belül: luxus

Szigetelés

15 cm

Fűtés

hőszivattyús

Komfort

összkomfort

Energetika

nincs megadva

Az időpont kérés naptár ikonja
HTML
Az időpont kérés naptár ikonja
PDF
Eladó téglalakás
Ingatlan azonosító:
26_jib

Fejér megye, Velence, Újtelep

Irányár

300 M Ft
(300 M Ft/㎡)

Szobák

3 szoba

Terület

1 m²
INGATLAN LEÍRÁSA
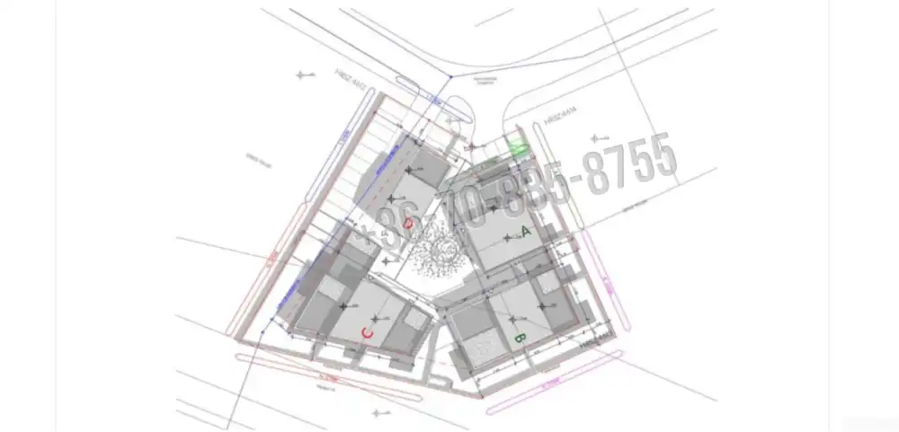
Exkluzív velencei fejlesztési lehetőség eladó!

Velence egyik legígéretesebb lakóövezetének központi részén kínáljuk megvételre egy 21 lakásos prémium társasház teljes projektcégét, jogerős építési engedéllyel és komplett kiviteli tervcsomaggal. A projekt minden engedélye rendelkezésre áll, így azonnal folytatható a kivitelezés.

A fejlesztés már megkezdődött:
– az első épület alapozása elkészült, a beruházás így nemcsak papíron létezik, hanem tényleges, előrehaladott státuszban várja új tulajdonosát.

A projekt mérete és prémium jellege kiváló lehetőséget teremt mind hosszú távú befektetőknek, mind olyan szakmai szereplőknek, akik egy kész, átvételre kész, elegánsan megtervezett lakófejlesztést keresnek.

A projekt átadásához szükséges további beruházás összege: 300 millió Ft.

Velence folyamatosan fejlődő környezete, a természetközeli életmód és a kedvező közlekedési kapcsolatok együttesen biztosítják, hogy a 21 lakásos társasház könnyen értékesíthető, magas presztízsű fejlesztés legyen.

Ritka lehetőség a luxuspiacon — olyan befektetők számára, akik kész projekttel, minimális adminisztrációval és azonnali folytathatósággal keresnek prémium portfólióbővítést.

INGATLAN ADATAI

Ingatlan jellege
téglalakás
Belső terület
1 m²
Tájolás
dél
Építési állapot
használt
Építési mód
prokoncept
Szobák száma
3 szoba
Emelet
nincs emelet.
Épület szintje
2.
Épült
2025
Lift
nincs
Ingatlan állapot
kívül: luxus
belül: luxus
Szigetelés
15 cm
Fűtés
hőszivattyús
Komfort
összkomfort
Energetika
nincs megadva
TÉRKÉP

Fejér megye, Velence, Újtelep

Hitelkalkulátor


KAPCSOLAT
Bálint Judit Ildikó
Bálint Judit Ildikó


+36 70 885 8755

info@jibrealestate.com

KAPCSOLAT
Bálint Judit Ildikó

+36 70 885

info@

Az időpont kérés naptár ikonja
IDŐPONTOT KÉREK
A visszahívás kérés telefon ikonja egy azt körbe ölelő nyíllal
VISSZAHÍVÁST KÉREK
Ajánlom egy ismerősömnek ikon
AJÁNLOM EGY ISMERŐSÖMNEK
Facebook megosztás ikon
MEGOSZTÁS

KAPCSOLATFELVÉTEL

Küldés

Az üzenetet sikeresen elküldtük!
Hiba történt!
INGATLAN ADATAI

Ingatlan jellege

lakás

Belső terület

1 m²

Tájolás

dél

Építési állapot

használt

Építési mód

prokoncept

Szobák száma

3 szoba

Emelet

nincs emelet.

Épület szintje

2.

Épült

2025

Lift

nincs

Ingatlan állapot

kívül: luxus
belül: luxus

Szigetelés

15 cm

Fűtés

hőszivattyús

Komfort

összkomfort

Energetika

nincs megadva

Az időpont kérés naptár ikonja
HTML
Az időpont kérés naptár ikonja
PDF

Hasonló ingatlan hírdetések

Eladó tégla-, vagy panellakás hirdetést keres Velence területén?
Jelenleg nincsenek hasonló aktuális ajánlatok Velence településen.
Tekintse meg további Fejér megyei ajánlatainkat !

eladó lakás, Dunaújváros

eladó lakás

Fejér megye, Dunaújváros, (Technikum városrész), Esze Tamás utca
Eladó felújított, 1 szobás téglalakás az Esze Tamás utcában! Eladásra kínálunk egy 35 m²-es, magasföldszinti, 2021-ben teljeskörűen felújított téglalakást, amely kiváló választás első lakásnak, bef...
Belső terület
36 m²
Szobák
1
Emelet
magasföldszint

28.9 M Ft

Felújított!
Felújított
eladó panel lakás, Dunaújváros

eladó panel lakás

Fejér megye, Dunaújváros, Béke városrész
Eladó Dunaújvárosban egy 59 nm-es, 1+2 félszobás, 9. emeleti panel lakás ÁlomOtthon Ingatlan és Hiteliroda kínálja megvételre ezt a Dunaújváros Béke városrészének egyik kedvelt részén található 59 ...
Belső terület
59 m²
Szobák
1+2
Emelet
9

35.5 M Ft

eladó panel lakás, Dunaújváros

eladó panel lakás

Dunaújváros - Belváros - Azonnal költözhető

Fejér megye, Dunaújváros, (Belváros), Dózsa György út
Otthonosság- kényelem - Dunaújváros szívében - azonnal költözhető Eladásra kínálunk Dunaújváros belvárosában, a Dózsa György úton - butiksoron egy 44 m²-es, 1+1 félszobás, 2. emeleti lakást. A ...
Belső terület
44 m²
Szobák
1+1
Emelet
2

31.5 M Ft

eladó panel lakás, Dunaújváros

eladó panel lakás

Fejér megye, Dunaújváros, Balogh Ádám utca
Ha egy könnyen fenntartható, jól megközelíthető, kis méretű otthont keres Dunaújvárosban, akkor érdemes megismernie ezt a Balogh Ádám utcában található 34 m²-es lakást. A 10 emeletes panelház második ...
Belső terület
34 m²
Szobák
1+1
Emelet
2

26 M Ft

azonnal költözhető
Azonnal költözhető
eladó panel lakás, Dunaújváros

eladó panel lakás

Fejér megye, Dunaújváros, (Római városrész), Fáy András utca
Dunaújvárosban, a Római városrész zöldövezeti, csendes részén eladó egy felújításra váró, 2 szobás, erkélyes panellakás. A lakás a 2. emeleten található, egy szigetelt, rendezett lépcsőházban, és t...
Belső terület
52 m²
Szobák
2
Emelet
2

29.5 M Ft

azonnal költözhető
Azonnal költözhető
eladó panel lakás, Dunaújváros

eladó panel lakás

Fejér megye, Dunaújváros, (Technikum városrész), Weiner Tibor körút
Eladó 1+félszobás, felújított, azonnal költözhető panel lakás – Technikum városrész, Kis Tesco közelében Technikum városrészben, a Kis Tesco közelében eladó egy 35 m²-es, 1+félszobás, első emeleti ...
Belső terület
35 m²
Szobák
1+1
Emelet
1

26.7 M Ft

azonnal költözhető
Azonnal költözhető
eladó panel lakás, Dunaújváros

eladó panel lakás

Fejér megye, Dunaújváros, Római városrész
Dunaújvárosban, a Római városrész zöldövezeti, csendes részén eladó egy jó állapotú, 2 szobás, beépített erkélyes panellakás. A lakás a 6. emeleten található, egy szigetelt, rendezett lépcsőházban,...
Belső terület
52 m²
Szobák
2
Emelet
6

33 M Ft

azonnal költözhető
Azonnal költözhető
eladó panel lakás, Dunaújváros

eladó panel lakás

Azonnal költözhető

Fejér megye, Dunaújváros, (Belváros), Balogh Ádám utca
Dunaújvárosban, belváros közelében, 34 m2-es, lakás eladó! Az ingatlan egy 10 emeletes panel épület, 2. emeletén van. Lakásról: - 1 szoba + étkező - elektromos hálózat teljes körűen felújítva ...
Belső terület
34 m²
Szobák
1
Emelet
2

26 M Ft

Fejér megye - Velence
Fejér megye - Velence
Fejér megye - Velence
Fejér megye - Velence
Fejér megye - Velence
Fejér megye - Velence
Fejér megye - Velence
Fejér megye - Velence
Fejér megye - Velence