Eladó új építésű ház - Kiskunlacháza

KAPCSOLAT
Hajas Zsuzsanna


+36 30 229

hajaszsuzsa.leeb@

Az időpont kérés naptár ikonja
IDŐPONTOT KÉREK
A visszahívás kérés telefon ikonja egy azt körbe ölelő nyíllal
VISSZAHÍVÁST KÉREK
Ajánlom egy ismerősömnek ikon
AJÁNLOM EGY ISMERŐSÖMNEK
Facebook megosztás ikon
MEGOSZTÁS

KAPCSOLATFELVÉTEL

Küldés

Az üzenetet sikeresen elküldtük!
Hiba történt!
INGATLAN ADATAI

Ingatlan jellege

családi ház

Belső terület

112 m²

Telek terület

456 m²

Tájolás

dél, kelet

Építési állapot

új

Építési mód

tégla

Szobák száma

4 szoba

Terasz

17 m²

Épület szintje

1.

Épült

2026

Ingatlan állapot

kívül: új
belül: új

Szigetelés

15 cm

Ablak szerkezete

3 rétegű thermoplan

Fűtés

hőszivattyús

Komfort

összkomfort

Parkolás

van fedetlen felszíni beálló

Közműállapot

csatorna: bekötve
gáz: utcában
villany: bekötve
víz: bekötve

Energetika

A+:

Az időpont kérés naptár ikonja
HTML
Az időpont kérés naptár ikonja
PDF
Eladó új építésű ház
Ingatlan azonosító:
8259_leebesfia

Pest megye, Kiskunlacháza, Dunaparti üdülő

Irányár

94.9 M Ft
(847.32 E Ft/㎡)

Szobák

4 szoba

Terület

112 m²

Telek terület

456 m²
INGATLAN LEÍRÁSA
Pár percre a Dunától, önálló ház, akár 3% Otthon Start hitelre!
Ha életérzést keres, akkor ez az ingatlan az Öné. Nyugalom, természet, vízpart egy helyen!
Kiskunlacházán, a Dunától 100 méterre, csendes, kulturált környezetben kínálok eladásra új építésű, nettó 112 nm,4 szobás, praktikus kialakítású, önálló családi házat, 456 nm telekkel. Víz, csatorna, villany van, gáz az utcában. A kivitelezést magas műszaki színvonal jellemzi.
A környék ideális horgászoknak, természetkedvelőknek, családoknak és nyaralónak is.
Az ingatlan kivitelezés alatt áll, a leendő tulajdonos számára még lehetőség nyílik bizonyos belső kialakítások, szaniterek kiválasztására, a kivitelezési szakasztól függően.
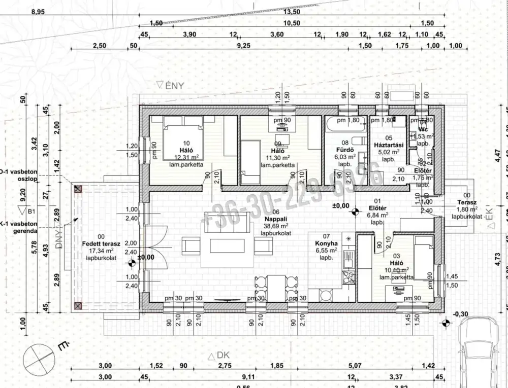
Elrendezése: előtér, 45 nm amerikai konyha-nappali, 3 szoba, fürdőszoba wc-vel, külön wc, háztartási helyiség, 17,5 nm fedett terasz.
Az épület belső kialakítása a kivitelezővel egyeztetve, még változtatható.
Műszaki adatokból ízelítő:
-Leier 30 cm tégla falazat
-15 cm-es grafitos homlokzati szigetelés
-3 rétegű műanyag nyílászárók, redőnnyel és szúnyoghálóval szereltek
-a fűtést-hűtést, és a meleg vizet: energiatakarékos hőszivattyú rendszer (levegős) biztosítja. Alacsony rezsivel számolhat a hőszivattyús rendszernek és az ELMŰ-nél megigényelhető H tarifájú KEDVEZMÉNYES áram díjszabás igénylésének köszönhetően, mellyel sokat spórolhat a fűtési szezon alatt!
Az épület 100%-ban padlófűtéssel rendelkezik, amely magasabb komfortfokozatot, költséghatékonyságot és jobb bútorozhatóságot biztosít.
Az ingatlan megépítése során modern, energiatakarékos megoldások kerülnek alkalmazásra, megfelelve a mai kor elvárásainak.
-3x16 Amper
-30 cm-es födémszigetelés, pakolható padlás,
-elektromos kapu kiállás,
-betoncserép
-alap kertrendezés
A festés fehér színben, hideg-meleg burkolatok 12.000,-Ft/nm-ig, ajtók, szaniterek meghatározott áron választhatók.
Egyénre szabott fizetési ütemezés a kivitelezővel egyeztetve!
Illetékmentesség, CSOK+, 3% támogatott hitelek felvehetők.
Teljes körű és díjmentes hitel ügyintézéssel áll rendelkezésére szakértő kollégánk, kérje személyre szabott ajánlatunkat!
Ez az ingatlan kiváló lehetőséget kínál azok számára, akik új, modern, alacsony rezsivel rendelkező otthont keresnek, és szeretnének részt venni a saját házuk kialakításában.
Képzeld el, hogy minden reggel madárcsicsergésre ébredsz, és pár perc sétával már a vízparton vagy. Most ez a lehetőség a tied lehet!
Részletes tervdokumentációt, műszaki leírást, alaprajzot a helyszínen tudok adni. Tervezett átadás 2026. ősz.
A projekt műszakilag és jogilag rendezett, a kivitelezéssel kapcsolatos további kérdéseivel forduljon hozzám bizalommal, visszahívom, ha hívását épp nem tudom fogadni.
Kulcsrakész ár: 94.900.000,-Ft

INGATLAN ADATAI

Ingatlan jellege
családi ház
Belső terület
112 m²
Telek terület
456 m²
Tájolás
dél, kelet
Építési állapot
új
Építési mód
tégla
Szobák száma
4 szoba
Terasz
17 m²
Épület szintje
1.
Épült
2026
Ingatlan állapot
kívül: új
belül: új
Szigetelés
15 cm
Ablak szerkezete
3 rétegű thermoplan
Fűtés
hőszivattyús
Komfort
összkomfort
Parkolás
van fedetlen felszíni beálló
Közműállapot
csatorna: bekötve
gáz: utcában
villany: bekötve
víz: bekötve
Energetika
A+:
TÉRKÉP

Pest megye, Kiskunlacháza, Dunaparti üdülő

Hitelkalkulátor


KAPCSOLAT
Hajas Zsuzsanna
Hajas Zsuzsanna


+36 30 229 6926

hajaszsuzsa.leeb@gmail.com

KAPCSOLAT
Hajas Zsuzsanna

+36 30 229

hajaszsuzsa.leeb@

Az időpont kérés naptár ikonja
IDŐPONTOT KÉREK
A visszahívás kérés telefon ikonja egy azt körbe ölelő nyíllal
VISSZAHÍVÁST KÉREK
Ajánlom egy ismerősömnek ikon
AJÁNLOM EGY ISMERŐSÖMNEK
Facebook megosztás ikon
MEGOSZTÁS

KAPCSOLATFELVÉTEL

Küldés

Az üzenetet sikeresen elküldtük!
Hiba történt!
INGATLAN ADATAI

Ingatlan jellege

ingatlan

Belső terület

112 m²

Telek terület

456 m²

Tájolás

dél, kelet

Építési állapot

új

Építési mód

tégla

Szobák száma

4 szoba

Terasz

17 m²

Épület szintje

1.

Épült

2026

Ingatlan állapot

kívül: új
belül: új

Szigetelés

15 cm

Ablak szerkezete

3 rétegű thermoplan

Fűtés

hőszivattyús

Komfort

összkomfort

Parkolás

van fedetlen felszíni beálló

Közműállapot

csatorna: bekötve
gáz: utcában
villany: bekötve
víz: bekötve

Energetika

A+:

Az időpont kérés naptár ikonja
HTML
Az időpont kérés naptár ikonja
PDF

Hasonló ingatlan hírdetések

Eladó új építésű családi ház, vagy kertes ház hirdetést keres Kiskunlacháza területén?
Tekintse meg további ajánlatainkat!

eladó új építésű ingatlan, Kiskunlacháza

eladó új építésű ingatlan

Pest megye, Kiskunlacháza
Új építésű családi házak eladóak Kiskunlacháza csendes részén – modern otthon nagy telekkel! Kiskunlacháza nyugodt, madárcsicsergős környezetében kínálunk megvételre 2026-ban épült, földszintes csa...
Belső terület
99 m²
Telek terület
681 m²
Szobák
4+1

92.9 M Ft

eladó új építésű ingatlan, Kiskunlacháza

eladó új építésű ingatlan

Pest megye, Kiskunlacháza, Központ
Új építésű, önálló családi ház Kiskunlacházán – választható burkolatokkal Kiskunlacháza csendes, kis forgalmú utcájában eladó egy 90 m²-es, modern technológiával készülő, körbejárható családi ház. Az...
Belső terület
90 m²
Telek terület
366 m²
Szobák
4

87.7 M Ft

Új építésű!
Új építésű
eladó új építésű ingatlan, Kiskunlacháza

eladó új építésű ingatlan

Pest megye, Kiskunlacháza
Modern otthon, ahol a nyugalom találkozik a minőséggel – Kiskunlacháza Ha egy olyan helyet keres, ahol a város zaja már csak távoli emlék, de a főváros mégis könnyen elérhető, akkor ez az új építés...
Belső terület
47 m²
Telek terület
200 m²
Szobák
2

52.9 M Ft

eladó új építésű ingatlan, Kiskunlacháza

eladó új építésű ingatlan

Azonnal költözhető, energiatakarékos lakás várja saját kerttel.

Pest megye, Kiskunlacháza
Újszerű, azonnal költözhető társasházi lakások eladók Kiskunlacházán – Budapest vonzáskörzetében! Kiskunlacházán, Budapest gyorsan elérhető vonzáskörzetében kínálunk eladásra teljes körűen felújíto...
Belső terület
36 m²
Telek terület
1 m²
Szobák
1+1

36 M Ft

36 M Ft

azonnal költözhető
Azonnal költözhető
eladó ingatlan, Kiskunlacháza

eladó ingatlan

Pest megye, Kiskunlacháza, Központ
Eladó felújított lakás tornácos ikerházban Kiskunlacháza központjában – akár befektetésnek is! Az ingatlan 2 ingatlanból áll,melyből az egyik már gazdára talált.Az épület vegyes falazatú és minden ...
Belső terület
39 m²
Telek terület
300 m²
Szobák
1+2

38.7 M Ft

eladó ingatlan, Kiskunlacháza

eladó ingatlan

Pest megye, Kiskunlacháza
Eladó kétgenerációs családi ház Kiskunlacházán – két külön lakrésszel, kiváló elhelyezkedéssel! Kiskunlacháza csendes, rendezett kertvárosi részén, remek tömegközlekedési adottságokkal kínálunk meg...
Belső terület
121 m²
Telek terület
846 m²
Szobák
4

59.9 M Ft

eladó új építésű ingatlan, Kiskunlacháza

eladó új építésű ingatlan

Újépítésű önálló családi ház Kiskunlacházán!

Pest megye, Kiskunlacháza
Új építésű otthon Kiskunlacházán – költözz be azonnal, élvezd a kényelmet! CSOK PLUSZRA, 3% HITELRE IS ALKALMAS! Eladó Kiskunlacházán egy nettó 106 m²-es, tégla építésű, 2024-ben elkészült csalá...
Belső terület
106 m²
Telek terület
500 m²
Szobák
4

87.9 M Ft

eladó ingatlan, Kiskunlacháza

eladó ingatlan

Pest megye, Kiskunlacháza, Pereg
Az 51-es főút mentén található Kiskunlacházán került eladó sorba egy igazán sokoldalú és tágas ingatlan, amely nemcsak kényelmes, de rengeteg lehetőséget rejt magában: Az 1370 nm-es telken helyet kap...
Belső terület
85 m²
Telek terület
1370 m²
Szobák
3

64.9 M Ft

alkalmi vétel
Alkalmi vétel
Pest megye - Kiskunlacháza
Pest megye - Kiskunlacháza
Pest megye - Kiskunlacháza
Pest megye - Kiskunlacháza
Pest megye - Kiskunlacháza
Pest megye - Kiskunlacháza
Pest megye - Kiskunlacháza
Pest megye - Kiskunlacháza
Pest megye - Kiskunlacháza
Pest megye - Kiskunlacháza
Pest megye - Kiskunlacháza
Pest megye - Kiskunlacháza
Pest megye - Kiskunlacháza