Eladó új építésű ház - Nyírtura

garázzsal
Garázzsal
KAPCSOLAT
Leviczki Péter


+36 30 693 2

info@

Az időpont kérés naptár ikonja
IDŐPONTOT KÉREK
A visszahívás kérés telefon ikonja egy azt körbe ölelő nyíllal
VISSZAHÍVÁST KÉREK
Ajánlom egy ismerősömnek ikon
AJÁNLOM EGY ISMERŐSÖMNEK
Facebook megosztás ikon
MEGOSZTÁS

KAPCSOLATFELVÉTEL

Küldés

Az üzenetet sikeresen elküldtük!
Hiba történt!
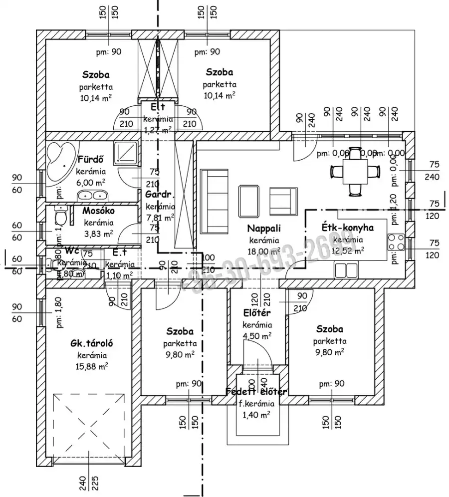
INGATLAN ADATAI

Ingatlan jellege

családi ház

Belső terület

96 m²

Telek terület

900 m²

Tájolás

dél, kelet, nyugat

Építési állapot

új

Építési mód

tégla

Szobák száma

5 szoba

Épület szintje

földszintes.

Épült

2026

Ingatlan állapot

kívül: új
belül: új

Szigetelés

15 cm

Ablak szerkezete

3 rétegű thermoplan

Fűtés

cirko

Komfort

összkomfort

Parkolás

van önálló garázs

Közműállapot

csatorna: bekötve
gáz: bekötve
villany: bekötve
víz: bekötve

Energetika

nincs megadva

Az időpont kérés naptár ikonja
HTML
Az időpont kérés naptár ikonja
PDF
Eladó új építésű ház
Ingatlan azonosító:
833_ahi

Szabolcs-Szatmár-Bereg megye, Nyírtura, Liliom utca

Irányár

58.5 M Ft
(609.38 E Ft/㎡)

Szobák

5 szoba

Terület

96 m²

Telek terület

900 m²
INGATLAN LEÍRÁSA
Nyíregyházától 10 km-re új építésű lakóparkban különálló családi ház megrendelhető.

Jellemzők:
tégla építésű, cseréptetővel

4 hálószoba + nappali
1 fürdő + 2 wc
1 állásos garázzsal

Természetesen egyedi elképzelések is megvalósíthatóak!

Egyedi lehetőségek:
Minden kedvezmény igénybe vehető ( CSOK, Otthon Start )!
A feltüntetett vételárból még 5 M Ft áfa visszaigényelhető!
Lakás beszámítás lehetséges!

Rendeteg referenciával rendelkező kivitelező!

További információkért keressen bizalommal!

INGATLAN ADATAI

Ingatlan jellege
családi ház
Belső terület
96 m²
Telek terület
900 m²
Tájolás
dél, kelet, nyugat
Építési állapot
új
Építési mód
tégla
Szobák száma
5 szoba
Épület szintje
földszintes.
Épült
2026
Ingatlan állapot
kívül: új
belül: új
Szigetelés
15 cm
Ablak szerkezete
3 rétegű thermoplan
Fűtés
cirko
Komfort
összkomfort
Parkolás
van önálló garázs
Közműállapot
csatorna: bekötve
gáz: bekötve
villany: bekötve
víz: bekötve
Energetika
nincs megadva
TÉRKÉP

Szabolcs-Szatmár-Bereg megye, Nyírtura, Liliom utca

Hitelkalkulátor


KAPCSOLAT
Leviczki Péter
Leviczki Péter


+36 30 693 2699

info@almaimhaza.hu

KAPCSOLAT
Leviczki Péter

+36 30 693 2

info@

Az időpont kérés naptár ikonja
IDŐPONTOT KÉREK
A visszahívás kérés telefon ikonja egy azt körbe ölelő nyíllal
VISSZAHÍVÁST KÉREK
Ajánlom egy ismerősömnek ikon
AJÁNLOM EGY ISMERŐSÖMNEK
Facebook megosztás ikon
MEGOSZTÁS

KAPCSOLATFELVÉTEL

Küldés

Az üzenetet sikeresen elküldtük!
Hiba történt!
INGATLAN ADATAI

Ingatlan jellege

ingatlan

Belső terület

96 m²

Telek terület

900 m²

Tájolás

dél, kelet, nyugat

Építési állapot

új

Építési mód

tégla

Szobák száma

5 szoba

Épület szintje

földszintes.

Épült

2026

Ingatlan állapot

kívül: új
belül: új

Szigetelés

15 cm

Ablak szerkezete

3 rétegű thermoplan

Fűtés

cirko

Komfort

összkomfort

Parkolás

van önálló garázs

Közműállapot

csatorna: bekötve
gáz: bekötve
villany: bekötve
víz: bekötve

Energetika

nincs megadva

Az időpont kérés naptár ikonja
HTML
Az időpont kérés naptár ikonja
PDF

Hasonló ingatlan hírdetések

Eladó új építésű családi ház, vagy kertes ház hirdetést keres Nyírtura területén?
Jelenleg nincsenek hasonló aktuális ajánlatok Nyírtura településen.
Tekintse meg további Szabolcs-Szatmár-Bereg megyei ajánlatainkat !

eladó ingatlan, Nyíregyháza

eladó ingatlan

Szabolcs-Szatmár-Bereg megye, Nyíregyháza, Debreceni u.
Nyíregyháza-Kistelekiszőlőben 1szobás+nappalis 55nm-es családi ház eladó. - Nyíregyháza Belvárosához egy rövid autó útra családi házas övezetben található. - 816 nm-es telken fekszik. - A ház...
Belső terület
55 m²
Telek terület
816 m²
Szobák
1+1

29.5 M Ft

eladó ingatlan, Nyíregyháza

eladó ingatlan

Szabolcs-Szatmár-Bereg megye, Nyíregyháza, Oros
Nyíregyháza-Oroson 4 szoba+nappalis, konyha-étkezős 158nm-es családi ház eladó! - Nyíregyháza Belvárosához egy rövid autó útra, csendes családi házas övezetben található. - 636nm-es rendezett, p...
Belső terület
158 m²
Telek terület
636 m²
Szobák
4

124.9 M Ft

eladó ingatlan, Nyíregyháza

eladó ingatlan

Szabolcs-Szatmár-Bereg megye, Nyíregyháza, Sóstógyógyfürdő
Nyíregyháza-Sóstógyógyfürdőn két generáció vagy két apartmannak alkalmas 5 szoba+nappalis, konyha-étkezős kb.140nm-es családi ház eladó! - Belvároshoz pár percnyi autó útra a fürdőtől, állatparktól...
Belső terület
140 m²
Telek terület
599 m²
Szobák
5

130 M Ft

eladó ingatlan, Nyíregyháza

eladó ingatlan

Szabolcs-Szatmár-Bereg megye, Nyíregyháza, Újkistelekiszőlő
ELADÁS FOLYAMATBAN!! Nyíregyháza-Újkistelekiszőlő frekventált és kedvelt utcájában, tégla falazatú ( B-30-as, szigetelt 15 cm. ) kb.110 nm-es, nappali+konyha+étkező + 2 hálószobás ( mindegyik kül...
Belső terület
110 m²
Telek terület
846 m²
Szobák
2

62.3 M Ft

eladás folyamatban!
Eladás folyamatban
eladó ingatlan, Nyírpazony

eladó ingatlan

Nyírpazonyban több generációs vállalkozásra alkalmas családi ház!

Szabolcs-Szatmár-Bereg megye, Nyírpazony
Nyírpazonyban eladó egy körülbelül 180 négyzetméteres több generációs és vállalkozásra alkalmas családi ház. A családi ház 3 szintes, tégla építésű. Külső szigetelés (5cm), nyílászárócsere korábban...
Belső terület
180 m²
Telek terület
1202 m²
Szobák
4

69.9 M Ft

kétgenerációs!
Kétgenerációs
eladó tanya, Kálmánháza

eladó tanya

Szabolcs-Szatmár-Bereg megye, Kálmánháza, Varga dűlő
Eladó tanyás ingatlan Kálmánházán! Kálmánházán eladó egy tanyás ingatlan, amely kiváló lehetőség azok számára, akik vidéki nyugalomra, önálló gazdálkodásra vágynak! Nyíregyházától kb.15 km-re tal...
Belső terület
60 m²
Telek terület
5576 m²
Szobák
2

11.9 M Ft

akciós ár
Akciós
eladó ingatlan, Nyíregyháza

eladó ingatlan

Szabolcs-Szatmár-Bereg megye, Nyíregyháza, Sóstófürdő
Nyíregyháza Csongor utcához közeli kedvelt részén, vegyes falazatú szigetelt ( könnyűszerkezetes ( fa )+ tégla ) 87 nm-es ( nettó ), 2 szobás+nappali, jó állapotú szintes ALACSONY REZSIJŰ családi há...
Belső terület
87 m²
Telek terület
716 m²
Szobák
2

63.9 M Ft

Alacsony rezsi!
Alacsony rezsi
eladó ingatlan, Nyíregyháza

eladó ingatlan

Szabolcs-Szatmár-Bereg megye, Nyíregyháza, (Belváros), Új utca
ELADÓ BELVÁROSI CSALÁDI HÁZ ******************** Eladásra kínálok egy HÁROMSZINTES, ÖNÁLLÓ CSALÁDI HÁZAT. Kaputelefonon és elektromos kapun keresztül történik a bejutás, mozgásérzékelő lámpák segít...
Belső terület
230 m²
Telek terület
760 m²
Szobák
5+2

142 M Ft

Szabolcs-Szatmár-Bereg megye - Nyírtura
Szabolcs-Szatmár-Bereg megye - Nyírtura