Eladó új építésű ikerház - Gödöllő

KAPCSOLAT
Kómár-Benke Nikoletta


+36 70 396

almaestatekft@

Az időpont kérés naptár ikonja
IDŐPONTOT KÉREK
A visszahívás kérés telefon ikonja egy azt körbe ölelő nyíllal
VISSZAHÍVÁST KÉREK
Ajánlom egy ismerősömnek ikon
AJÁNLOM EGY ISMERŐSÖMNEK
Facebook megosztás ikon
MEGOSZTÁS

KAPCSOLATFELVÉTEL

Küldés

Az üzenetet sikeresen elküldtük!
Hiba történt!
INGATLAN ADATAI

Ingatlan jellege

ikerház

Belső terület

95 m²

Telek terület

389 m²

Tájolás

délnyugat

Építési állapot

új

Építési mód

tégla

Szobák száma

4 szoba

Épület szintje

1.

Épült

2026

Ingatlan állapot

kívül: új
belül: új

Szigetelés

10 cm

Ablak szerkezete

3 rétegű thermoplan

Fűtés

padlófűtés

Komfort

duplakomfort

Parkolás

van fedetlen felszíni beálló

Közműállapot

csatorna: bekötve
gáz: bekötve
villany: bekötve
víz: bekötve

Energetika

A++:

Az időpont kérés naptár ikonja
HTML
Az időpont kérés naptár ikonja
PDF
Eladó új építésű ikerház
Ingatlan azonosító:
57_aes

Pest megye, Gödöllő, Fecske utca

Irányár

115 M Ft
(1.21 M Ft/㎡)

Szobák

4 szoba

Terület

95 m²

Telek terület

389 m²
INGATLAN LEÍRÁSA
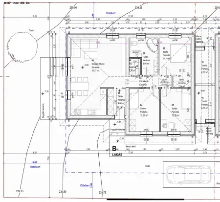
Budapesttől mindössze 20 percre Gödöllőn, Blaha városrészen eladásra kínálok egy 732 nm-es sarok telekre tervezett ikerházat.

Az ingatlanokat teljesen elszeparálják egymástól, így garantált az intim szféra.
Az első „A” egy szintesre, míg a „B” házat 2 szintesre tervezték.

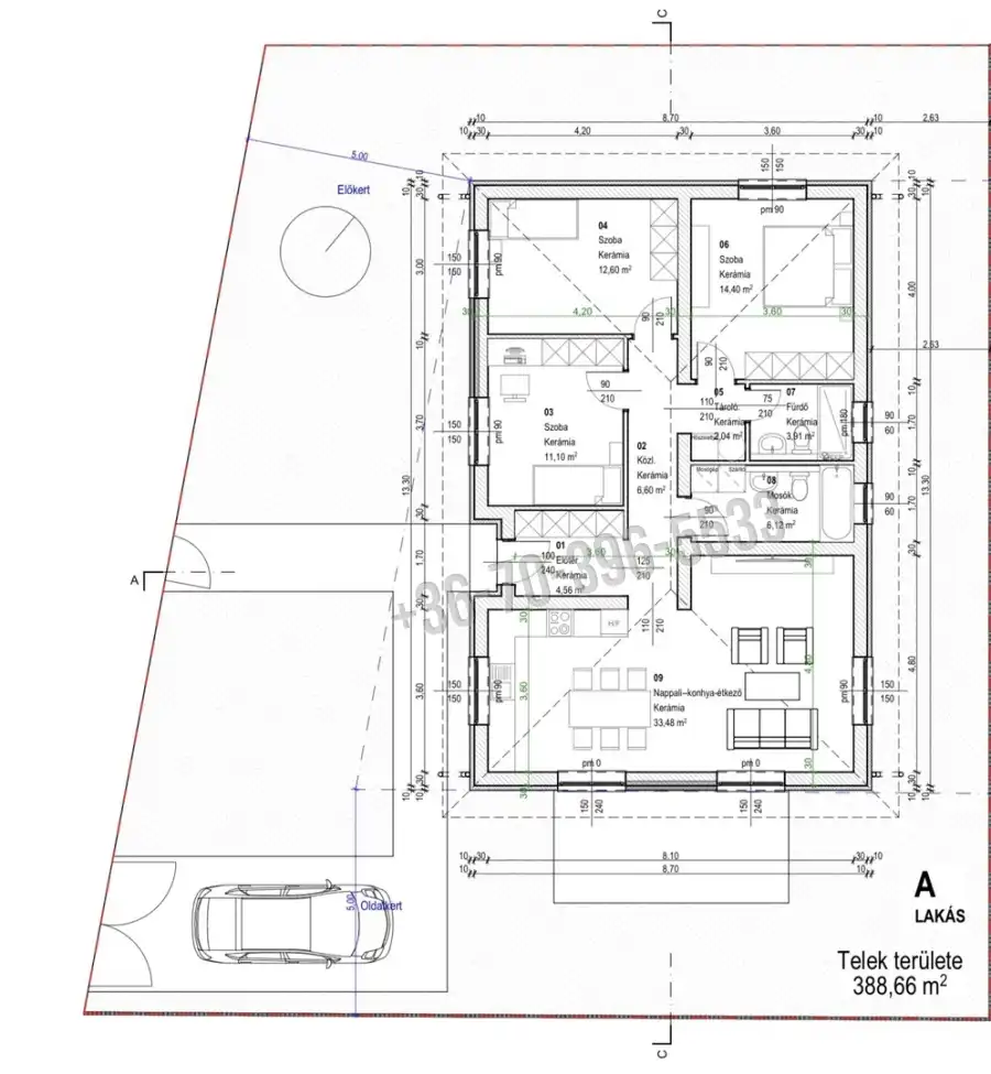
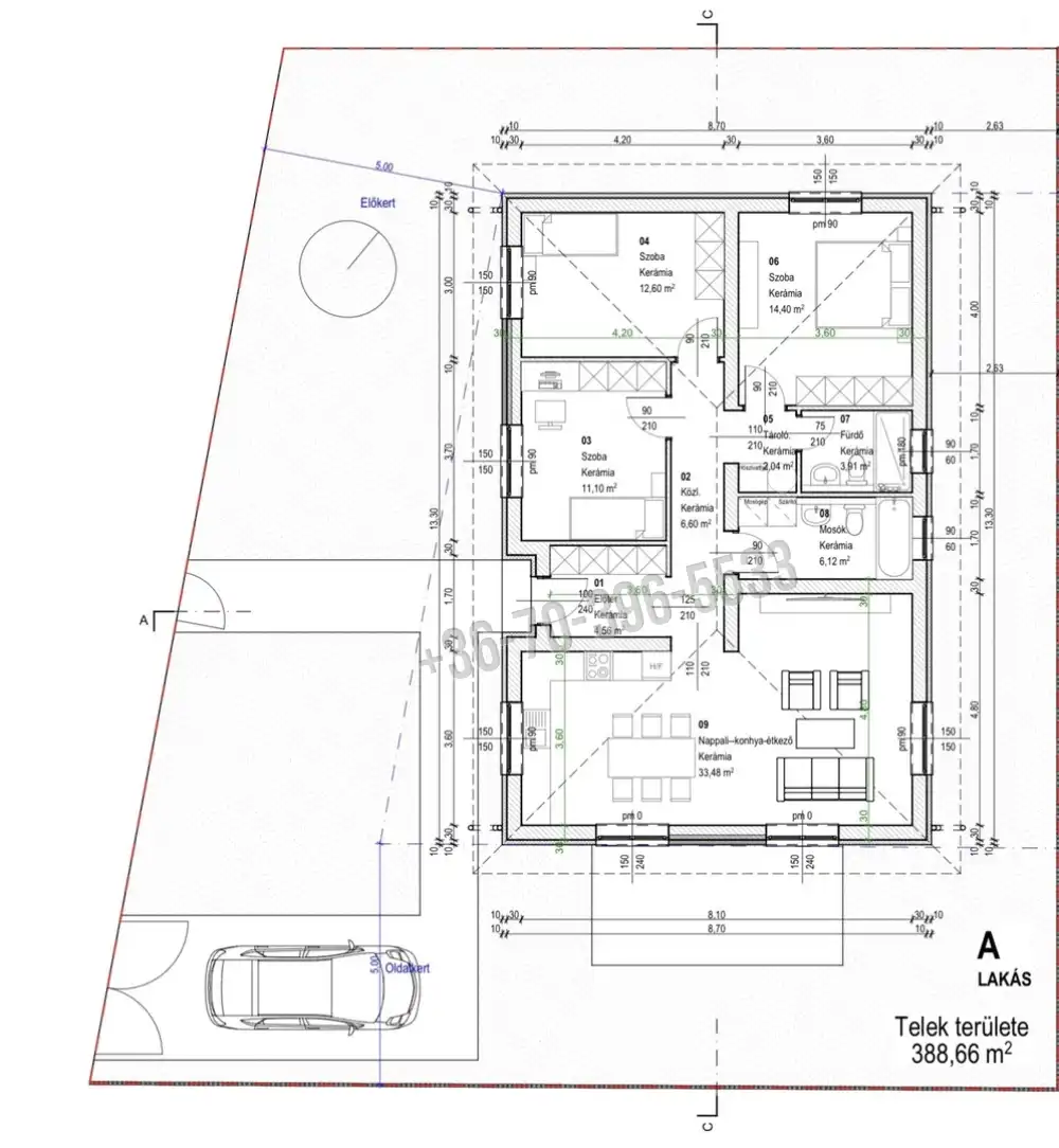
„A” ház jellemzői:
- 389 nm-es elszeparált kert
- tágas előtér (~6 nm, szekrény beépítésére van lehetőség)
- 3 szoba (~11 nm, ~13 nm, ~14 nm)
- nappali, konyha, étkező (~33 nm)
- mosókonyha (~6 nm, mellékhelyiség és fürdőszoba kialakítása)
- fürdőszoba (~4 nm)
- tároló (~2 nm)
- közlekedő (~7 nm)
- nagyméretű terasz ˙(~15 nm)

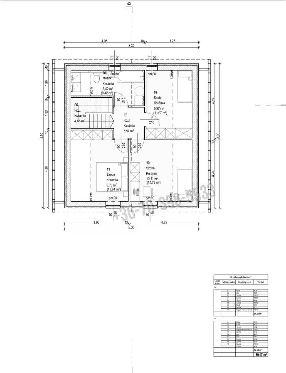
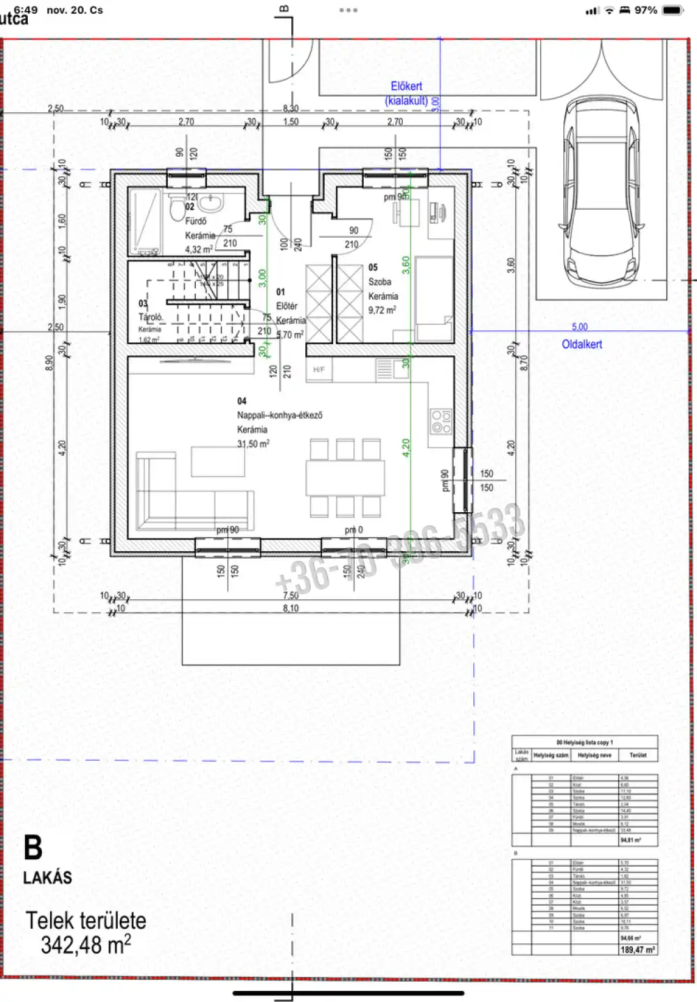
„B” ház jellemzői:
-342 nm elszeparált kert
Földszint:
- tágas előtér (~6 nm, szekrény beépítésére van lehetőség)
- 1 szoba (~9 nm)
- nappali, konyha, étkező (~32 nm)
- tároló (~2 nm)
- fürdő (~7 nm)
- terasz (~15 nm)
Emelet:
- közlekedő (~9 nm)
- 3 hálószoba (~10 nm, ~7 nm, ~10 nm)
- fürdő (~8 nm)
Mind két ingatlan minőségi anyagokból épül, energiatakarékos, amit gáz és hőszivattyús fűtéssel is lehet kérni. Részletes tájékoztatást, műszaki leírást és vállalást e-mail címre továbbítok.

Kert:
- körbe kerítve (zsaluköves kerítés)
- kis és nagykapu
- térkövezett járda és parkoló
- építési törmelékektől megtisztítva kerül átadásra

A közelben minden…
-Tesco, Lidl, Aldi, H&M éttermek és egyéb élelmiszerboltok
- Iskola, óvoda, buszmegálló, M3
Az ingatlant nagy múltú, számos referenciával rendelkező kivitelező építi, akivel gördülékeny a munka így szívből tudom ajánlani.
A házak rugalmasan megtekinthetők, hétvégén is, referenciaházak megtekintése csakis előre egyeztetett időpontokban.

Ezekkel támogatom a vásárlást:
- teljes körű hitelügyintézés
- ügyvédi háttértámogatás

Portfóliómban további igényes, új építésű ingatlanok várják. A Referens további hirdetései gombra kattintva érheti el őket.
Keressen bizalommal.

*** A kész házakról készült fotók, referenciaházakról készültek***

INGATLAN ADATAI

Ingatlan jellege
ikerház
Belső terület
95 m²
Telek terület
389 m²
Tájolás
délnyugat
Építési állapot
új
Építési mód
tégla
Szobák száma
4 szoba
Épület szintje
1.
Épült
2026
Ingatlan állapot
kívül: új
belül: új
Szigetelés
10 cm
Ablak szerkezete
3 rétegű thermoplan
Fűtés
padlófűtés
Komfort
duplakomfort
Parkolás
van fedetlen felszíni beálló
Közműállapot
csatorna: bekötve
gáz: bekötve
villany: bekötve
víz: bekötve
Energetika
A++:
TÉRKÉP

Pest megye, Gödöllő, Fecske utca

Hitelkalkulátor


KAPCSOLAT
Kómár-Benke Nikoletta
Kómár-Benke Nikoletta


+36 70 396 5533

almaestatekft@gmail.com

KAPCSOLAT
Kómár-Benke Nikoletta

+36 70 396

almaestatekft@

Az időpont kérés naptár ikonja
IDŐPONTOT KÉREK
A visszahívás kérés telefon ikonja egy azt körbe ölelő nyíllal
VISSZAHÍVÁST KÉREK
Ajánlom egy ismerősömnek ikon
AJÁNLOM EGY ISMERŐSÖMNEK
Facebook megosztás ikon
MEGOSZTÁS

KAPCSOLATFELVÉTEL

Küldés

Az üzenetet sikeresen elküldtük!
Hiba történt!
INGATLAN ADATAI

Ingatlan jellege

ingatlan

Belső terület

95 m²

Telek terület

389 m²

Tájolás

délnyugat

Építési állapot

új

Építési mód

tégla

Szobák száma

4 szoba

Épület szintje

1.

Épült

2026

Ingatlan állapot

kívül: új
belül: új

Szigetelés

10 cm

Ablak szerkezete

3 rétegű thermoplan

Fűtés

padlófűtés

Komfort

duplakomfort

Parkolás

van fedetlen felszíni beálló

Közműállapot

csatorna: bekötve
gáz: bekötve
villany: bekötve
víz: bekötve

Energetika

A++:

Az időpont kérés naptár ikonja
HTML
Az időpont kérés naptár ikonja
PDF

Hasonló ingatlan hírdetések

Eladó új építésű családi ház, vagy kertes ház hirdetést keres Gödöllő területén?
Tekintse meg további ajánlatainkat!

eladó ingatlan, Gödöllő

eladó ingatlan

Pest megye, Gödöllő, Kertváros
Pest Vármegyében, Budapesttől mindössze 20 percre Gödöllőn, Kertvárosi részen eladásra kínálok egy 735 nm-es sarok telekre tervezett ikerházat. AZ INGATLANOK TÁROLÓKON KERESZTŰL KAPCSOLÓDNAK EGYMÁSHO...
Belső terület
100 m²
Telek terület
400 m²
Szobák
4

115 M Ft

eladó ingatlan, Gödöllő

eladó ingatlan

Pest megye, Gödöllő
ÚJ ÉPÍTÉSŰ IKERHÁZ GÖDÖLLŐN – KIVÁLÓ KIVITELEZŐTŐL Eladó két különálló, de tárolón keresztül összekapcsolt lakás kiváló helyen, Gödöllőn: A lakás (első ház): •137 m², 4 szoba •Amerikai konyhás n...
Belső terület
124 m²
Telek terület
600 m²
Szobák
5

135 M Ft

eladó ingatlan, Gödöllő

eladó ingatlan

Pest megye, Gödöllő, Csanak
Új építésű, különálló ikerház Gödöllő-Csanakon, 960 m²-es telken! Eladó Gödöllő egyik legkedveltebb, kertvárosi részén, Csanakon, egy új építésű, kétlakásos ikerház, amelyben a két lakás teljesen kül...
Belső terület
115 m²
Telek terület
500 m²
Szobák
4

144.9 M Ft

eladó ingatlan, Gödöllő

eladó ingatlan

Pest megye, Gödöllő, Blaha
PANORÁMÁS, DUPLAKOMFORTOS CSALÁDI HÁZ GÖDÖLLŐN, CSENDES UTCÁBAN ELADÓ! Gödöllő egyik kedvelt részén található, a Kelemen László utcában egy panorámás kilátással rendelkező, duplakomfortos, 5 szobás...
Belső terület
145 m²
Telek terület
898 m²
Szobák
5

113 M Ft

eladó ingatlan, Gödöllő

eladó ingatlan

Pest megye, Gödöllő, Kertváros
Gödöllő csendes, de központhoz közeli utcájában eladó egy 138 m2-es családi ház. Ebbe az alaprajzba minden belefér amit csak szeretnél! A ház falai és a tető áll, de a falakat a kedved szerint ...
Belső terület
138 m²
Telek terület
330 m²
Szobák
4

105 M Ft

kiemelt
Kiemelt
eladó ingatlan, Gödöllő

eladó ingatlan

Pest megye, Gödöllő, Kertváros
Eladó Gödöllőn 125 nm-es, 4 szobás, gázkonvektor fűtéses, közepes állapotú családi ház, 665 nm-es telekkel. A házban jelenleg 3 önálló lakrész van kialakítva: egy kétszoba, konyha, spejz, fürdőszob...
Belső terület
125 m²
Telek terület
665 m²
Szobák
4

88 M Ft

azonnal költözhető
Azonnal költözhető
eladó ingatlan, Gödöllő

eladó ingatlan

Pest megye, Gödöllő, (Alvég), Malomtó utca
Megvételre kínálunk Gödöllő, Alvég csendes, természetközeli részén egy 170 m²-es tégla családi házat, amely valódi ritkaságnak számít a környéken. Az ingatlan ideális választás azoknak, akik nyugodt k...
Belső terület
170 m²
Telek terület
1226 m²
Szobák
4+1

150 M Ft

eladó ingatlan, Gödöllő

eladó ingatlan

Pest megye, Gödöllő, Kertváros
Gödöllő csendes, kertvárosi környékén kínálunk eladásra egy 2008-ban épült, masszív szerkezetű családi házat, amelyet 38-as Porotherm HS téglából építettek. A ház fa nyílászárókat kapott, redőnyökkel ...
Belső terület
131 m²
Telek terület
517 m²
Szobák
5

129.9 M Ft

Pest megye - Gödöllő
Pest megye - Gödöllő
Pest megye - Gödöllő
Pest megye - Gödöllő
Pest megye - Gödöllő
Pest megye - Gödöllő
Pest megye - Gödöllő
Pest megye - Gödöllő
Pest megye - Gödöllő
Pest megye - Gödöllő
Pest megye - Gödöllő
Pest megye - Gödöllő
Pest megye - Gödöllő
Pest megye - Gödöllő
Pest megye - Gödöllő
Pest megye - Gödöllő
Pest megye - Gödöllő
Pest megye - Gödöllő
Pest megye - Gödöllő