Eladó új építésű ikerház - Veresegyház

Új építésű!
Új építésű
KAPCSOLAT
Kiss Jutka


+36 20 334

arenaingatlanok@

Az időpont kérés naptár ikonja
IDŐPONTOT KÉREK
A visszahívás kérés telefon ikonja egy azt körbe ölelő nyíllal
VISSZAHÍVÁST KÉREK
Ajánlom egy ismerősömnek ikon
AJÁNLOM EGY ISMERŐSÖMNEK
Facebook megosztás ikon
MEGOSZTÁS

KAPCSOLATFELVÉTEL

Küldés

Az üzenetet sikeresen elküldtük!
Hiba történt!
INGATLAN ADATAI

Ingatlan jellege

ikerház

Belső terület

123 m²

Telek terület

480 m²

Tájolás

nyugat

Építési állapot

új

Építési mód

tégla

Szobák száma

4 szoba

Terasz

19 m²

Épület szintje

1.

Épült

2026

Ingatlan állapot

kívül: új
belül: új

Klíma

előkészítve

Szigetelés

12 cm

Ablak szerkezete

3 rétegű thermoplan

Fűtés

hőszivattyús

Komfort

duplakomfort

Parkolás

van önálló garázs

Közműállapot

csatorna: bekötve
gáz: nincs
villany: bekötve
víz: bekötve

Energetika

nincs megadva

Az időpont kérés naptár ikonja
HTML
Az időpont kérés naptár ikonja
PDF
Eladó új építésű ikerház
Ingatlan azonosító:
1366_ar

Pest megye, Veresegyház, Harmatok

Irányár

145.8 M Ft + Áfa
(1.19 M Ft/㎡) + Áfa

Szobák

4 szoba

Terület

123 m²

Telek terület

480 m²
INGATLAN LEÍRÁSA
Eladó ÚJ ÉPÍTÉSŰ, energiatakarékos ikerház, Veresegyház Harmatok városrészben!

BERUHÁZÓI ÁRON!

MEGKEZDETT ÉPÍTKEZÉS, őszi átadás!

Magas műszaki tartalom alacsony fenntartási költségek!

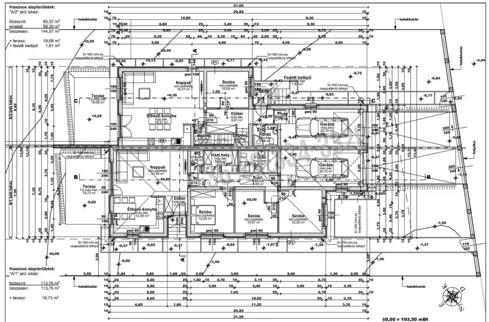
Eladó Veresegyház Harmatok városrészben, csendes kertvárosi környezetben épülő ikerház mindkét fele.
Az ikerház egyik fele földszintes, a másik pedig belső kétszintes.

Földszintes lakás 114 nm:
-amerikai konyhás nappali, 3 szoba, fürdőszoba, háztartási helyiség, vendég WC, előszoba-közlekedő, garázs + 19 nm-es terasz.
Ára: 145.8MFt

Belső kétszintes lakás 144 nm:
-földszint: amerikai konyhás nappali, szoba, zuhanyzós fürdőszoba WC-vel, kamra, előtér, garázs + 19 nm-es terasz,
-emelet: 3 szoba, fürdőszoba, háztartási helyiség, WC, közlekedő.
Ára: 158.8MFt

Az épület korszerű, a mai kor igényeinek megfelelő minőségi anyagokból és technológiával készül.

Műszaki tartalomból:
-hőszivattyús fűtési rendszer, padlófűtéssel,
-H-tarifa
-3 rétegű, hőszigetelt üvegezésű műanyag nyílászárók, redőnnyel, szúnyoghálóval felszerelve,
-napelem előkészítés,
-klíma előkészítés
-beton födém,
-választható burkolatok, szaniterek, belső ajtók.

Hívjon a részletekért, a részletes műszaki tartalomért.

Ajánlom mindazoknak, akik csendes, nyugodt környezetben keresnek egy modern, energiatakarékos otthont.

Közlekedés: buszmegálló gyalogosan néhány perc alatt elérhető.

Új építésű ingatlanjainkat BERUHÁZÓI ÁRON értékesítjük!

Irodánk ÚJ ÉPÍTÉSŰ ingatlanok specialistája, felkészült értékesítőkkel!
Jogi háttérrel (kedvező díjazással) és az egyik legjobb, bank semleges HITELKÖZVETÍTŐVEL segítjük vásárlását.
Hitelszakértőnk teljes körű ügyintézéssel áll Vevőink rendelkezésére, legyen szó OTTHON START, CSOK+, BABAVÁRÓ vagy a legjobb piaci hitelről.

Amennyiben értékesíteni kívánja ingatlanát, irodánk egyedi, kedvező ajánlattal áll rendelkezésére!


INGATLAN ADATAI

Ingatlan jellege
ikerház
Belső terület
123 m²
Telek terület
480 m²
Tájolás
nyugat
Építési állapot
új
Építési mód
tégla
Szobák száma
4 szoba
Terasz
19 m²
Épület szintje
1.
Épült
2026
Ingatlan állapot
kívül: új
belül: új
Klíma
előkészítve
Szigetelés
12 cm
Ablak szerkezete
3 rétegű thermoplan
Fűtés
hőszivattyús
Komfort
duplakomfort
Parkolás
van önálló garázs
Közműállapot
csatorna: bekötve
gáz: nincs
villany: bekötve
víz: bekötve
Energetika
nincs megadva
TÉRKÉP

Pest megye, Veresegyház, Harmatok

Hitelkalkulátor


KAPCSOLAT
Kiss Jutka
Kiss Jutka


+36 20 334 3328

arenaingatlanok@gmail.com

KAPCSOLAT
Kiss Jutka

+36 20 334

arenaingatlanok@

Az időpont kérés naptár ikonja
IDŐPONTOT KÉREK
A visszahívás kérés telefon ikonja egy azt körbe ölelő nyíllal
VISSZAHÍVÁST KÉREK
Ajánlom egy ismerősömnek ikon
AJÁNLOM EGY ISMERŐSÖMNEK
Facebook megosztás ikon
MEGOSZTÁS

KAPCSOLATFELVÉTEL

Küldés

Az üzenetet sikeresen elküldtük!
Hiba történt!
INGATLAN ADATAI

Ingatlan jellege

ingatlan

Belső terület

123 m²

Telek terület

480 m²

Tájolás

nyugat

Építési állapot

új

Építési mód

tégla

Szobák száma

4 szoba

Terasz

19 m²

Épület szintje

1.

Épült

2026

Ingatlan állapot

kívül: új
belül: új

Klíma

előkészítve

Szigetelés

12 cm

Ablak szerkezete

3 rétegű thermoplan

Fűtés

hőszivattyús

Komfort

duplakomfort

Parkolás

van önálló garázs

Közműállapot

csatorna: bekötve
gáz: nincs
villany: bekötve
víz: bekötve

Energetika

nincs megadva

Az időpont kérés naptár ikonja
HTML
Az időpont kérés naptár ikonja
PDF

Hasonló ingatlan hírdetések

Eladó új építésű családi ház, vagy kertes ház hirdetést keres Veresegyház területén?
Tekintse meg további ajánlatainkat!

eladó új építésű ingatlan, Veresegyház

eladó új építésű ingatlan

Pest megye, Veresegyház, (Öreghegy), Hajnal utca
Veresegyház egyik csendes részén, a Hajnal utcában kínálunk megvételre egy új építésű, modern kialakítású családi házat. Az ingatlan praktikus elrendezéssel, tágas közösségi terekkel és kényelmes h...
Belső terület
136 m²
Telek terület
698 m²
Szobák
4

121 M Ft

eladó ingatlan, Veresegyház

eladó ingatlan

Pest megye, Veresegyház, Mézesvölgy
Modern, energiatakarékos új építésű családi ház Veresegyház egyik legjobb részén! Veresegyház kedvelt, központhoz közeli, mégis nyugodt egyirányú utcájában épül ez a nettó 125,93 m²-es, átgondolt...
Belső terület
126 m²
Telek terület
636 m²
Szobák
4

120 M Ft

eladó új építésű ingatlan, Veresegyház

eladó új építésű ingatlan

Pest megye, Veresegyház, Revetek
Eladó ÚJ ÉPÍTÉSŰ családi ház Veresegyház Revetek városrészben! MEGKEZDETT ÉPÍTKEZÉS! Igény esetén a belső kialakítás jelenleg még módosítható, a garázsból is készülhet + egy szoba! BERUHÁZÓI Á...
Belső terület
133 m²
Telek terület
800 m²
Szobák
4

144.99 M Ft

Új építésű!
Új építésű
eladó új építésű ingatlan, Veresegyház

eladó új építésű ingatlan

Pest megye, Veresegyház, Tópart
Eladó ÚJ ÉPÍTÉSŰ kétszintes családi ház Veresegyház – Tópart! Pest megye egyik legkedveltebb városában, csendes utcában várja tulajdonosát! Ez a ház ideális választás, ha csendes, természet köze...
Belső terület
120 m²
Telek terület
452 m²
Szobák
5

145 M Ft

Új építésű!
Új építésű
eladó új építésű ingatlan, Veresegyház

eladó új építésű ingatlan

Pest megye, Veresegyház, Revetek
Eladó Veresegyházon ÚJ ÉPÍTÉSŰ, ÖNÁLLÓ, ENERGIATAKARÉKOS CSALÁDI HÁZ csendes, természet közeli környezetben! BERUHÁZÓI ÁRON! Eladó Veresegyház Revetek városrészben, ÚJ ÉPÍTÉSŰ, nettó 110 nm-es, ...
Belső terület
120 m²
Telek terület
762 m²
Szobák
5

144.9 M Ft

Új építésű!
Új építésű
eladó új építésű ingatlan, Veresegyház

eladó új építésű ingatlan

Pest megye, Veresegyház, Harmatok
Eladó igényes családi ház Veresegyház közkedvelt részén! Veresegyház egyik legkeresettebb, csendes és kertvárosias részén, a Harmatokban kínálunk megvételre egy kiváló minőségű, igényesen kivitelez...
Belső terület
115 m²
Telek terület
950 m²
Szobák
4

159.99 M Ft

Új építésű!
Új építésű
eladó új építésű ingatlan, Veresegyház

eladó új építésű ingatlan

Pest megye, Veresegyház, Táborhely
Eladó ÚJ ÉPÍTÉSŰ, AZONNAL KÖLTÖZHETŐ családi ház Veresegyház! BERUHÁZÓI ÁRON! Eladó Veresegyház Táborhely városrészben ÚJ ÉPÍTÉSŰ, nettó 96 családi ház, 640 nm-es telekkel. A világos amerika...
Belső terület
147 m²
Telek terület
640 m²
Szobák
4

158.9 M Ft

azonnal költözhető
Azonnal költözhető
eladó ingatlan, Veresegyház

eladó ingatlan

Pest megye, Veresegyház, Ligetek
Eladó kétszintes, szerkezetkész családi ház! Hozza ki a maximumot ebből a fantasztikus lehetőségből és alakítsa saját ízlésére új otthonát! Ne hagyja ki, tegye meg ajánlatát még ma! Eladó ...
Belső terület
393 m²
Telek terület
1298 m²
Szobák
4+3

139.8 M Ft

Pest megye - Veresegyház
Pest megye - Veresegyház
Pest megye - Veresegyház
Pest megye - Veresegyház
Pest megye - Veresegyház
Pest megye - Veresegyház
Pest megye - Veresegyház
Pest megye - Veresegyház
Pest megye - Veresegyház
Pest megye - Veresegyház