Eladó új építésű téglalakás - Bezenye

KAPCSOLAT
Borbély Róbert


+36 70 803

borbely.robert@

Az időpont kérés naptár ikonja
IDŐPONTOT KÉREK
A visszahívás kérés telefon ikonja egy azt körbe ölelő nyíllal
VISSZAHÍVÁST KÉREK
Ajánlom egy ismerősömnek ikon
AJÁNLOM EGY ISMERŐSÖMNEK
Facebook megosztás ikon
MEGOSZTÁS

KAPCSOLATFELVÉTEL

Küldés

Az üzenetet sikeresen elküldtük!
Hiba történt!
INGATLAN ADATAI

Ingatlan jellege

téglalakás

Belső terület

44 m²

Tájolás

észak

Építési állapot

új

Építési mód

tégla

Szobák száma

2 szoba

Emelet

1.

Épület szintje

2.

Épült

2023

Lift

van

Ingatlan állapot

kívül: új
belül: új

Fűtés

gázkazán

Komfort

összkomfort

Energetika

nincs megadva

Az időpont kérés naptár ikonja
HTML
Az időpont kérés naptár ikonja
PDF
Eladó új építésű téglalakás
Ingatlan azonosító:
4250_ko

Győr-Moson-Sopron megye, Bezenye

Irányár

39.38 M Ft
(894.89 E Ft/㎡)

Szobák

2 szoba

Emelet

1

Terület

44 m²
INGATLAN LEÍRÁSA
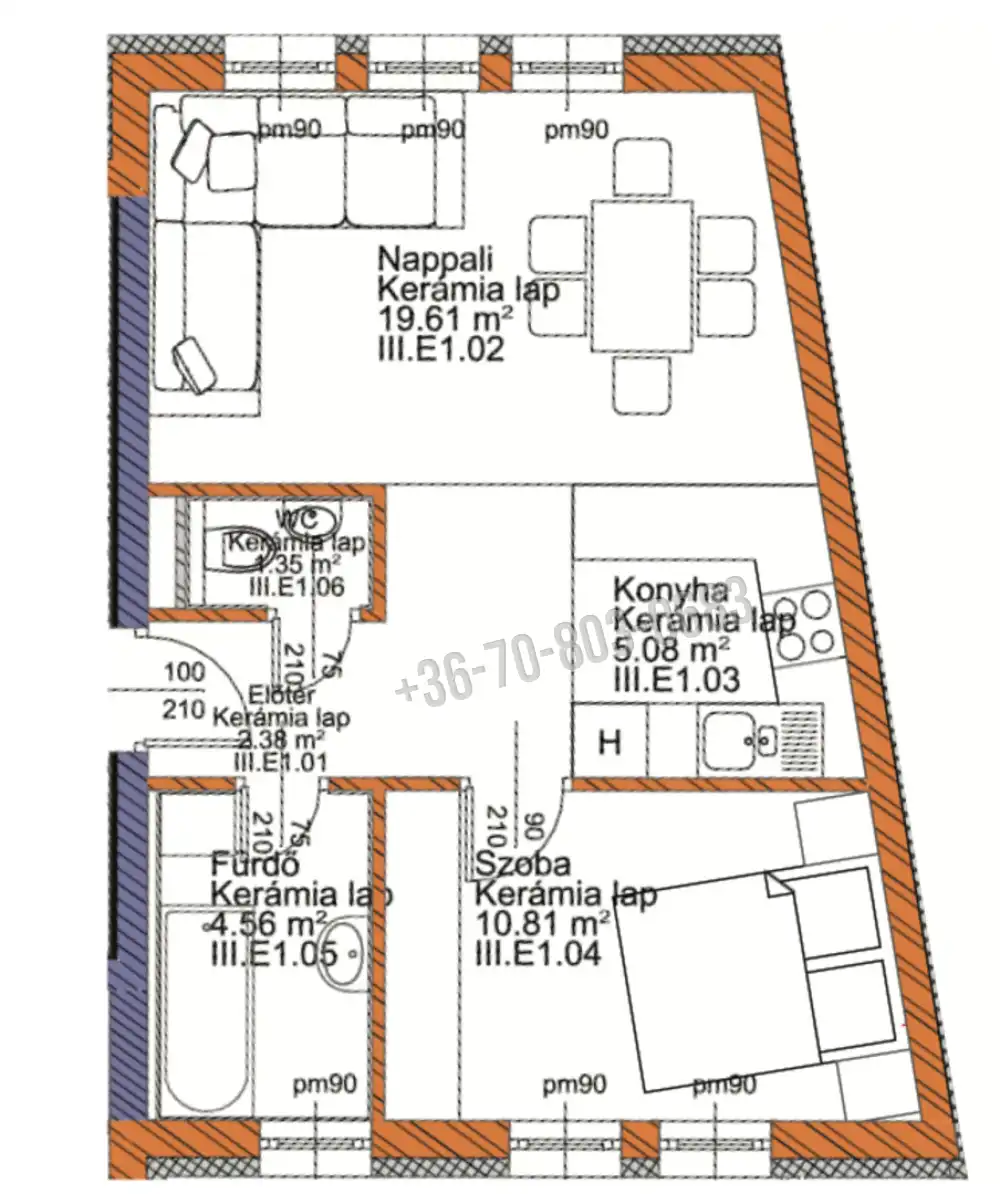
Új, azonnal költözhető lakás eladó Bezenyén – kompakt méret, korszerű kivitelezés

A Komplex Ingatlaniroda megvételre kínál Bezenye nyugodt, kisvárosias hangulatú részén egy 43,79 m² alapterületű, új építésű társasházi lakást.

Az ingatlan praktikus térszervezéssel készült, így minden négyzetméter jól kihasználható. A modern kialakításnak köszönhetően a lakás világos, élhető és könnyen berendezhető.

Helyiségkiosztás:
• amerikai konyhás nappali
• külön hálószoba
• külön fürdőszoba és wc
• előszoba

Az új építés előnye, hogy a műszaki állapot kifogástalan, így felújítási költséggel nem kell számolni. A lakás azonnal birtokba vehető, így rövid határidővel költözhető vagy akár kiadható.

Miért lehet jó választás?
• alacsony fenntartási költség a kis alapterület miatt
• korszerű, modern kivitelezés
• könnyen bérbe adható méret
• csendes, barátságos lakókörnyezet
• jó megközelíthetőség Mosonmagyaróvár és az osztrák határ irányába

Kiváló lehetőség első lakás vásárlóknak, egyedülállóknak, fiatal pároknak vagy befektetőknek, akik egy könnyen hasznosítható, keresett méretű ingatlant keresnek.

Irodánk díjmentesen segít hitel- és támogatás ügyintézésben, hogy Ön könnyedén megtalálja a legjobb pénzügyi megoldásokat.

További részletekért és megtekintési időpont egyeztetéséhez várom hívását.


INGATLAN ADATAI

Ingatlan jellege
téglalakás
Belső terület
44 m²
Tájolás
észak
Építési állapot
új
Építési mód
tégla
Szobák száma
2 szoba
Emelet
1.
Épület szintje
2.
Épült
2023
Lift
van
Ingatlan állapot
kívül: új
belül: új
Fűtés
gázkazán
Komfort
összkomfort
Energetika
nincs megadva
TÉRKÉP

Győr-Moson-Sopron megye, Bezenye

Hitelkalkulátor


KAPCSOLAT
Borbély Róbert
Borbély Róbert


+36 70 803 0683

borbely.robert@komplexingatlan.com

KAPCSOLAT
Borbély Róbert

+36 70 803

borbely.robert@

Az időpont kérés naptár ikonja
IDŐPONTOT KÉREK
A visszahívás kérés telefon ikonja egy azt körbe ölelő nyíllal
VISSZAHÍVÁST KÉREK
Ajánlom egy ismerősömnek ikon
AJÁNLOM EGY ISMERŐSÖMNEK
Facebook megosztás ikon
MEGOSZTÁS

KAPCSOLATFELVÉTEL

Küldés

Az üzenetet sikeresen elküldtük!
Hiba történt!
INGATLAN ADATAI

Ingatlan jellege

lakás

Belső terület

44 m²

Tájolás

észak

Építési állapot

új

Építési mód

tégla

Szobák száma

2 szoba

Emelet

1.

Épület szintje

2.

Épült

2023

Lift

van

Ingatlan állapot

kívül: új
belül: új

Fűtés

gázkazán

Komfort

összkomfort

Energetika

nincs megadva

Az időpont kérés naptár ikonja
HTML
Az időpont kérés naptár ikonja
PDF

Hasonló ingatlan hírdetések

Eladó új építésű tégla-, vagy panellakás hirdetést keres Bezenye területén?
Tekintse meg további ajánlatainkat!

eladó lakás, Bezenye

eladó lakás

Győr-Moson-Sopron megye, Bezenye
Új, azonnal költözhető lakás eladó Bezenyén A Komplex Ingatlaniroda megvételre kínál Bezenye nyugodt, kisvárosias hangulatú részén egy 34 m² alapterületű, új építésű társasházi lakást. Az ingatl...
Belső terület
34 m²
Szobák
2
Emelet
tetőtér

33.6 M Ft

eladó új építésű lakás, Bezenye

eladó új építésű lakás

Győr-Moson-Sopron megye, Bezenye, 278 Hrsz
Eladó új építésű, azonnal költözhető lakás Bezenyén! Bezenyén kínálunk megvételre egy 33,16 m²-es, új építésű társasházi lakást, amely ideális választás első otthonnak, befektetésnek vagy akár nyugod...
Belső terület
33 m²
Szobák
2
Emelet
2

33.6 M Ft

Győr-Moson-Sopron megye - Bezenye
Győr-Moson-Sopron megye - Bezenye
Győr-Moson-Sopron megye - Bezenye
Győr-Moson-Sopron megye - Bezenye
Győr-Moson-Sopron megye - Bezenye
Győr-Moson-Sopron megye - Bezenye
Győr-Moson-Sopron megye - Bezenye
Győr-Moson-Sopron megye - Bezenye