Eladó új építésű téglalakás - Hajdúböszörmény

Új építésű!
Új építésű
KAPCSOLAT
Müllerné Kiss Annamária


+36 70 611

eladlakingatlaniroda@

Az időpont kérés naptár ikonja
IDŐPONTOT KÉREK
A visszahívás kérés telefon ikonja egy azt körbe ölelő nyíllal
VISSZAHÍVÁST KÉREK
Ajánlom egy ismerősömnek ikon
AJÁNLOM EGY ISMERŐSÖMNEK
Facebook megosztás ikon
MEGOSZTÁS

KAPCSOLATFELVÉTEL

Küldés

Az üzenetet sikeresen elküldtük!
Hiba történt!
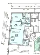
INGATLAN ADATAI

Ingatlan jellege

téglalakás

Belső terület

64 m²

Tájolás

északkelet

Építési állapot

új

Építési mód

tégla

Szobák száma

3 szoba

Kert

(közös kerthasználat)

Emelet

földszint.

Épület szintje

1.

Épült

2026

Lift

nincs

Ingatlan állapot

kívül: új
belül: új

Szigetelés

15 cm

Ablak szerkezete

3 rétegű thermoplan

Napelem

7.00 kW

közös napelem a társasházon.

Fűtés

hőszivattyús

Komfort

összkomfort

Parkolás

van fedetlen felszíni beálló

Kilátás

udvarra

Energetika

A+:

Az időpont kérés naptár ikonja
HTML
Az időpont kérés naptár ikonja
PDF
Eladó új építésű téglalakás
Belső azonosító:
MIOSZ PD 2026/651
Ingatlan azonosító:
32_elin

Hajdú-Bihar megye, Hajdúböszörmény, (Belváros), Jókai Mór utca

Irányár

69.9 M Ft
(1.09 M Ft/㎡)

Szobák

3 szoba

Emelet

földszint

Terület

64 m²
INGATLAN LEÍRÁSA
ÚJ ÉPÍTÉSŰ LAKÁS ELADÓ HAJDÚBÖSZÖRMÉNYBEN – JÓKAI U-BAN

64,61 m²-es modern földszinti nappali + 2 szobás lakás leköthető.
Várható költözés: 2026. december

Irányár: 69,9 millió Ft

Elővásárlási kedvezmény 2026. május 31-ig!
AJÁNDÉK GÉPESÍTETT KONYHABÚTOR!

Érdeklődni: 06 70 611 1318

A lakás főbb jellemzői

Korszerű, hőszigetelt épület
Beépített konyhabútor sütővel és főzőlappal
Meleg padlóburkolat a nappaliban és a szobákban
Modern villanyszerelés, minőségi szerelvények
Fürdőszoba teljes burkolattal és szaniterekkel
Hőszivattyús fűtés és hűtés napelemes rendszerrel
Energetikai besorolás: A+
Zárt udvar automata kapuval
Térburkolt parkolók
Nagy zöldfelület, közös kert

Elérhető lakás

1. lakás – Földszint
64,61 m² – 69.900.000 Ft

Kültéri parkoló (15 m²): 2.000.000 Ft / db
(a parkoló megvásárlása kötelező)

Kiegészítő lehetőségek

(nem kötelező megvásárolni)

Fedett garázs (17,3 m²) – 11.245.000 Ft / db
Pince tároló (7,61 m²) – 3.424.500 Ft / db
Pince tároló (5,29 m²) – 2.380.500 Ft / db

Kinek ideális ez a lakás?

Idősebbek számára, mivel földszinti elhelyezkedése miatt könnyen megközelíthető, lépcsőzés nélkül használható, így hosszú távon kényelmes és biztonságos otthont biztosít.

Fiatal pároknak vagy kisebb családoknak, akik egy modern, energiatakarékos otthonban szeretnék megkezdeni közös életüket.

Befektetőknek, mivel az új építésű, jó műszaki állapotú lakások iránt folyamatos a kereslet, így könnyen kiadható és stabil bérleti bevételt biztosíthat.

Az új építésnek és a korszerű gépészetnek köszönhetően alacsony fenntartási költségekkel lehet számolni, ami hosszú távon jelentős megtakarítást jelent.

Kizárólag irodánk kínálatában!

Teljes körű, ingyenes hitelügyintézés:
CSOK, OSP, Babaváró, piaci hitelek intézése.
Ügyvédi háttér.

Forduljon hozzánk bizalommal – levesszük az ügyintézés terheit az Ön válláról!

Érdeklődés: 06 70 611 1318

INGATLAN ADATAI

Ingatlan jellege
téglalakás
Belső terület
64 m²
Tájolás
északkelet
Építési állapot
új
Építési mód
tégla
Szobák száma
3 szoba
Kert
(közös kerthasználat)
Emelet
földszint.
Épület szintje
1.
Épült
2026
Lift
nincs
Ingatlan állapot
kívül: új
belül: új
Szigetelés
15 cm
Ablak szerkezete
3 rétegű thermoplan
Napelem
7.00 kW
közös napelem a társasházon.
Fűtés
hőszivattyús
Komfort
összkomfort
Parkolás
van fedetlen felszíni beálló
Kilátás
udvarra
Energetika
A+:
TÉRKÉP

Hajdú-Bihar megye, Hajdúböszörmény, Jókai Mór utca

Hitelkalkulátor


KAPCSOLAT
Müllerné Kiss Annamária
Müllerné Kiss Annamária


+36 70 611 1318

eladlakingatlaniroda@gmail.com

KAPCSOLAT
Müllerné Kiss Annamária

+36 70 611

eladlakingatlaniroda@

Az időpont kérés naptár ikonja
IDŐPONTOT KÉREK
A visszahívás kérés telefon ikonja egy azt körbe ölelő nyíllal
VISSZAHÍVÁST KÉREK
Ajánlom egy ismerősömnek ikon
AJÁNLOM EGY ISMERŐSÖMNEK
Facebook megosztás ikon
MEGOSZTÁS

KAPCSOLATFELVÉTEL

Küldés

Az üzenetet sikeresen elküldtük!
Hiba történt!
INGATLAN ADATAI

Ingatlan jellege

lakás

Belső terület

64 m²

Tájolás

északkelet

Építési állapot

új

Építési mód

tégla

Szobák száma

3 szoba

Kert

(közös kerthasználat)

Emelet

földszint.

Épület szintje

1.

Épült

2026

Lift

nincs

Ingatlan állapot

kívül: új
belül: új

Szigetelés

15 cm

Ablak szerkezete

3 rétegű thermoplan

Napelem

7.00 kW

közös napelem a társasházon.

Fűtés

hőszivattyús

Komfort

összkomfort

Parkolás

van fedetlen felszíni beálló

Kilátás

udvarra

Energetika

A+:

Az időpont kérés naptár ikonja
HTML
Az időpont kérés naptár ikonja
PDF

Hasonló ingatlan hírdetések

Eladó új építésű tégla-, vagy panellakás hirdetést keres Hajdúböszörmény területén?
Tekintse meg további ajánlatainkat!

eladó új építésű lakás, Hajdúböszörmény

eladó új építésű lakás

ÚJ ÉPÍTÉSŰ LAKÁS ELADÓ HAJDÚBÖSZÖRMÉNYBEN – JÓKAI U-BAN

Hajdú-Bihar megye, Hajdúböszörmény, (Belváros), Jókai Mór utca
ÚJ ÉPÍTÉSŰ LAKÁS ELADÓ HAJDÚBÖSZÖRMÉNYBEN – JÓKAI U-BAN 47,49 m²-es modern földszinti nappali + 1 szobás lakás leköthető. Várható költözés: 2026. december Irányár: 51,9 millió Ft Elővásárlás...
Belső terület
47 m²
Szobák
2
Emelet
földszint

51.9 M Ft

Új építésű!
Új építésű
Hajdú-Bihar megye - Hajdúböszörmény
Hajdú-Bihar megye - Hajdúböszörmény
Hajdú-Bihar megye - Hajdúböszörmény
Hajdú-Bihar megye - Hajdúböszörmény
Hajdú-Bihar megye - Hajdúböszörmény
Hajdú-Bihar megye - Hajdúböszörmény
Hajdú-Bihar megye - Hajdúböszörmény
Hajdú-Bihar megye - Hajdúböszörmény
Hajdú-Bihar megye - Hajdúböszörmény
Hajdú-Bihar megye - Hajdúböszörmény