KAPCSOLATFELVÉTEL
Ingatlan jellege
iroda
Belső terület
166 m²
Tájolás
délkelet
Építési állapot
használt
Építési mód
tégla
Bútorozottság
nem
Emelet
3.
Épület szintje
3.
Lift
van
Ingatlan állapot
kívül: jó
belül: jó
Klíma
van
Fűtés
fan-coil
Parkolás
van fedetlen felszíni beálló
Közműállapot
csatorna: bekötve
gáz: bekötve
villany: bekötve
víz: bekötve
Energetika
nincs megadva
Budapest, VI. kerület, Külső-Terézváros–Diplomatanegyed, Városligeti fasor
Bérleti díj
(3.55 E Ft/㎡) + Áfa
Szobák
Emelet
Terület
Telek terület
Az iroda Budapest VI. kerületének egyik legnívósabb utcájában helyezkedik el, a Diplomatanegyed közvetlen szomszédságában. A környéket nagykövetségek, villák, kulturális intézmények és zöld parkok – többek között a Városliget, a Szépművészeti Múzeum és a Műcsarnok – színesítik. Néhány perc sétára elérhető az Andrássy út, a Hősök tere, valamint több kiváló étterem, kávézó és intézmény is.
Az egyik legpatinásabb környéken, a Városliget és az Andrássy út közvetlen közelében, a Városligeti fasorban kínálunk bérlésre egy 166 m²-es irodát. Az ingatlan egy klasszikus, igényesen felújított irodaházban található, ahol modern lift, biztonsági szolgálat és 0–24 órás hozzáférés biztosított a bérleményhez.
3. emeleti, az épület liftes de csak a 2. emeletig megy. Klimatizált, bútorozatlan, novembertől költözhető.
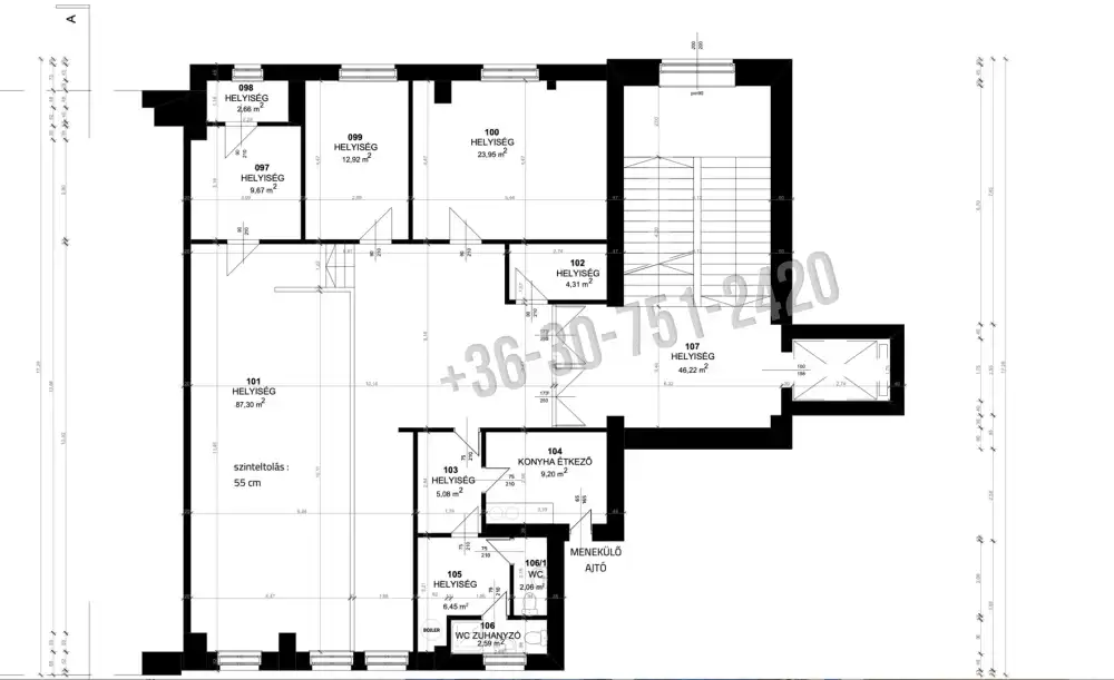
Saját mosdókkal, konyhával rendelkezik. Jelenlegi kialakítása egy nagyobb légtér és 3 különnyíló iroda. Átalakítható megegyezés szerint.
Bérleti feltételek:
Bérleti díj: 590.000 Ft/hó
Üzemeltetési költség: 100.000 Ft+ÁFA/hó
Parkolás: udvari parkolóhely bérelhető 20.000 Ft + ÁFA/hó/gk
Tömegközlekedési lehetőségek:
M1 földalatti (Bajza utca, Hősök tere) – kb. 5 perc séta
Trolibusz: 72, 75, 79 – közvetlen közelben
Busz: 105, 20E – néhány perc gyalog
Kerékpáros közlekedésre alkalmas, Bubi-állomás is elérhető
belül: jó
gáz: bekötve
villany: bekötve
víz: bekötve
Budapest, VI. kerület, Külső-Terézváros–Diplomatanegyed, Városligeti fasor

+36 30 751 2420
majordora97@gmail.com
KAPCSOLATFELVÉTEL
Ingatlan jellege
iroda
Belső terület
166 m²
Tájolás
délkelet
Építési állapot
használt
Építési mód
tégla
Bútorozottság
nem
Emelet
3.
Épület szintje
3.
Lift
van
Ingatlan állapot
kívül: jó
belül: jó
Klíma
van
Fűtés
fan-coil
Parkolás
van fedetlen felszíni beálló
Közműállapot
csatorna: bekötve
gáz: bekötve
villany: bekötve
víz: bekötve
Energetika
nincs megadva