Eladó ház - Szentlőrinc

KAPCSOLAT
Boros Linda


+36 70 521

blhomeandfinance@

Az időpont kérés naptár ikonja
IDŐPONTOT KÉREK
A visszahívás kérés telefon ikonja egy azt körbe ölelő nyíllal
VISSZAHÍVÁST KÉREK
Ajánlom egy ismerősömnek ikon
AJÁNLOM EGY ISMERŐSÖMNEK
Facebook megosztás ikon
MEGOSZTÁS

KAPCSOLATFELVÉTEL

Küldés

Az üzenetet sikeresen elküldtük!
Hiba történt!
INGATLAN ADATAI

Ingatlan jellege

családi ház

Belső terület

80 m²

Telek terület

862 m²

Tájolás

dél

Építési állapot

használt

Építési mód

vegyes

Szobák száma

3 szoba

Épület szintje

1.

Épült

1960

Ingatlan állapot

kívül: átlagos
belül: átlagos

Klíma

van

Ablak szerkezete

2 rétegű thermoplan

Fűtés

gázkonvektor

Komfort

összkomfort

Parkolás

van, nem meghatározott

Közműállapot

csatorna: bekötve
gáz: bekötve
villany: bekötve
víz: bekötve

Energetika

nincs megadva

Az időpont kérés naptár ikonja
HTML
Az időpont kérés naptár ikonja
PDF
Eladó ház
Ingatlan azonosító:
42_tw

Baranya megye, Szentlőrinc

Irányár

34.99 M Ft
(437.38 E Ft/㎡)

Szobák

3 szoba

Terület

80 m²

Telek terület

862 m²
INGATLAN LEÍRÁSA
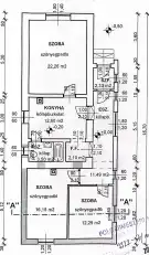
Eladásra kínálok Szentlőrinc családi házas övezetében, egy családi házat.

Az ingatlan 2005-ben bővítésre került. A korábbi házhoz hozzáépítésre került 2 db szoba.
Az eredeti ház vegyes falazatú, mely a 60-as években épült.

Jelenlegi állapotában, így egy 3 szobás családi ház keresi új tulajdonosát.
Fűtése jelenleg gázkonvektorral, fa tüzelésű kályhával, és hűtő-fűtő klímával megoldott. Nyílászárói, 2 rétegű fa nyílászárók, melyek 2005-ben kerültek beépítésre.

A telek mérete 862 m2, melyen 80 m2 a ház. Tetőtér beépítés lehetséges.

A ház végében található egy téglából épült épület, mely jelenleg garázsként funkcionál.

Amennyiben hitelre lenne szüksége a megvásárláshoz, állok rendelkezésre, mint független pénzügyi szakember.

További infó, megtekintés esetén várom hívását a megadott telefonszámon.

INGATLAN ADATAI

Ingatlan jellege
családi ház
Belső terület
80 m²
Telek terület
862 m²
Tájolás
dél
Építési állapot
használt
Építési mód
vegyes
Szobák száma
3 szoba
Épület szintje
1.
Épült
1960
Ingatlan állapot
kívül: átlagos
belül: átlagos
Klíma
van
Ablak szerkezete
2 rétegű thermoplan
Fűtés
gázkonvektor
Komfort
összkomfort
Parkolás
van, nem meghatározott
Közműállapot
csatorna: bekötve
gáz: bekötve
villany: bekötve
víz: bekötve
Energetika
nincs megadva
TÉRKÉP

Baranya megye, Szentlőrinc

Hitelkalkulátor


KAPCSOLAT
Boros Linda
Boros Linda


+36 70 521 0521

blhomeandfinance@gmail.com

KAPCSOLAT
Boros Linda

+36 70 521

blhomeandfinance@

Az időpont kérés naptár ikonja
IDŐPONTOT KÉREK
A visszahívás kérés telefon ikonja egy azt körbe ölelő nyíllal
VISSZAHÍVÁST KÉREK
Ajánlom egy ismerősömnek ikon
AJÁNLOM EGY ISMERŐSÖMNEK
Facebook megosztás ikon
MEGOSZTÁS

KAPCSOLATFELVÉTEL

Küldés

Az üzenetet sikeresen elküldtük!
Hiba történt!
INGATLAN ADATAI

Ingatlan jellege

ingatlan

Belső terület

80 m²

Telek terület

862 m²

Tájolás

dél

Építési állapot

használt

Építési mód

vegyes

Szobák száma

3 szoba

Épület szintje

1.

Épült

1960

Ingatlan állapot

kívül: átlagos
belül: átlagos

Klíma

van

Ablak szerkezete

2 rétegű thermoplan

Fűtés

gázkonvektor

Komfort

összkomfort

Parkolás

van, nem meghatározott

Közműállapot

csatorna: bekötve
gáz: bekötve
villany: bekötve
víz: bekötve

Energetika

nincs megadva

Az időpont kérés naptár ikonja
HTML
Az időpont kérés naptár ikonja
PDF

Hasonló ingatlan hírdetések

Eladó családi ház, vagy kertes ház hirdetést keres Szentlőrinc területén?
Jelenleg nincsenek hasonló aktuális ajánlatok Szentlőrinc településen.
Tekintse meg további Baranya megyei ajánlatainkat !

eladó ingatlan, Lánycsók

eladó ingatlan

Baranya megye, Lánycsók
Lánycsókon, nyugodt környezetben családi ház eladó, sok lehetőséggel! Lánycsók csendes, falusias hangulatú település, ahol a mindennapi élethez szükséges minden fontos intézmény – iskola, óvoda, bolt...
Belső terület
140 m²
Telek terület
4022 m²
Szobák
4

29 M Ft

eladó ingatlan, Mohács

eladó ingatlan

Baranya megye, Mohács
Mohácson, a belváros közelében – csendes, nyugodt környezetben – felújított sorházi ingatlan eladó! Ha egy olyan otthont keres, ahová szinte azonnal költözhet, miközben élvezheti a város közelségét é...
Belső terület
107 m²
Telek terület
493 m²
Szobák
4

60 M Ft

eladó ingatlan, Mohács

eladó ingatlan

Baranya megye, Mohács
Mohácson nagy potenciálú családi ház eladó – alakítsa saját otthonává! Mohács egyik kedvelt, nyugodt részén kínálunk megvételre egy kiváló adottságokkal rendelkező családi házat, amely remek lehető...
Belső terület
100 m²
Telek terület
999 m²
Szobák
4

32 M Ft

eladó ingatlan, Babarc

eladó ingatlan

Baranya megye, Babarc
Babarcon felújítandó családi ház eladó – jó adottságokkal, kedvező elhelyezkedéssel Babarcon, Baranya vármegye keleti részén kínálunk megvételre egy felújítandó lakóházat. A település mindössze 12 ...
Belső terület
77 m²
Telek terület
1221 m²
Szobák
3

9.7 M Ft

eladó ingatlan, Újpetre

eladó ingatlan

Azonnal költöhető felújított családiház Újpetre központjában eladó.

Baranya megye, Újpetre, Kossuth Lajos utca
Otthonra vágyóknak különleges lehetőség! Újpetrén, a Kossuth Lajos utcában, felújított, azonnal költözhető családi ház eladó. A tágas, 130 m²-es lakótér három külön nyíló szobával, amerikai konyhás na...
Belső terület
130 m²
Telek terület
2027 m²
Szobák
3+1

39 M Ft

azonnal költözhető
Azonnal költözhető
eladó ingatlan, Geresdlak

eladó ingatlan

Baranya megye, Geresdlak
Két külön lakrész, jó állapot – ideális többgenerációs otthon Geresdlakon Geresdlak csendes, rendezett településén eladó egy jó állapotú, két külön lakóépületből álló ingatlan, amely kiváló választ...
Belső terület
133 m²
Telek terület
681 m²
Szobák
5

48 M Ft

eladó ingatlan, Lánycsók

eladó ingatlan

Baranya megye, Lánycsók
Felújítandó családi ház Lánycsókon – stabil alap, nagy telek, alakítható terek Lánycsók csendes, rendezett részén eladó egy jó szerkezeti állapotú családi ház, amely kiváló lehetőség azoknak, akik sa...
Belső terület
85 m²
Telek terület
3208 m²
Szobák
3

9 M Ft

eladó ingatlan, Lánycsók

eladó ingatlan

Baranya megye, Lánycsók
Csendes faluszéli ház Lánycsókon – stabil alap, szabadon alakítható jövő Lánycsókon, a falu szélén, nyugodt, természet közeli környezetben eladó egy felújítás alatt álló lakóház, amely kiváló alapot ...
Belső terület
87 m²
Telek terület
3113 m²
Szobák
3

9.2 M Ft

Baranya megye - Szentlőrinc
Baranya megye - Szentlőrinc
Baranya megye - Szentlőrinc
Baranya megye - Szentlőrinc
Baranya megye - Szentlőrinc
Baranya megye - Szentlőrinc
Baranya megye - Szentlőrinc
Baranya megye - Szentlőrinc
Baranya megye - Szentlőrinc
Baranya megye - Szentlőrinc
Baranya megye - Szentlőrinc
Baranya megye - Szentlőrinc
Baranya megye - Szentlőrinc
Baranya megye - Szentlőrinc
Baranya megye - Szentlőrinc
Baranya megye - Szentlőrinc