Eladó ház - Velence

kiemelt
Kiemelt
KAPCSOLAT
Lukovics Vilmos


+36 20 941

lukovics.vilmos.leeb@

Az időpont kérés naptár ikonja
IDŐPONTOT KÉREK
A visszahívás kérés telefon ikonja egy azt körbe ölelő nyíllal
VISSZAHÍVÁST KÉREK
Ajánlom egy ismerősömnek ikon
AJÁNLOM EGY ISMERŐSÖMNEK
Facebook megosztás ikon
MEGOSZTÁS

KAPCSOLATFELVÉTEL

Küldés

Az üzenetet sikeresen elküldtük!
Hiba történt!
INGATLAN ADATAI

Ingatlan jellege

családi ház

Belső terület

214 m²

Telek terület

610 m²

Tájolás

dél, nyugat

Építési állapot

használt

Építési mód

tégla

Szobák száma

4+3 félszoba

Erkély

3 m²

Épület szintje

1.

Épült

kb. 1980

Ingatlan állapot

kívül: felújítandó
belül: részben felújított

Klíma

van

Ablak szerkezete

2 rétegű thermoplan

Fűtés

cirko

Komfort

összkomfort

Parkolás

van fedetlen felszíni beálló

Közműállapot

csatorna: bekötve
gáz: bekötve
villany: bekötve
víz: bekötve

Energetika

E:

Az időpont kérés naptár ikonja
HTML
Az időpont kérés naptár ikonja
PDF
Eladó ház
Ingatlan azonosító:
8218_leebesfia

Fejér megye, Velence

Irányár

99.9 M Ft
(466.82 E Ft/㎡)

Szobák

4+3 félszoba

Terület

214 m²

Telek terület

610 m²
INGATLAN LEÍRÁSA
Velence-Ófalu szívében három külön lakásos családi ház — felújítva, tágas terekkel, gondozott kerttel!
Ha olyan otthont keresel, amely egyszerre családi fészek, befektetés, akár három generáció együttélésére is alkalmas, akkor ezt most érdemes megnézned.

A ház belül az utóbbi években részben megújult:
új, lakásonként leválasztott központi fűtés, korszerű vizesblokkok, thermo nyílászárók, modern burkolatok, klíma — minden adott egy kényelmes, gondtalan induláshoz.
A külső még szépítésre vár, így saját ízlésedre alakíthatod.

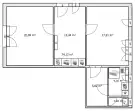
Három külön bejáratú lakás — óriási szabadság az élet minden helyzetére

1. földszinti lakás – 37 m²
nappali / háló
konyha–étkező
fürdő+WC
Tökéletes első otthon, iroda, vagy hosszú távú kiadás.

2. földszinti lakás – 62 m²
2 külön hálószoba
konyha + étkező
fürdő + wc
Ideális egy kisebb családnak vagy vendéglakásnak.
Felújítandó.

Tetőtéri lakás – 85 m² (külön bejárat!)
2 szoba + 2 félszoba
amerikai konyhás étkező + nappali
fürdő
WC
nagy, hangulatos erkély
Ez a szint valódi „mini otthon” a ház tetején – világos, tágas, és nagyon élhető.

A telek és környezet
610 m², gondozott kert – pont akkora, hogy örömmel tartsd rendben, ne teher legyen

3 autós udvari beálló

Csendes, ófalusi hangulatú környék, mégis mindenhez közel

A Velencei-tó pár perc – strand, séta, vízparti élmények minden napra

Kinek ajánlom?
Családoknak, akik együtt, de elkülönítve szeretnének élni.

Befektetőknek, akik 3 külön lakást szeretnének kiadni.

Többgenerációs megoldást keresőknek.

Vállalkozóknak (iroda + két lakás kiadásra).

Egy ritka adottságú, háromlakásos, belül részben felújított házról van szó Velence egyik legnyugodtabb részén. A külső csinosítása már a következő tulajdonos öröme lesz — így az otthonod olyan lesz, mint amilyennek megálmodod.

Amennyiben felkeltettem érdeklődésedet és meg kívánod tekintetni az ingatlant, kérlek jelezd felém az alábbi elérhetőségeken.

INGATLAN ADATAI

Ingatlan jellege
családi ház
Belső terület
214 m²
Telek terület
610 m²
Tájolás
dél, nyugat
Építési állapot
használt
Építési mód
tégla
Szobák száma
4+3 félszoba
Erkély
3 m²
Épület szintje
1.
Épült
kb. 1980
Ingatlan állapot
kívül: felújítandó
belül: részben felújított
Klíma
van
Ablak szerkezete
2 rétegű thermoplan
Fűtés
cirko
Komfort
összkomfort
Parkolás
van fedetlen felszíni beálló
Közműállapot
csatorna: bekötve
gáz: bekötve
villany: bekötve
víz: bekötve
Energetika
E:
TÉRKÉP

Fejér megye, Velence

Hitelkalkulátor


KAPCSOLAT
Lukovics Vilmos
Lukovics Vilmos


+36 20 941 4374

lukovics.vilmos.leeb@gmail.com

KAPCSOLAT
Lukovics Vilmos

+36 20 941

lukovics.vilmos.leeb@

Az időpont kérés naptár ikonja
IDŐPONTOT KÉREK
A visszahívás kérés telefon ikonja egy azt körbe ölelő nyíllal
VISSZAHÍVÁST KÉREK
Ajánlom egy ismerősömnek ikon
AJÁNLOM EGY ISMERŐSÖMNEK
Facebook megosztás ikon
MEGOSZTÁS

KAPCSOLATFELVÉTEL

Küldés

Az üzenetet sikeresen elküldtük!
Hiba történt!
INGATLAN ADATAI

Ingatlan jellege

ingatlan

Belső terület

214 m²

Telek terület

610 m²

Tájolás

dél, nyugat

Építési állapot

használt

Építési mód

tégla

Szobák száma

4+3 félszoba

Erkély

3 m²

Épület szintje

1.

Épült

kb. 1980

Ingatlan állapot

kívül: felújítandó
belül: részben felújított

Klíma

van

Ablak szerkezete

2 rétegű thermoplan

Fűtés

cirko

Komfort

összkomfort

Parkolás

van fedetlen felszíni beálló

Közműállapot

csatorna: bekötve
gáz: bekötve
villany: bekötve
víz: bekötve

Energetika

E:

Az időpont kérés naptár ikonja
HTML
Az időpont kérés naptár ikonja
PDF

Hasonló ingatlan hírdetések

Eladó családi ház, vagy kertes ház hirdetést keres Velence területén?
Tekintse meg további ajánlatainkat!

eladó új építésű ingatlan, Velence

eladó új építésű ingatlan

Fejér megye, Velence, Újtelep
Prémium, A+++ energetikai besorolású okosház Velencén Velencén, csendes, kertvárosi környezetben kínáljuk megvételre ezt az új építésű, kétszintes prémium ikerház "A" lakását, amelyet már a tervezé...
Belső terület
154 m²
Telek terület
487 m²
Szobák
5

176.4 M Ft

Új építésű!
Új építésű
eladó ingatlan, Velence

eladó ingatlan

Fejér megye, Velence, (Újtelep), Bekötő út
Azonnal Költözhető-TEHERMENTES-Teljeskörűen felújíott - Kis Ékszer doboz. CSAK NÁLUNK! Távol a város zajától, mégis mindenhez közel – ahol a csend és a nyugalom az otthona lehet. Ha szereti a term...
Belső terület
65 m²
Telek terület
980 m²
Szobák
2

79.9 M Ft

azonnal költözhető
Azonnal költözhető
eladó ingatlan, Velence

eladó ingatlan

Fejér megye, Velence
Áresés!!! Befektetők, nagy családosok, folyamatosan nyaralni vágyók figyelem! Eladó a Velencei-tó partján egy panorámás, 170 m2-es felújítandó, 2 szint + tetőteres családi ház +549 m2 parkosított te...
Belső terület
170 m²
Telek terület
549 m²
Szobák
3+4

108.9 M Ft

árcsökkenés!
Árcsökkenés
eladó ingatlan, Velence

eladó ingatlan

Fejér megye, Velence, (Velencefürdő), XIII. utca
Eladó igazi gyöngyszem Velencén! Velencén, a számozott utcák egyikében eladó egy 546 m²-es telken található, 68 m2-es, teljesen felújított családi ház. Ez a kis méretű luxus otthon tökéletes válas...
Belső terület
68 m²
Telek terület
546 m²
Szobák
2

79.9 M Ft

eladó új építésű ingatlan, Velence

eladó új építésű ingatlan

Fejér megye, Velence, (Bencehegy), Adria stny 24
Minden lakás elkelt a 3-as ütemből is, Már elindult a 4-es ütem, hamarosan foglalózható! -Rendkívüli ÁRON! Ne halassza el! BENCEHEGYI panorámával! Nyaraljon egész évben a Velencei-tónál! Kösse le ...
Belső terület
91 m²
Telek terület
120 m²
Szobák
5

89.9 M Ft

Új építésű!
Új építésű
eladó ingatlan, Velence

eladó ingatlan

Fejér megye, Velence, (Ófalu), III. utca
Eladó nyaraló Velencén – 270 nm saját telekkel, közel a tóhoz és a vasútállomáshoz. Családi házas övezetben, 2 szoba, 40 nm, kocsibeálló. i.á.: 27,9 M Ft tel.: 06(20)622-6832 Velenc...
Belső terület
40 m²
Telek terület
270 m²
Szobák
2

27.9 M Ft

Felújításra szorul!
Felújításra szorul
Fejér megye - Velence
Fejér megye - Velence
Fejér megye - Velence
Fejér megye - Velence
Fejér megye - Velence
Fejér megye - Velence
Fejér megye - Velence
Fejér megye - Velence
Fejér megye - Velence
Fejér megye - Velence
Fejér megye - Velence
Fejér megye - Velence
Fejér megye - Velence
Fejér megye - Velence
Fejér megye - Velence
Fejér megye - Velence
Fejér megye - Velence
Fejér megye - Velence