Eladó házrész - Budapest, XVII. kerület

alkalmi vétel
Alkalmi vétel
KAPCSOLAT
Veress Andrea Edit


+36 70 202

veress.andrea@

Az időpont kérés naptár ikonja
IDŐPONTOT KÉREK
A visszahívás kérés telefon ikonja egy azt körbe ölelő nyíllal
VISSZAHÍVÁST KÉREK
Ajánlom egy ismerősömnek ikon
AJÁNLOM EGY ISMERŐSÖMNEK
Facebook megosztás ikon
MEGOSZTÁS

KAPCSOLATFELVÉTEL

Küldés

Az üzenetet sikeresen elküldtük!
Hiba történt!
INGATLAN ADATAI

Ingatlan jellege

házrész

Belső terület

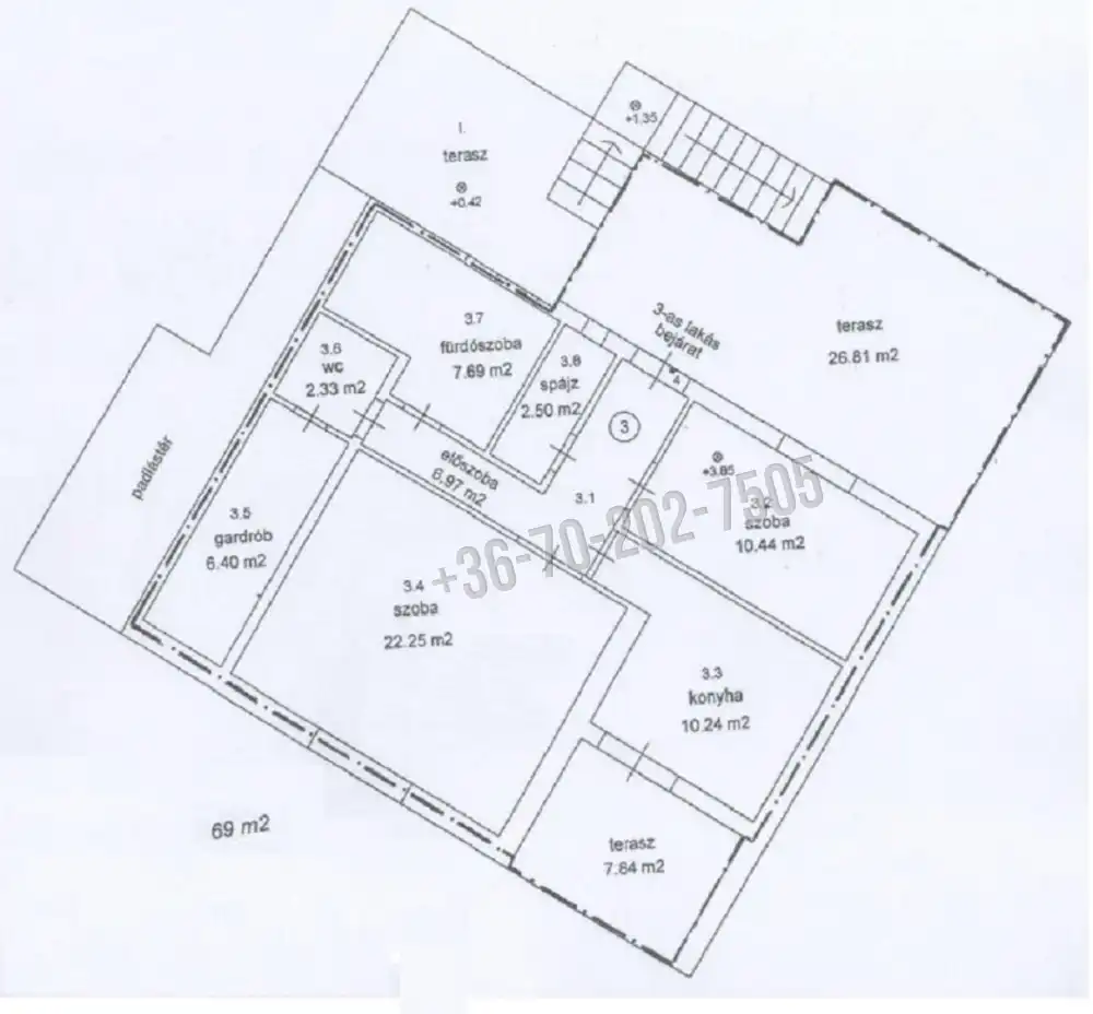
69 m²

Telek terület

200 m²

Tájolás

délkelet, délnyugat

Építési állapot

használt

Építési mód

tégla

Szobák száma

2+1 félszoba

Szobák elhelyezkedése

külön nyílik min. 2 szoba

Erkély

8 m²

Terasz

27 m²

Épület szintje

2.

Épült

1986

Ingatlan állapot

kívül: átlagos
belül: jó

Ablak szerkezete

hagyományos

Fűtés

cirko

Komfort

összkomfort

Parkolás

van önálló garázs

Közműállapot

csatorna: bekötve
gáz: bekötve
villany: bekötve
víz: bekötve

Energetika

G:

Az időpont kérés naptár ikonja
HTML
Az időpont kérés naptár ikonja
PDF
Eladó házrész
Ingatlan azonosító:
290_blm

Budapest, XVII. kerület, Rákoshegy

Irányár

75 M Ft
(1.09 M Ft/㎡)

Szobák

2+1 félszoba

Terület

69 m²

Telek terület

200 m²
INGATLAN LEÍRÁSA
PANEL ÁRBAN TETŐTERASZOS lakás - KERTES HÁZBAN, madárcsicsergésben élhet!

Sikerült megtekintenie a hirdetésen belül, az ingatlanról készült videót?

CSENDES HELYEN,
TÉGLA ÉPÍTÉSŰ LAKÁS + fedett 8 nm-es erkély + hatalmas, 27 nm-es napsütötte terasz + nagy tároló + SAJÁT KERT! + garázs - mindezt ENNYIÉRT?
XVII. kerületben eladó egy vasútállomástól és buszmegállótól is gyalogtávolságra lévő, mégis csendes, aszfaltozott utcában elhelyezkedő napsütötte családi ház 1986-ban beépített lakása.
Ez egy 2 lakásos, ügyvéd által szerkesztett használati megosztással rendelkező családi ház. (A földszint egy teljesen külön bejáratú lakás.) A tetőtéri önálló bejáratú, saját, kombi (meleg vizet + fűtést is nyújtó) cirkófűtéssel is rendelkező lakás a hátsó kertre néző, hatalmas 26, 81 nm-es terasszal és 7,84 nm erkéllyel rendelkezik!
A garázs nem a kert területéből vesz el, azon felül értendő a kert mérete, a 200 nm.
A 69 nm kizárólag a lakás területe.
A feltüntetett nm területben nem látható, az nem tartalmazza az erkély, a terasz, a saját, kizárólagos használatú 200 nm-es intim kert területét, pedig azok jelentősen megnövelik az életteret, tavasztól őszig, és ezt mind a lakással együtt megkapja a Vevő!
A garázs kötelezően megvásárolandó, és annak értéke 5 M Ft.

Egyben, mindez 80 M Ft! Ennyiért egy panel lakást lehet venni, DE abban az árban nincs hatalmas pince és saját tulajdonú, 200 nm-es összefüggő, intim, az utcafronttól távoli, gyümölcsfás kert sincs, és garázs sincs!

A fotók, az alaprajzok és a hirdetésszöveg szellemi termék, melynek másolása, megjelentetése jogkövetkezménnyel jár.

INGATLAN ADATAI

Ingatlan jellege
házrész
Belső terület
69 m²
Telek terület
200 m²
Tájolás
délkelet, délnyugat
Építési állapot
használt
Építési mód
tégla
Szobák száma
2+1 félszoba
Szobák elhelyezkedése
külön nyílik min. 2 szoba
Erkély
8 m²
Terasz
27 m²
Épület szintje
2.
Épült
1986
Ingatlan állapot
kívül: átlagos
belül: jó
Ablak szerkezete
hagyományos
Fűtés
cirko
Komfort
összkomfort
Parkolás
van önálló garázs
Közműállapot
csatorna: bekötve
gáz: bekötve
villany: bekötve
víz: bekötve
Energetika
G:
TÉRKÉP

Budapest, XVII. kerület, Rákoshegy

Hitelkalkulátor


KAPCSOLAT
Veress Andrea Edit
Veress Andrea Edit


+36 70 202 7505

veress.andrea@gmail.com

KAPCSOLAT
Veress Andrea Edit

+36 70 202

veress.andrea@

Az időpont kérés naptár ikonja
IDŐPONTOT KÉREK
A visszahívás kérés telefon ikonja egy azt körbe ölelő nyíllal
VISSZAHÍVÁST KÉREK
Ajánlom egy ismerősömnek ikon
AJÁNLOM EGY ISMERŐSÖMNEK
Facebook megosztás ikon
MEGOSZTÁS

KAPCSOLATFELVÉTEL

Küldés

Az üzenetet sikeresen elküldtük!
Hiba történt!
INGATLAN ADATAI

Ingatlan jellege

ingatlan

Belső terület

69 m²

Telek terület

200 m²

Tájolás

délkelet, délnyugat

Építési állapot

használt

Építési mód

tégla

Szobák száma

2+1 félszoba

Szobák elhelyezkedése

külön nyílik min. 2 szoba

Erkély

8 m²

Terasz

27 m²

Épület szintje

2.

Épült

1986

Ingatlan állapot

kívül: átlagos
belül: jó

Ablak szerkezete

hagyományos

Fűtés

cirko

Komfort

összkomfort

Parkolás

van önálló garázs

Közműállapot

csatorna: bekötve
gáz: bekötve
villany: bekötve
víz: bekötve

Energetika

G:

Az időpont kérés naptár ikonja
HTML
Az időpont kérés naptár ikonja
PDF

Hasonló ingatlan hírdetések

Eladó családi ház, vagy kertes ház hirdetést keres Budapesten a XVII. kerületben?
Tekintse meg további ajánlatainkat!

eladó ingatlan, Budapest, XVII. kerület

eladó ingatlan

Budapest, XVII. kerület, Rákoskeresztúr
BP. 17. KER. RÁKOSKERESZTÚR CSENDES, NÍVÓS RÉSZÉN VILLAÉPÜLET JELLEGŰ, EXTRAIGÉNYES CSALÁDI INGATLAN PRÉMUM KATEGÓRIA, RENGETEG EXTRA 1080 M2 GONDOZOTT, PARKOSÍTOTT KERT TELJES BÚTORZATTAL Elad...
Belső terület
360 m²
Telek terület
1080 m²
Szobák
5

420 M Ft

Panorámás!
Panorámás
eladó ingatlan, Budapest, XVII. kerület

eladó ingatlan

Budapest, XVII. kerület, Rákoscsaba-Újtelep
Kiváló lehetőség! Tágas családi ház a XVII. kerületben, Rákoscsaba-Újtelepen! Eladó a XVII. kerületben, Rákoscsaba-Újtelepen, amerikai konyhás nappali + 4 szobás, dupla komfortos, jó állapotú csalá...
Belső terület
143 m²
Telek terület
548 m²
Szobák
5

139.9 M Ft

eladó ingatlan, Budapest, XVII. kerület

eladó ingatlan

Eladó a XVII. kerületben, Rákoscsaba kedvelt kertvárosi részén egy 785 m2-es telken egy 191 m2-es családi ház, plusz egy 43 m2-es üzlethelyiség!

Budapest, XVII. kerület, Rákoscsaba
Eladó a XVII. kerületben, Rákoscsaba kedvelt kertvárosi részén egy 785 m2-es telken egy 191 m2-es családi ház, plusz egy 43 m2-es üzlethelyiség! Rendkívül jó helyen, csendes, zöldfákkal teli utcába...
Belső terület
234 m²
Telek terület
785 m²
Szobák
4

139.9 M Ft

eladó ingatlan, Budapest, XVII. kerület

eladó ingatlan

Budapest, XVII. kerület,
RÁKOSCSABA -ÚJTELEPEN A NAPLÁS TÓ KÖZELÉBEN KÍNÁLOK MEGVÉTELRE EGY ENERGIATAKARÉKOS, 210 NM LAKÓTERÜLETŰ CSALÁDI HÁZAT 721 NM-ES SAJÁT KERTTEL, ÉPÍTETT MEDENCÉVEL, ÓRIÁSI ALAPTERÜLETŰ TÖBB AUTÓNAK HEL...
Telek terület
721 m²
Szobák
5+1

134.9 M Ft

Energiatakarékos!
Energiatakarékos
eladó ingatlan, Budapest, XVII. kerület

eladó ingatlan

Budapest, XVII. kerület, Régiakadémia-telep
Eladó Budapest 17. kerületében, Rákosligeten, csendes, csekély forgalmú mellékutcában egy kétszintes, 220 nm lakóterülettel rendelkező, több generáció számára is megfelelő családi ház. A nagypolgári ...
Belső terület
220 m²
Telek terület
361 m²
Szobák
6

94.9 M Ft

Budapest, XVII. kerület - Rákoshegy
Budapest, XVII. kerület - Rákoshegy
Budapest, XVII. kerület - Rákoshegy
Budapest, XVII. kerület - Rákoshegy
Budapest, XVII. kerület - Rákoshegy
Budapest, XVII. kerület - Rákoshegy
Budapest, XVII. kerület - Rákoshegy
Budapest, XVII. kerület - Rákoshegy
Budapest, XVII. kerület - Rákoshegy
Budapest, XVII. kerület - Rákoshegy
Budapest, XVII. kerület - Rákoshegy
Budapest, XVII. kerület - Rákoshegy
Budapest, XVII. kerület - Rákoshegy
Budapest, XVII. kerület - Rákoshegy
Budapest, XVII. kerület - Rákoshegy
Budapest, XVII. kerület - Rákoshegy
Budapest, XVII. kerület - Rákoshegy
Budapest, XVII. kerület - Rákoshegy
Budapest, XVII. kerület - Rákoshegy
Budapest, XVII. kerület - Rákoshegy
Budapest, XVII. kerület - Rákoshegy