Eladó új építésű ikerház - Áporka

Új építésű!
Új építésű
KAPCSOLAT
Ördög Klára


+36 70 944

cld.homeinvest@

Az időpont kérés naptár ikonja
IDŐPONTOT KÉREK
A visszahívás kérés telefon ikonja egy azt körbe ölelő nyíllal
VISSZAHÍVÁST KÉREK
Ajánlom egy ismerősömnek ikon
AJÁNLOM EGY ISMERŐSÖMNEK
Facebook megosztás ikon
MEGOSZTÁS

KAPCSOLATFELVÉTEL

Küldés

Az üzenetet sikeresen elküldtük!
Hiba történt!
INGATLAN ADATAI

Ingatlan jellege

ikerház

Belső terület

95 m²

Telek terület

440 m²

Tájolás

délkelet, délnyugat

Építési állapot

új

Építési mód

ytong

Szobák száma

5 szoba

Épület szintje

1.

Épült

2026

Ingatlan állapot

kívül: új
belül: új

Klíma

előkészítve

Szigetelés

12 cm

Ablak szerkezete

3 rétegű thermoplan

Fűtés

hőszivattyús

Komfort

összkomfort

Közműállapot

csatorna: bekötve
gáz: nincs
villany: bekötve
víz: bekötve

Energetika

A++:

Az időpont kérés naptár ikonja
HTML
Az időpont kérés naptár ikonja
PDF
Eladó új építésű ikerház
Ingatlan azonosító:
83_cld

Pest megye, Áporka, Béke

Irányár

79.5 M Ft
(836.84 E Ft/㎡)

Szobák

5 szoba

Terület

95 m²

Telek terület

440 m²
INGATLAN LEÍRÁSA
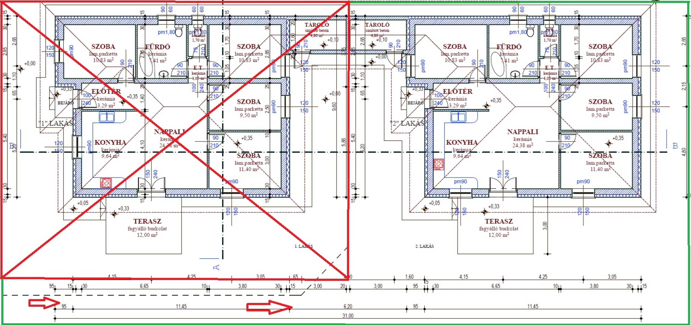
Új építésű családi otthon eladó Áporkán – ahol a nyugalom és a családi élet harmóniája találkozik

Áporka egy csendes, barátságos település Pest vármegyében, Budapesttől rövid autóútra. A természet közelsége, a nyugodt falusi hangulat és az összetartó közösség ideális választás mindazoknak, akik családjuk számára békés, biztonságos környezetben szeretnének otthont teremteni.

Ebben a nyugodt környezetben kínálunk eladásra egy új építésű, tárolókapcsolatos családi házat, amely tökéletes választás lehet családok számára.

A nettó 95 m²-es otthon praktikus elrendezésű:
tágas nappali + 4 hálószoba, fürdőszoba és külön vendég WC gondoskodik arról, hogy minden családtagnak jusson saját tér.

A nappaliból nyíló 12 m²-es terasz ideális helyszíne lehet a közös reggeliknek, a nyári vacsoráknak vagy a hétvégi családi beszélgetéseknek.

Az ingatlan korszerű műszaki tartalommal épül:

30 cm-es Ytong falazat, 12 cm hőszigeteléssel

20 cm cellulóz födémszigetelés

3 rétegű, kiváló hőszigetelésű nyílászárók

hőszivattyús fűtés padlófűtéssel

klíma és napelem kiállás

A 440 m²-es, lekerített telek elegendő helyet ad egy hangulatos kertnek, a gyerekek játékának vagy akár egy családi grillező sarok kialakításának.

Ez az otthon nem csupán egy ház – hanem egy hely, ahol a családi történetek elkezdődnek.

Ha szeretné megtalálni családja új otthonát, várom szeretettel hívását!



INGATLAN ADATAI

Ingatlan jellege
ikerház
Belső terület
95 m²
Telek terület
440 m²
Tájolás
délkelet, délnyugat
Építési állapot
új
Építési mód
ytong
Szobák száma
5 szoba
Épület szintje
1.
Épült
2026
Ingatlan állapot
kívül: új
belül: új
Klíma
előkészítve
Szigetelés
12 cm
Ablak szerkezete
3 rétegű thermoplan
Fűtés
hőszivattyús
Komfort
összkomfort
Közműállapot
csatorna: bekötve
gáz: nincs
villany: bekötve
víz: bekötve
Energetika
A++:
TÉRKÉP

Pest megye, Áporka, Béke

Hitelkalkulátor


KAPCSOLAT
Ördög Klára
Ördög Klára


+36 70 944 7998

cld.homeinvest@gmail.com

KAPCSOLAT
Ördög Klára

+36 70 944

cld.homeinvest@

Az időpont kérés naptár ikonja
IDŐPONTOT KÉREK
A visszahívás kérés telefon ikonja egy azt körbe ölelő nyíllal
VISSZAHÍVÁST KÉREK
Ajánlom egy ismerősömnek ikon
AJÁNLOM EGY ISMERŐSÖMNEK
Facebook megosztás ikon
MEGOSZTÁS

KAPCSOLATFELVÉTEL

Küldés

Az üzenetet sikeresen elküldtük!
Hiba történt!
INGATLAN ADATAI

Ingatlan jellege

ingatlan

Belső terület

95 m²

Telek terület

440 m²

Tájolás

délkelet, délnyugat

Építési állapot

új

Építési mód

ytong

Szobák száma

5 szoba

Épület szintje

1.

Épült

2026

Ingatlan állapot

kívül: új
belül: új

Klíma

előkészítve

Szigetelés

12 cm

Ablak szerkezete

3 rétegű thermoplan

Fűtés

hőszivattyús

Komfort

összkomfort

Közműállapot

csatorna: bekötve
gáz: nincs
villany: bekötve
víz: bekötve

Energetika

A++:

Az időpont kérés naptár ikonja
HTML
Az időpont kérés naptár ikonja
PDF

Hasonló ingatlan hírdetések

Eladó új építésű családi ház, vagy kertes ház hirdetést keres Áporka területén?
Tekintse meg további ajánlatainkat!

eladó új építésű ingatlan, Áporka

eladó új építésű ingatlan

Pest megye, Áporka
Áporkán, csendes, kulturált környezetben kínálok eladásra praktikus kialakítású, korszerű műszaki tartalommal rendelkező, új építésű, nettó: 88 nm, 4 szobás, utcafronti ikerház felet, 302 nm saját, el...
Belső terület
88 m²
Telek terület
302 m²
Szobák
4

64.99 M Ft

eladó ingatlan, Áporka

eladó ingatlan

Prémium minőségű családi ház a Duna-partján!!

Pest megye, Áporka, Dunaparti üdülőterület
Prémium minőségű családi ház a Duna-partján!! Áporka a fővárostól mindössze rövid autóútra található, az 51-es útról könnyedén és gyorsan megközelíthető, így ideális választás mindazoknak, akik Bud...
Belső terület
93 m²
Telek terület
350 m²
Szobák
2

134.9 M Ft

eladó ingatlan, Áporka

eladó ingatlan

Közvetlen Duna parti, minden igényt kielégítő álomház Budapest vonzás körzetében.

Pest megye, Áporka, Dunaparti üdülőterület
Közvetlen Duna-parttal rendelkező exkluzív luxusrezidencia Áporkán — 30 km-re Budapesttől Áporka egyik legszebb részén, teljes intimitást élvezve kínáljuk eladásra ezt a különleges adottságokkal re...
Belső terület
222 m²
Telek terület
1086 m²
Szobák
3

395 M Ft

vízparti!
Vízparti
Pest megye - Áporka
Pest megye - Áporka
Pest megye - Áporka
Pest megye - Áporka
Pest megye - Áporka