KAPCSOLATFELVÉTEL
Ingatlan jellege
családi ház
Belső terület
114 m²
Telek terület
614 m²
Tájolás
dél
Építési állapot
új
Építési mód
tégla
Szobák száma
5 szoba
Terasz
12 m²
Épület szintje
földszintes.
Épült
2025
Ingatlan állapot
kívül: kitűnő
belül: kitűnő
Klíma
előkészítve
Szigetelés
15 cm
Ablak szerkezete
3 rétegű thermoplan
Fűtés
cirko
Komfort
duplakomfort
Parkolás
van fedett felszíni beálló
Közműállapot
csatorna: bekötve
gáz: bekötve
villany: bekötve
víz: bekötve
Energetika
A+ 2024:
Pest megye, Veresegyház, Ligetek
Irányár
(1.31 M Ft/㎡)
Szobák
Emelet
Terület
Telek terület
Veresegyház kedvelt részén, családi házas övezetben, 614 nm-es telekre épülő, egyszintes, nettó 114 nm-es, nappali + 4 szobás, dupla komfortos, 15 nm-es fedett beállóval, 12 nm-es terasszal, 3 nm-es külső tárolóval rendelkező családi ház eladó!
A KIVITELEZÉS A MAI KOR IGÉNYEINEK MINDEN TEKINTETBEN MEGFELELŐ, MINŐSÉGI ALAPANYAGOK FELHASZNÁLÁSÁVAL TÖRTÉNIK!
Beruházó referencia munkái a közelben megtekinthetők!
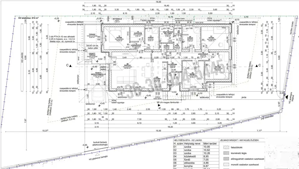
Helyiséglista:
előszoba 4,86 nm
WC 1,15 nm
közlekedő 8,95 nm
közlekedő 1,85 nm
közlekedő 1,75 nm
fürdő 7,05 nm
fürdő 5,40 nm
házt.h. 3,78 nm
kamra 1,44 nm
konyha-étkező-nappali 32,41 nm
gardrób 3,52 nm
szoba 10,95 nm
szoba 10,62 nm
szoba 10,26 nm
szoba 10,05 nm
fedett terasz 5,40 nm
terasz 6,93 nm
fedett beálló 15,41 nm
fedett tároló 3,20 nm
Műszaki leírás röviden:
*teherhordó fal PTH 30-as síkra csiszolt okos tégla
*belső válaszfalak 10 cm PTH
*15 cm-es homlokzati szigetelés
*nyílászárók műanyag 3 rétegű, 5 légkamrás kivitel
*betongerendás födém
*tetőcserép
*fűtése kondenzációs gázkazán, padlófűtéssel (hőszivattyú megbeszélés kérdése)
*3 db klíma előkészítés
*utcafronti kerítés zsalukő erősített fa lécezés
*szaniterek, beltéri ajtók a műszaki leírásban meghatározott értékben választhatók.
Hiteligény esetén az ügyintézést szakszerűen, gyorsan és DÍJMENTESEN biztosítjuk ügyfeleink számára, így a legkedvezőbb megoldást tudjuk kínálni az ingatlan megvásárlásához.
Várom megtisztelő érdeklődését, akár hétvégén is!
belül: kitűnő
gáz: bekötve
villany: bekötve
víz: bekötve
Pest megye, Veresegyház, Ligetek
Hitelkalkulátor

+36 30 924 5445,
turzobettina@gmail.com
KAPCSOLATFELVÉTEL
Ingatlan jellege
ingatlan
Belső terület
114 m²
Telek terület
614 m²
Tájolás
dél
Építési állapot
új
Építési mód
tégla
Szobák száma
5 szoba
Terasz
12 m²
Épület szintje
földszintes.
Épült
2025
Ingatlan állapot
kívül: kitűnő
belül: kitűnő
Klíma
előkészítve
Szigetelés
15 cm
Ablak szerkezete
3 rétegű thermoplan
Fűtés
cirko
Komfort
duplakomfort
Parkolás
van fedett felszíni beálló
Közműállapot
csatorna: bekötve
gáz: bekötve
villany: bekötve
víz: bekötve
Energetika
A+ 2024: