KAPCSOLATFELVÉTEL
Ingatlan jellege
családi ház
Belső terület
132 m²
Telek terület
576 m²
Tájolás
délkelet
Építési állapot
új
Építési mód
tégla
Szobák száma
5 szoba
Terasz
18 m²
Épület szintje
földszintes.
Épült
2025
Ingatlan állapot
kívül: új
belül: új
Klíma
előkészítve
Szigetelés
15 cm
Fűtés
gázkazán
Komfort
duplakomfort
Parkolás
van, nem meghatározott
Közműállapot
csatorna: bekötve
gáz: bekötve
villany: bekötve
víz: bekötve
Energetika
nincs megadva
Pest megye, Veresegyház, Tópart
Irányár
(1.06 M Ft/㎡)
Szobák
Terület
Telek terület
BERUHÁZÓI ÁRON!
A BELSŐ TEREK KIALAKÍTÁSA – válaszfalak elhelyezése – JELENLEG MÉG MÓDOSÍTHATÓ!
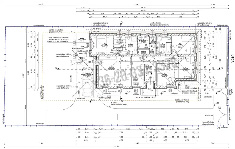
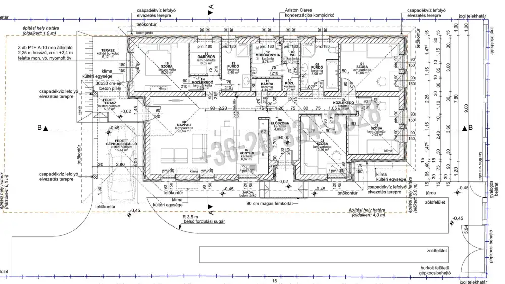
Eladó Veresegyház Tópart városrészen, csendes, természet közeli utcában, nettó 121 nm-es, amerikai konyhás nappali + 3 szobás, nagy teraszos, földszintes családi ház.
Ez az ingatlan tökéletes választás azoknak, akik nyugodt, biztonságos környezetben keresnek otthont.
A környék infrastruktúrája kiváló, a tömegközlekedéstől kezdve a helyi szolgáltatásokig minden adott a mindennapi kényelmes élethez.
Az ingatlan minden igényt kielégítő elosztással rendelkezik:
- 36 nm-es amerikai konyhás nappali terasz (17.5 nm) kapcsolattal, 4 hálószoba, gardrób, 2 fürdőszoba, háztartási helyiség, kamra, vendég WC, előszoba-közlekedő.
Műszaki tartalomból:
- főfalak 30 cm-es Porotherm NF téglából, 15 cm-es dryvit hőszigeteléssel,
- beton cserépfedés,
- 3 rétegű, hőszigetelt üvegezésű műanyag nyílászárók, igény esetén redőnnyel, szúnyoghálóval felszerelve,
- fűtés gázkazánnal, padlófűtéssel, értékegyeztetéssel hőszivattyús fűtéssel,
- 3 db klíma kiállás előkészítése,
- választható hideg- és meleg burkolatok, szaniterek.
A vételár tartalmazza a kis- és nagykaput, az utcafronti kerítést.
Közlekedés: vasútállomás és buszmegálló gyalogosan 7 perc alatt elérhető.
Akár fiatal párok, akár családok számára hosszú távon is ideális választás ez az ingatlan.
Hívjon a részletekért, a részletes műszaki tartalomért.
Irodánk ÚJ ÉPÍTÉSŰ ingatlanok specialistája, felkészült értékesítőkkel!
Jogi háttérrel (kedvező díjazással) és az egyik legjobb, bank semleges HITELKÖZVETÍTŐVEL segítjük vásárlását.
Hitelszakértőnk teljes körű ügyintézéssel áll Vevőink rendelkezésére, legyen szó OTTHON START, CSOK+, BABAVÁRÓ vagy a legjobb piaci hitelről.
Új építésű ingatlanjainkat BERUHÁZÓI ÁRON értékesítjük!
Amennyiben értékesíteni kívánja ingatlanát, irodánk egyedi, kedvező ajánlattal áll rendelkezésére!
Veresegyház Budapesttől mindössze 25 km-re helyezkedik el. A városban minden megtalálható, ami a mindennapi élethez szükséges: számos bevásárlási és kikapcsolódási lehetőség (üzletházak, piac, színház, horgásztó, medvepark, termálfürdő stb.), orvosi rendelő, gyógyszertár, általános iskolák, zeneiskola, gimnázium, óvodák, bölcsődék.
Autóval és tömegközlekedéssel (vonat, távolsági autóbusz) is jól megközelíthető. A városban helyi buszjárat is közlekedik.
belül: új
gáz: bekötve
villany: bekötve
víz: bekötve
Pest megye, Veresegyház, Tópart
Hitelkalkulátor

+36 20 334 3328,
arenaingatlanok@gmail.com
KAPCSOLATFELVÉTEL
Ingatlan jellege
ingatlan
Belső terület
132 m²
Telek terület
576 m²
Tájolás
délkelet
Építési állapot
új
Építési mód
tégla
Szobák száma
5 szoba
Terasz
18 m²
Épület szintje
földszintes.
Épült
2025
Ingatlan állapot
kívül: új
belül: új
Klíma
előkészítve
Szigetelés
15 cm
Fűtés
gázkazán
Komfort
duplakomfort
Parkolás
van, nem meghatározott
Közműállapot
csatorna: bekötve
gáz: bekötve
villany: bekötve
víz: bekötve
Energetika
nincs megadva