Eladó téglalakás - Vác

KAPCSOLAT
Hanzli-Virág Edina


+36 70 634

viragedinards@

Az időpont kérés naptár ikonja
IDŐPONTOT KÉREK
A visszahívás kérés telefon ikonja egy azt körbe ölelő nyíllal
VISSZAHÍVÁST KÉREK
Ajánlom egy ismerősömnek ikon
AJÁNLOM EGY ISMERŐSÖMNEK
Facebook megosztás ikon
MEGOSZTÁS

KAPCSOLATFELVÉTEL

Küldés

Az üzenetet sikeresen elküldtük!
Hiba történt!
INGATLAN ADATAI

Ingatlan jellege

téglalakás

Belső terület

49 m²

Tájolás

északnyugat

Építési állapot

használt

Építési mód

tégla

Szobák száma

2 szoba

Emelet

5.

Épület szintje

5.

Épült

kb. 1960

Lift

van

Ingatlan állapot

kívül: jó
belül: jó

Fűtés

központi fűtés

Komfort

összkomfort

Kilátás

utcára, függőfolyosóra

Energetika

nincs megadva

Az időpont kérés naptár ikonja
HTML
Az időpont kérés naptár ikonja
PDF
Eladó téglalakás
Ingatlan azonosító:
12747_rds

Pest megye, Vác

Irányár

55 M Ft
(1.12 M Ft/㎡)

Szobák

2 szoba

Emelet

5

Terület

49 m²
INGATLAN LEÍRÁSA
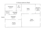
Eladóvá vált Vácon egy 49 m2-es, 2 szobás, tégla építésű lakás!

A lakás csendes, tiszta, liftes házban található, a legfelső szinten, felső szomszéd hiányában teljes nyugalma lehet az itt lakóknak. A lakásból csodás panoráma nyílik az egész városra!

A lakásban található nappali, hálószoba, konyha, kamra, közlekedő, kádas fürdőszoba és a WC külön helyiségben. Az erkély beépítésre került.

A tégla építésű ház az 1960-as években épült. A nyílászárók hőszigetelt műanyagra lettek cserélve, a nappaliban és a konyhában az ablakokon redőny és szúnyogháló is található. A padló parkettával és járólappal van burkolva. A nappaliban található egy plafonig érő beépített szekrény. A lakáshoz saját pincehelyiség tartozik.

A házban van víz, villany, csatorna, gáz, a fűtés közös központi kazánnal történik, a lakásban vas radiátorok adják a meleget, a fűtésszámla egyedi mérés alapján kerül fizetésre. A lakás alacsony rezsivel rendelkezik! Van lépcsőház takarítás és lift készenléti díj!

Az ingatlan per és tehermentes, előre egyeztetett időpontban megtekinthető.
Ha felkeltettem az érdeklődését várom megtisztelő hívását!

Az alábbi szolgáltatásokkal állunk rendelkezésre ingatlan vásárlásban/eladásban:

- Ingatlanközvetítés
- Értékbecslés
- Hirdetés: profi ingatlanfotóssal, drón-felvétellel, alaprajzzal
- Szerződéskötés szervezése
- Földhivatali ügyintézés
- Ügyvéd biztosítása
- Energetikai tanúsítvány elkészítése

Hitelügyintézés: Független hiteltanácsadó díjmentesen segít kiválasztani a legmegfelelőbb hitelkonstrukciót



INGATLAN ADATAI

Ingatlan jellege
téglalakás
Belső terület
49 m²
Tájolás
északnyugat
Építési állapot
használt
Építési mód
tégla
Szobák száma
2 szoba
Emelet
5.
Épület szintje
5.
Épült
kb. 1960
Lift
van
Ingatlan állapot
kívül: jó
belül: jó
Fűtés
központi fűtés
Komfort
összkomfort
Kilátás
utcára, függőfolyosóra
Energetika
nincs megadva
TÉRKÉP

Pest megye, Vác

Hitelkalkulátor


KAPCSOLAT
Hanzli-Virág Edina
Hanzli-Virág Edina


+36 70 634 4043

viragedinards@gmail.com

KAPCSOLAT
Hanzli-Virág Edina

+36 70 634

viragedinards@

Az időpont kérés naptár ikonja
IDŐPONTOT KÉREK
A visszahívás kérés telefon ikonja egy azt körbe ölelő nyíllal
VISSZAHÍVÁST KÉREK
Ajánlom egy ismerősömnek ikon
AJÁNLOM EGY ISMERŐSÖMNEK
Facebook megosztás ikon
MEGOSZTÁS

KAPCSOLATFELVÉTEL

Küldés

Az üzenetet sikeresen elküldtük!
Hiba történt!
INGATLAN ADATAI

Ingatlan jellege

lakás

Belső terület

49 m²

Tájolás

északnyugat

Építési állapot

használt

Építési mód

tégla

Szobák száma

2 szoba

Emelet

5.

Épület szintje

5.

Épült

kb. 1960

Lift

van

Ingatlan állapot

kívül: jó
belül: jó

Fűtés

központi fűtés

Komfort

összkomfort

Kilátás

utcára, függőfolyosóra

Energetika

nincs megadva

Az időpont kérés naptár ikonja
HTML
Az időpont kérés naptár ikonja
PDF

Hasonló ingatlan hírdetések

Eladó tégla-, vagy panellakás hirdetést keres Vác területén?
Tekintse meg további ajánlatainkat!

eladó panel lakás, Vác

eladó panel lakás

Panorámás, napfényes panellakás eladó a Földvári téren

Pest megye, Vác, (Alsóváros), Vám utca
Panorámás, napfényes panellakás eladó a Földvári téren Eladóvá vált a Földvári tér egyik kedvelt, liftes társasházában egy 7. emeleti, 52 m²-es, erkélyes lakás, amelyből kellemes kilátás nyílik a S...
Belső terület
52 m²
Szobák
2
Emelet
7

52.9 M Ft

eladó panel lakás, Vác

eladó panel lakás

Pest megye, Vác, Alsóváros
VÁC ALSÓVÁROSON 1. EMELETI, AZONNAL KÖLTÖZHETŐ, LOGGIÁS LAKÁS ELADÓ! A megtekintés új szintje: Járja be az ingatlant online, még a személyes megtekintés előtt! Interaktív 3D virtuális bejárás elér...
Belső terület
57 m²
Szobák
2
Emelet
1

65 M Ft

azonnal költözhető
Azonnal költözhető
eladó lakás, Vác

eladó lakás

Pest megye, Vác, Deákvár
KERTKAPCSOLATOS LAKÁS 3 HÁLÓSZOBÁVAL VÁC-DEÁKVÁRON – SAJÁT KERTTEL ÉS BEÁLLÓVAL A megtekintés új szintje: Interaktív 3D virtuális bejárás elérhető! Járja be az ingatlant online, még a személyes meg...
Belső terület
70 m²
Szobák
1+3
Emelet
földszint

110 M Ft

kiemelt
Kiemelt
eladó panel lakás, Vác

eladó panel lakás

Pest megye, Vác, Alsóváros
Vác egyik legjobb elhelyezkedésű lakása –panorámás kilátással! Eladó Vácon, a Költő utcában egy 55 m²-es, 4. emeleti, erkélyes lakás, amely kiváló lehetőséget kínál mindazok számára, akik saját ízl...
Belső terület
55 m²
Szobák
2
Emelet
4

52.9 M Ft

eladó lakás, Vác

eladó lakás

Eladó tégla lakás Vácon! Remek lehetőség a Dunakanyar kapujában, kiváló közlekedéssel.

Pest megye, Vác, Kisvác
Igazi lehetőség Vác szívében – tégla lakás kiváló közlekedéssel! Eladásra kínálunk egy remek adottságokkal rendelkező 32 m2-es, társasházi téglalakást Vác keresett részén. A lakáshoz tartozik saját...
Belső terület
32 m²
Szobák
1

35 M Ft

eladó új építésű lakás, Vác

eladó új építésű lakás

Pest megye, Vác, Deákvár
PÁRATLAN PANORÁMA A VÁROSRA!!! ENERGETIKAI MINŐSÉG SZERINTI BESOROLÁS: AA++ Örökpanoráma,modern kivitelezés, gyönyörű környezet jellemzi a társasházat, melyet megvételre kínálunk. A modern épüle...
Belső terület
173 m²
Szobák
4

175 M Ft

Új építésű!
Új építésű
eladó lakás, Vác

eladó lakás

Pest megye, Vác, (Deákvár), Újhegyi út
Vác Deákvár városrészén, az Újhegyi úton kínálok megvételre egy magasföldszinti elhelyezkedésű, erkélyes, tégla falazatú társasházi lakást, amely kiváló választás lehet saját otthonnak vagy akár befek...
Belső terület
57 m²
Szobák
2

56.99 M Ft

eladó lakás, Vác

eladó lakás

Eladó földszinti tégla lakás Vác szívében! Központi helyen, kiváló közlekedéssel – álmai lakását most találja meg! ➡️ 59.9 millió Ft. Ragadja meg ezt a lehetőséget Vác nyüzsgő központjában! ✨ #eladó #václakás

Pest megye, Vác, Belváros
Eladó földszinti tégla lakás Vác központjában! Kiemelkedő lehetőség váci lakásvásárlóknak: most kínálunk megvételre egy földszinten található tégla építésű lakást Vác egyik legkedveltebb részen, ki...
Belső terület
51 m²
Szobák
2
Emelet
földszint

59.9 M Ft

Pest megye - Vác
Pest megye - Vác
Pest megye - Vác
Pest megye - Vác
Pest megye - Vác
Pest megye - Vác
Pest megye - Vác
Pest megye - Vác
Pest megye - Vác
Pest megye - Vác
Pest megye - Vác
Pest megye - Vác
Pest megye - Vác
Pest megye - Vác
Pest megye - Vác
Pest megye - Vác
Pest megye - Vác
Pest megye - Vác