KAPCSOLATFELVÉTEL
Ingatlan jellege
családi ház
Belső terület
125 m²
Telek terület
573 m²
Tájolás
délkelet
Építési állapot
új
Építési mód
tégla
Szobák száma
5 szoba
Terasz
12 m²
Épület szintje
földszintes.
Épült
2025
Ingatlan állapot
kívül: új
belül: új
Klíma
előkészítve
Szigetelés
10 cm
Ablak szerkezete
3 rétegű thermoplan
Fűtés
hőszivattyús
Komfort
duplakomfort
Parkolás
van fedett felszíni beálló
Közműállapot
csatorna: bekötve
gáz: bekötve
villany: bekötve
víz: bekötve
Energetika
nincs megadva
Pest megye, Veresegyház, Harmatok
Irányár
(1.17 M Ft/㎡)
Szobák
Terület
Telek terület
FOLYAMATBAN LÉVŐ ÉPÍTKEZÉS, ŐSZI ÁTADÁS (szeptember vége)!
Eladó Veresegyházon, a Harmatok városrészben, új építésű, földszintes, 119 nm-es, dupla komfortos, minden igény kielégítő családi ház.
Az 1145 nm-es telekre két ház épül, melyek csak a fedett gépkocsi beállóknál érintkeznek, NINCS KÖZÖS FAL!
A tervezésnél törekedtek az élhető terek kialakítására, a maximális kényelem megteremtésére.
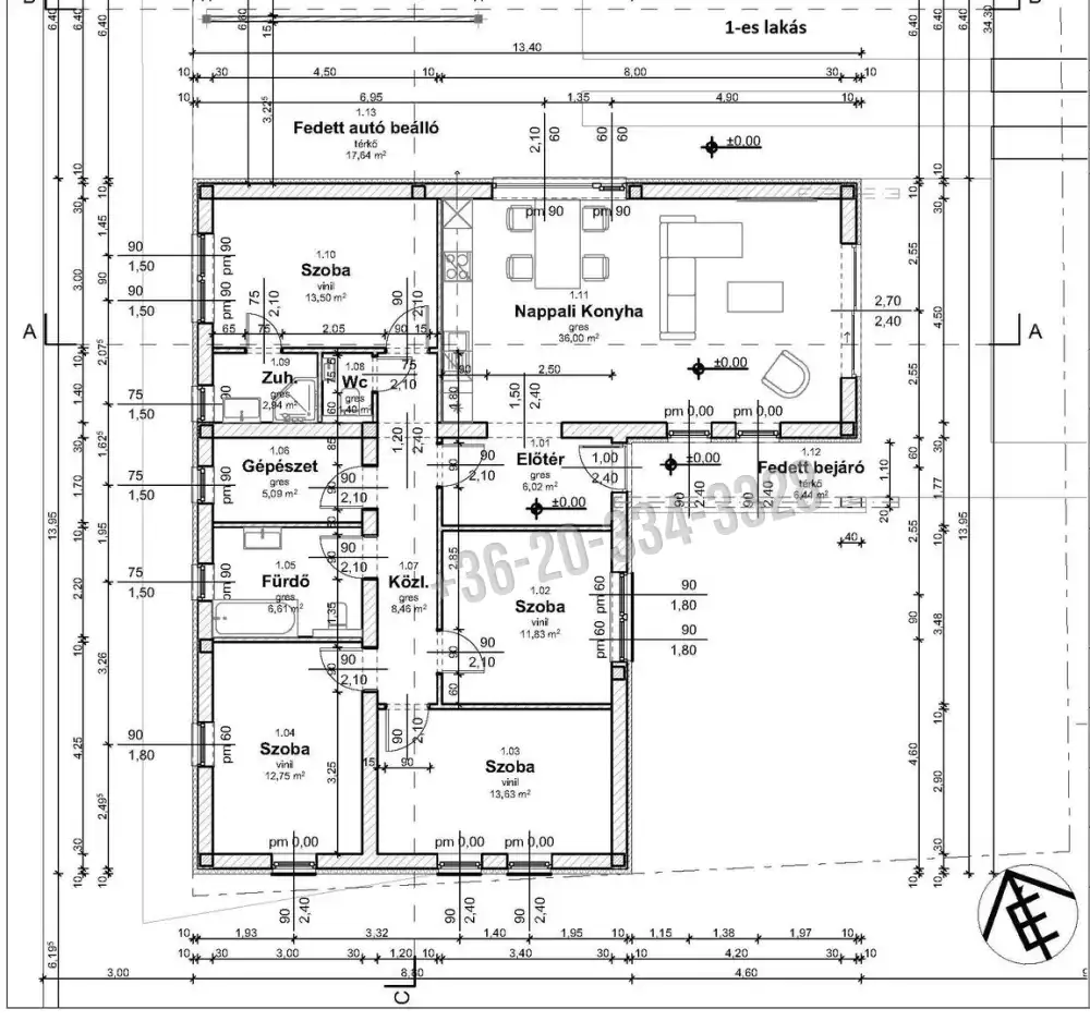
1-es lakás:
-lakótér 119 nm,
-amerikai konyhás nappali (36 nm) terasz kapcsolattal, 4 szoba (12, 13, 14, 14 nm), egy kádas fürdőszoba WC-vel, bidével, dupla mosdóval és a szülői hálóhoz kapcsolódó zuhanyzós fürdőszoba WC-vel, gépészeti helyiség, vendég WC, előtér-közlekedő.
-21 nm-es fedett gépkocsi beálló.
-Telek: 573 nm.
Ára: 146.8 MFt
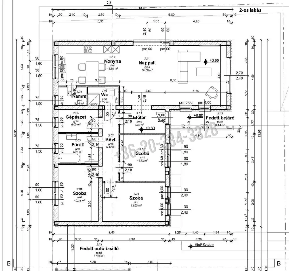
2-es lakás:
-lakótér 119 nm,
-amerikai konyhás nappali (50 nm) terasz kapcsolattal, kamra, 3 szoba (12, 13, 14 nm), kádas fürdőszoba WC-vel, bidével, dupla kézmosóval, zuhanyzós fürdőszoba WC-vel, gépészeti helyiség, előtér, közlekedő.
-21 nm-es fedett gépkocsi beálló,
-Telek: 573 nm.
Ár: 146.8MFt
A házak korszerű, a mai kor igényeinek és követelményeinek megfelelő minőségi anyagokból és technológiával készülnek.
Műszaki tartalomból:
-főfalak 30-as Porotherm X-therm tégla, 10 cm-es grafitos szigeteléssel,
-3 rétegű, Schüco living 82. aranytölgy színű nyílászárók,
-MOTOROS ALUMÍNIUM REDŐNY,
-nappaliban hővisszanyerős szellőztető,
-klíma előkészítés minden szobában,
-10 kW hőszivattyú + 190 l HMV tartály,
-padlófűtés minden helyiségben,
-színezett alumínium ereszcsatorna,
-Leier Zenit gesztenyebarna cserépfedés.
Hívjon a részletekért, a részletes műszaki tartalomért.
Új építésű ingatlanjainkat BERUHÁZÓI ÁRON értékesítjük!
Irodánk ÚJ ÉPÍTÉSŰ ingatlanok specialistája, felkészült értékesítőkkel!
Jogi háttérrel (kedvező díjazással) és az egyik legjobb, bank semleges HITELKÖZVETÍTŐVEL segítjük vásárlását.
Amennyiben értékesíteni kívánja ingatlanát, irodánk egyedi, kedvező ajánlattal áll rendelkezésére!
belül: új
gáz: bekötve
villany: bekötve
víz: bekötve
Pest megye, Veresegyház, Harmatok
Hitelkalkulátor

+36 20 334 3328,
arenaingatlanok@gmail.com
KAPCSOLATFELVÉTEL
Ingatlan jellege
ingatlan
Belső terület
125 m²
Telek terület
573 m²
Tájolás
délkelet
Építési állapot
új
Építési mód
tégla
Szobák száma
5 szoba
Terasz
12 m²
Épület szintje
földszintes.
Épült
2025
Ingatlan állapot
kívül: új
belül: új
Klíma
előkészítve
Szigetelés
10 cm
Ablak szerkezete
3 rétegű thermoplan
Fűtés
hőszivattyús
Komfort
duplakomfort
Parkolás
van fedett felszíni beálló
Közműállapot
csatorna: bekötve
gáz: bekötve
villany: bekötve
víz: bekötve
Energetika
nincs megadva