KAPCSOLATFELVÉTEL
Ingatlan jellege
családi ház
Belső terület
114 m²
Telek terület
531 m²
Tájolás
dél
Építési állapot
új
Építési mód
tégla
Szobák száma
5 szoba
Terasz
12 m²
Épület szintje
földszintes.
Épült
2025
Ingatlan állapot
kívül: kitűnő
belül: kitűnő
Klíma
előkészítve
Szigetelés
15 cm
Ablak szerkezete
3 rétegű thermoplan
Fűtés
cirko
Komfort
duplakomfort
Parkolás
van fedett felszíni beálló
Közműállapot
csatorna: bekötve
gáz: bekötve
villany: bekötve
víz: bekötve
Energetika
A+ 2024:
Pest megye, Veresegyház, Ligetek
Irányár
(1.31 M Ft/㎡)
Szobák
Emelet
Terület
Telek terület
Veresegyház kedvelt részén, családi házas övezetben, egyszintes, nettó 114 nm-es, nappali + 4 szobás, dupla komfortos családi házak eladók!
A KIVITELEZÉS A MAI KOR IGÉNYEINEK MINDEN TEKINTETBEN MEGFELELŐ, MINŐSÉGI ALAPANYAGOK FELHASZNÁLÁSÁVAL TÖRTÉNIK!
Beruházó referencia munkái a közelben megtekinthetők!
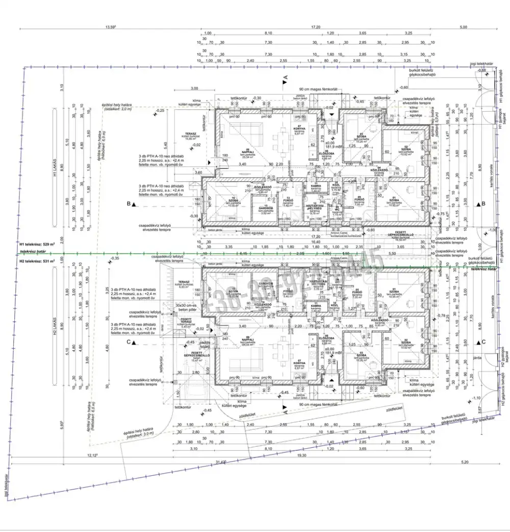
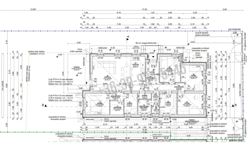
H1 házhoz tartozó telekrész 529 nm
Fedett gépkocsibeálló 16,50 nm
Terasz 15,80 nm
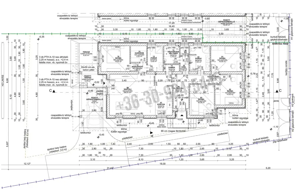
H2 házhoz tartozó telekrész 531 nm
Fedett gépkocsibeálló 15,41 nm
Terasz 12,33 nm
Helyiséglista:
előszoba 4,86 nm
WC 1,15 nm
közlekedő 8,95 nm
közlekedő 1,85 nm
közlekedő 1,75 nm
fürdő 7,05 nm
fürdő 5,40 nm
házt.h. 3,78 nm
kamra 1,44 nm
konyha-étkező-nappali 32,41 nm
gardrób 3,52 nm
szoba 10,95 nm
szoba 10,62 nm
szoba 10,26 nm
szoba 10,05 nm
Műszaki leírás röviden:
*teherhordó fal PTH 30-as síkra csiszolt okos tégla
*belső válaszfalak 10 cm PTH
*15 cm-es homlokzati szigetelés
*nyílászárók műanyag 3 rétegű, 5 légkamrás kivitel
*betongerendás födém
*tetőcserép
*fűtése kondenzációs gázkazán, padlófűtéssel (hőszivattyú megbeszélés kérdése)
*3 db klíma előkészítés
*utcafronti kerítés zsalukő erősített fa lécezés
*szaniterek, beltéri ajtók a műszaki leírásban meghatározott értékben választhatók.
Hiteligény esetén az ügyintézést szakszerűen, gyorsan és DÍJMENTESEN biztosítjuk ügyfeleink számára, így a legkedvezőbb megoldást tudjuk kínálni az ingatlan megvásárlásához.
Várom megtisztelő érdeklődését, akár hétvégén is!
belül: kitűnő
gáz: bekötve
villany: bekötve
víz: bekötve
Pest megye, Veresegyház, Ligetek
Hitelkalkulátor

+36 30 924 5445,
turzobettina@gmail.com
KAPCSOLATFELVÉTEL
Ingatlan jellege
ingatlan
Belső terület
114 m²
Telek terület
531 m²
Tájolás
dél
Építési állapot
új
Építési mód
tégla
Szobák száma
5 szoba
Terasz
12 m²
Épület szintje
földszintes.
Épült
2025
Ingatlan állapot
kívül: kitűnő
belül: kitűnő
Klíma
előkészítve
Szigetelés
15 cm
Ablak szerkezete
3 rétegű thermoplan
Fűtés
cirko
Komfort
duplakomfort
Parkolás
van fedett felszíni beálló
Közműállapot
csatorna: bekötve
gáz: bekötve
villany: bekötve
víz: bekötve
Energetika
A+ 2024: